查看完整案例

收藏

下载
仁和里·杭实智造中心是杭州市余杭区首个“专精特新+基金”主题的工业上楼产业园区,由世界500强杭实集团与余杭经开区国企联手打造,聚焦智能制造与新能源赛道。项目总建筑面积约21万㎡,在两年左右的时间基本建设完毕。随着这一长三角工业上楼行业标杆项目施工接近尾声,在面对具体市场时,产生了新的运营需求:
· 需要为租户提供中大型活动的室内场地。
· 需要激活核心院落的可达性。
· 需要调整首层的商业流线与店铺组织以提升运营场景的呈现。
© ATAH介景建筑
Renheli HIIG Intelligent Manufacturing Center is the first industrial relocation park in Yuhang District, Hangzhou, themed “SRDI + Fund.” Jointly developed by HIIG, a Fortune 500 company, and state-owned enterprises in the Yuhang Economic Development Zone, it focuses on intelligent manufacturing and new energy. The project, with a total construction area of approximately 210,000 square meters, was completed in approximately two years. As construction of this benchmark industrial relocation project in the Yangtze River Delta nears completion, new operational requirements have arisen in response to specific market conditions:
· The need to provide indoor venues for medium- and large-scale events for tenants.
· The need to enhance accessibility within the core courtyard.
· The need to adjust the ground floor’s commercial circulation and store organization to enhance the operational experience.
▼项目鸟瞰,Bird ‘s-eye view of the project © 许佳/ IAS STU
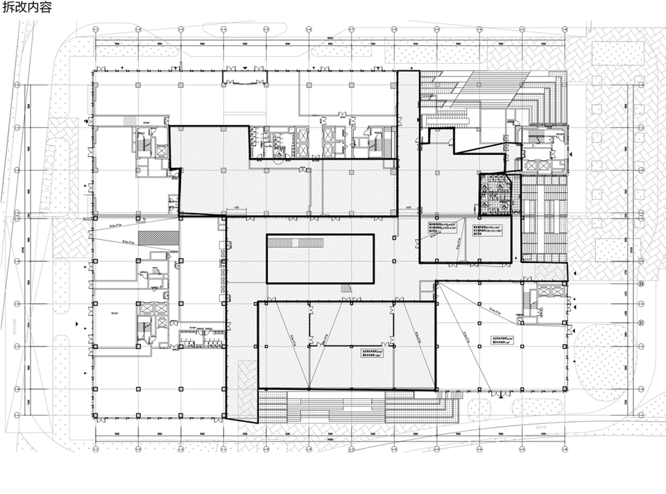
在与业主在施工现场充分交流与观察之后,介景建筑结合自身在工业上楼、园区改造领域的实践经验,提出了以下的调整措施:
·调改原规划中的户外大台阶,置入新的会议及多功能空间。
·建立斜向片墙组织,加强与场地南侧景观的联系。
·创造更多灰空间,细化近人商业外摆。
·将展陈空间碎片化,贯穿到廊下流线中。
▼场地原貌,The original appearance © 许佳/ IAS STU
▼拆改界面,Renovation interface © ATAH介景建筑
▼平面轮廓调整,Plan revised © ATAH介景建筑
After thorough on-site communication and observation with the client, ATAH drawing on its experience in vertical industrial parks and park renovation, proposed the following adjustments:
·The originally planned large outdoor staircase was relocated to accommodate new meeting and multi-functional spaces.
·The establishment of diagonal wall structures to strengthen the connection with the southern landscape.
·Create more gray spaces and refine the commercial exteriors for a more accessible experience.
·Fragment the exhibition space and integrate it into the circulation below.
▼通透的建筑立面,Transparent building facade © 许佳/ IAS STU
▼大台阶,The large outdoor staircase © 许佳/ IAS STU
其中最为显现的变化是对于大会议厅的植入,业主接受了建筑师的建议,将户外大阶梯局部拆除以获得充分的高空间。于此同时参会者可以在屋顶登高眺望南侧沿河风景,也可在此做延伸的户外会议活动。与通常的黑盒子操作不同,建筑师采用通透的方式处理了南侧界面,通过内部顶部的遮阳处理,形成可控入光量的状态。这种尝试意在打破了传统会议厅封闭的空间感,使室内与室外空间在视觉上融合,增强了空间的开放性与流动性。在一些场合,通透的界面将室外自然环境引入,赋予演出独特的自然氛围,提升观众沉浸感。
▼流线组织,Circulations © ATAH介景建筑
The most noticeable change is the addition of a theme conference hall. The client accepted the architect’s suggestion and partially removed the large outdoor staircase to create a fully elevated space. Attendees can ascend to the rooftop to enjoy the riverside scenery to the south, and the space can also be used for extended outdoor meetings. Unlike the typical black box design, the architects adopted a transparent approach to the south facade. Through internal roof shading, the amount of light entering can be controlled. This approach aims to break the closed-off feeling of traditional conference halls, visually integrating indoor and outdoor spaces and enhancing the openness and fluidity of the space. In some cases, the transparent facades bring in the natural environment, giving performances a unique natural atmosphere and enhancing the audience’s immersion.
▼会议厅鸟瞰,Bird ‘s-eye view of the theme conference hall © 许佳/ IAS STU
▼会议厅外观,The appearance of the theme conference hall © 许佳/ IAS STU
为契合报告厅的布置场景并加强景观渗透,设计采用的斜切的实墙作为空间划分。建筑师通过结合灯光的穿孔金属板的设置丰富了界面在不同光环境下的表现力。由于是施工过程中的同步改造,在最大限度利用已有结构的基础上,我们提供了两种结构对比方案争取更多的空间可能性。前者在强化景观开敞性的同时,减少对结构柱、地下室等现状的变动,保证二层回廊足够的活动尺度。后者利用已有柱位,适当对梁板进行改造,促使室内空间更加完整,增加的层高可获得更多采光,同时新增的天窗可作为采光通风面。
▼结构方案比对,Structure idea compared © ATAH介景建筑
To complement the lecture hall’s layout and enhance the permeability of the landscape, the design uses beveled solid walls as space dividers. The architects enriched the facade’s performance with varying lighting conditions by using perforated metal panels integrated with lighting. Since this renovation was a concurrent renovation during construction, we proposed two contrasting structural options to maximize spatial possibilities while maximizing the use of existing structures. The former enhances openness to the landscape while minimizing changes to existing structural columns and basements, ensuring sufficient space for movement in the second-floor corridor. The latter utilizes existing column positions and appropriately restructures the beams and slabs, further enhancing the interior space. The increased floor height allows for greater daylight, while the newly added skylights serve as lighting and ventilation surfaces.
▼屋顶空间,Roof space details © 许佳/ IAS STU
围绕会议厅的新建,建筑师通过对庭院周围的界面尺度细化来重建“工业活力核心”。在三处入口空间顺应动线,创造“厚墙”空间,利用墙面厚度碎片化置入迷你功能,为空间赋予触手可及的温度。三处入口厚墙设计了三种展陈主题,分别是北侧入口的产业时空穿梭,南侧出口的工业未来体验与东侧支路的尺园。分别对应展览流线的起点、终点和放松休息点。
Encircling the new conference hall, the architects recreated an “industrial core” by refining the scale of the interface surrounding the courtyard. At the three entrances, “thick walls” were created to align with the circulation flow, fragmenting the wall thickness to incorporate miniature functions, imbuing the space with a tangible warmth. Three exhibition themes were designed around the thick walls of the three entrances: an industrial time-space journey at the north entrance, an industrial future experience at the south exit, and a scale garden at the east branch. These correspond to the starting and ending points of the exhibition flow, as well as a relaxing and resting area.
▼景观坡道,Landscape ramp © ATAH介景建筑
廊道中庭及展厅部分由可灵活切分的室内空间序列、嵌套式的半室外空间、环绕庭院的室外空间组成。连续的空间面对内院、南向使用上翻折叠门,具有工业感,并能营造室内外无界场景;无跨空间可根据需要深化平面,其隔墙可做固定式或推拉式隔断。
The corridor atrium and exhibition hall are composed of a sequence of flexibly divisible indoor spaces, nested semi-outdoor spaces, and outdoor spaces surrounding the courtyard. The continuous space, facing the inner courtyard and south, features folding doors, creating an industrial feel and a seamless indoor-outdoor experience. The non-spanning spaces can be further extended as needed, and their partitions can be fixed or sliding.
▼空间的开放性与流动性,The openness and fluidity of the space © 许佳/ IAS STU
出现边施工边升级的场景,体现的是业主在适配真实需求时候所做出的主动应对。介景建筑在遵从原规划逻辑的前提下,通过对于底层支持性功能的新设、界面层次的升级、景观的联动等手段一并提升项目的服务性基础设施。建筑师跳出了原先给定的空间框架,提升了园区的整体体验,也为未来的产业发展提供了坚实的基础。
The simultaneous construction and upgrading demonstrates the client’s proactive response to meet real-world needs. While adhering to the original planning logic, ATAH simultaneously enhanced the project’s service infrastructure through the addition of new ground-level support functions, upgraded interface levels, and integrated landscape design. The architects transcended the pr-defined spatial framework, enhancing the overall park experience and laying a solid foundation for future industrial development.
▼东立面,East Facade © 许佳/ IAS STU
由于介景建筑介入此项目的时机离最终开业仅有数月,面临工程周期、施工条件的限制,不少设计意图仍需在后期整改中实现。但陪同业主和合作方跑完“最后一公里”的体会,不禁让人反思在综合性产业园区设计中应在前期就系统性配置“三前置三弹性”:策划前置、结构前置、运营前置;空间弹性、界面弹性、内容弹性。它不应是规范表上的被动勾选,而应在规划之初就进入可行性研究的硬核指标——就像荷载、柱网、物流一样,可被计算、被验证、被资本化。当会展面积、会议荷载、展陈荷载、屋顶活载、机电冗余被写进设计任务书,当“租金+运营”双轮模型被纳入财务测算,工业上楼才真正完成从“垂直工厂”到“垂直产业社区”的范式跃迁。
Since ATAH was involved in this project only months before the grand opening, faced with the constraints of the project schedule and construction conditions, many design intentions still needed to be realized through subsequent adjustments. However, the experience of accompanying owners and partners through the “last mile” led me to reflect on the need for systematically implementing “three preconditions and three flexibility” in the early stages of comprehensive industrial park design: planning preconditions, structural preconditions, and operational preconditions; spatial flexibility, interface flexibility, and content flexibility. This shouldn’t be a passive checkbox on a specification sheet, but rather a hardcore indicator incorporated into feasibility studies from the outset of planning—just like loads, column grids, and logistics, it can be calculated, verified, and capitalized. When exhibition area, conference loads, display loads, rooftop live loads, and mechanical and electrical redundancy are incorporated into the design brief, and when the “rent + operation” dual-wheel model is incorporated into financial calculations, can industrial relocation truly complete the paradigm shift from “vertical factory” to “vertical industrial community.”
▼穿孔金属板细部,Perforated metal panel details © 许佳/ IAS STU
▼剖面图,Section © ATAH介景建筑
项目名称:智芯插件_杭实智造中心公共配套改造
项目类型:建筑改造
设计方:ATAH 介景建筑
项目设计:2024
完成年份:2025
设计团队:徐光、王丹丹、赵法中、冯磊、何凡、梁宙锋
项目地址:浙江省杭州市余杭区奉欣路与仁良路交叉路口
建筑面积:800㎡
摄影版权:许佳/ IAS STU
合作方:上海中建+中国联合工程有限公司
客户:杭实集团
材料:铝板、玻璃
客服
消息
收藏
下载
最近
























