查看完整案例

收藏

下载

翻译
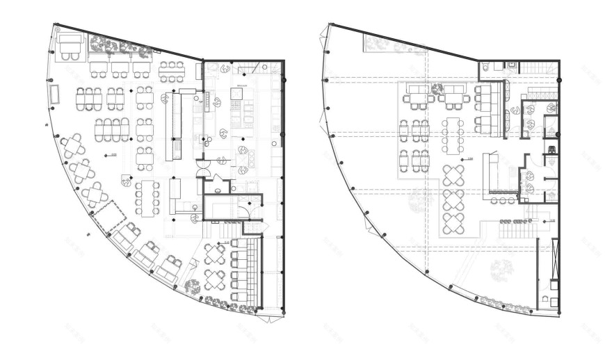
Situated in the new shopping center in Zrenjanin, the Kovac restaurant has become a place for gathering and relaxation for a very wide spectrum of visitors. Our project task was to project a new interior and give a different visual identity to a well-known city place that will meet the needs of all users and be in line with the international cuisine that is in restaurants menu.
The 340-square-restaurant is organized on two floors. There are also two bars, one on each floor. On the ground floor there are several types of seating for various contents, while the gallery is reserved for an intimate restaurant environment. We used elements of industrial design, warm wooden tones and textures, greenery and light installations to create an eclectic space, the perfect spot for both large parties and more intimate gatherings.
The design is a contemporary eclectic-industrial style. Glossy elements are contrasting with natural wooden textures. Retro light bulbs were used for creating a warm general atmosphere.
客服
消息
收藏
下载
最近















