查看完整案例

收藏

下载
“里物”烘焙店位于河南西峡一片密集的老城区中。项目起始于一栋传统的砖混结构民宅,其原始的封闭结构、3.8米的层高以及一个被遮盖的天井,使得内部空间昏暗而局促。业主希望将其改造为一个集烘焙工坊、咖啡茶饮与社区客厅功能于一体的复合空间,并要求保留在地街巷的烟火记忆。
“GIFT” Bakery is nestled in a dense old neighborhood of Xixia County, Henan Province. The project began with the transformation of a traditional masonry residence. Its original enclosed structure, 3.8-meter ceiling height, and a covered interior courtyard resulted in a dark and cramped space. The client envisioned transforming it into a multifunctional venue integrating a bakery, coffee and tea services, and a community living room, while preserving the authentic memory of the local streets.
▼项目外立面,facade of the project © 李想
▼室内空间概览,Indoor space overview © 李想
设计的挑战在于如何打破固有界限,在狭小空间内引入光,让老建筑获得新生,并融入当代社区生活。于是我们决定以“自然渗透”为核心理念展开设计,我们希望它不只卖面包,更成为老街生活情绪的延续。
The design challenge lay in transcending the inherent boundaries of the narrow space—introducing light, revitalizing the old structure, and weaving it into the fabric of contemporary community life. Thus, we anchored our approach in the core concept of “natural permeation.” We envisioned the bakery not merely as a place to sell bread, but as a continuation of the emotional tapestry of the old neighborhood’s daily life.
▼自然渗透,Natural permeation © 李想
设计的核心动作很坚决:拆除原有天井的封闭顶面,以一个轻盈的钢结构玻璃采光顶取而代之。这一举动,让建筑拥有了一个会呼吸的“生态中庭”。阳光、风雨、落叶自此成为空间的常客,光影随时间在微水泥墙面与莱姆石地面上游走。
The core design intervention was decisive: removing the enclosed roof of the original interior courtyard and replacing it with a lightweight, steel-framed glass skylight. This single move gifted the building with a breathing “ecological atrium.” Since then, sunlight, rain, wind, and falling leaves have become frequent visitors to the space, while light and shadow drift slowly across the micro-cement walls and limestone floors with the passage of time.
▼天井中庭全景,Panoramic view of the courtyard and atrium © 李想
我们为天井设计了一套隐形的雨水管理系统,使其可随天气在“干燥的日光庭院”与“湿润的反射池”两种模式间自由切换。空间的情绪,自此由自然天气定义。顶部电动窗帘50%透光设计,过滤午后强光。四壁保留原始砖墙肌理,采用微水泥进行防潮处理。
We designed a concealed rainwater management system for the atrium, allowing it to transform between a “dry, sunlit courtyard” and a “wet reflective pool” in response to weather conditions. From then on, the mood of the space is defined by the natural weather. Motorized curtains at the skylight, with a 50% light-transmitting design, filter the harsh afternoon sun. The original brick texture on the walls was preserved and treated with moisture-resistant micro-cement.
▼天井下的卡座区,The seating area under the courtyard © 李想
店门头以“自然质感与温暖氛围的融合”为理念,选用深棕色金属板材经做旧处理,复刻出木质的温润与时光的痕迹。沉稳的色调与内部暖光相呼应,多层次错落结构强化了视觉厚度,下方通透的玻璃橱窗与开放入口,将店内温馨场景悄然外露,吸引行人驻足窥探。
The storefront, conceived around the concept of “merging natural texture with a warm ambiance,” is crafted from dark brown metal panels treated with a deliberate patina. This finish recreates the warmth of wood and the trace of time. Its restrained tones harmonize with the warm interior lighting, while a multi-layered, staggered structure enhances its visual depth. Below, a transparent glass display window and an open entrance subtly reveal the inviting scenes within, enticing passersby to pause and look closer.
▼通透的玻璃让整个室内都能享受到自然光 The transparent glass floods the entire interior with natural light © 李想
我们保留的原建筑结构作为基底,新建玻璃顶棚轻盈架设,环岛式功能布局与回游动线有机串联,入口被刻意收束为1.2米,再现了老城窄巷的尺度。这短暂的“压抑”,是为了迎接步入中庭时那份豁然开朗的震撼。▼轴测图,axonometric diagram © 之一空间设计事务所
We preserved the original building structure as the foundation, upon which the new glass canopy is lightly suspended. An island-style functional layout and a looping circulation path organically connect the spaces. The entrance is intentionally constricted to 1.2 meters, recreating the narrow alleyways of the old city. This moment of deliberate “compression” builds anticipation for the breathtaking sense of openness that awaits upon entering the atrium.
▼走道尽头是烘焙操作间,At the end of the corridor is the bakery kitchen © 李想
环绕天井,我们布置了一条回游动线:透明玻璃与窑变砖砌筑的开放后厨、散座区、以及一侧阶梯式阅读区被流畅串联,人在其中行走,视线却始终与自然、与他人、与烘焙的烟火气轻柔相接、相连。
Encircling the atrium, we established a looping circulation path that seamlessly connects the open kitchen—crafted with transparent glass and kiln-transformed bricks—a scattering of seating, and a tiered reading area on one side. As one moves through this path, their gaze remains gently yet continuously engaged—with the natural elements, with other people, and with the warm, bustling atmosphere of the bakery.
▼面包甜品柜台,Bakery counter © 李想
烘焙工坊向客区开放,工作台高度设定在850mm的最佳观赏视角,让顾客可以看到面包制作的全过程。设备区与客区保持3米的安全与舒适距离,并通过负压系统解决油烟问题。定制的黑色哑光金属货架,兼具面包陈列与工艺展示的双重功能,使功能本身成为一种装饰。
The bakery workshop is open to the customer area. The workbench height is set at 850mm, providing an optimal viewing angle for customers to observe the entire bread-making process. A 3-meter distance is maintained between the equipment zone and the customer area, ensuring both safety and comfort, while a negative pressure system effectively manages cooking fumes. Custom-made matte black metal shelving serves the dual function of displaying bread and showcasing the craft, turning practicality itself into a decorative element.
▼咖啡吧台,Coffee Bar © 李想
▼卡座观景位,View Booth © 李想
▼喝咖啡吃甜点,看他人生活叙事 Sip coffee, savor desserts, and watch the narratives of others © 李想
▼阶梯式休憩区,Stepped Lounge © 李想
阳光透过天井的玻璃顶,在陶土墙面留下斑驳的光影,莱姆石地面映出温润的反光,老木家具在岁月中愈发深沉——这三种天然材料共同构筑了一个会呼吸的空间,让老街焕发新的生命力。
Sunlight filters through the glass atrium roof, casting dappled patterns on the clay plaster walls. The limestone floor reflects a soft, warm glow, while the aged wooden furniture grows ever more profound with time. Together, these three natural materials create a breathing space that infuses the old neighborhood with renewed vitality.
▼客座区,Indoor seating © 李想
▼室内陈设细节,Interior furnishing details © 李想
当日光褪去,暮色降临,室内暖光透过玻璃顶,与老街渐次亮起的灯光交融。我们忽然明了:最好的设计,并非无中生有的创造,而是一种温柔的唤醒。它唤醒沉睡的空间,唤醒被忽略的自然,也唤醒深植于我们内心的、对美好生活的感知力。里物,便是这样一处唤醒之所。
merging with the gradually illuminating streetlights of the old neighborhood. In this moment, it becomes clear: the best design is not creation out of nothing, but a gentle awakening. It awakens dormant spaces, it awakens the overlooked nature, and it awakens the deeply rooted human capacity to perceive beauty in everyday life. Li Wu is precisely such a place of awakening.
▼材质细部,Details of the material © 李想
▼平面图,Plan © 之一空间设计事务所
▼立面图,Elevation drawing © 之一空间设计事务所
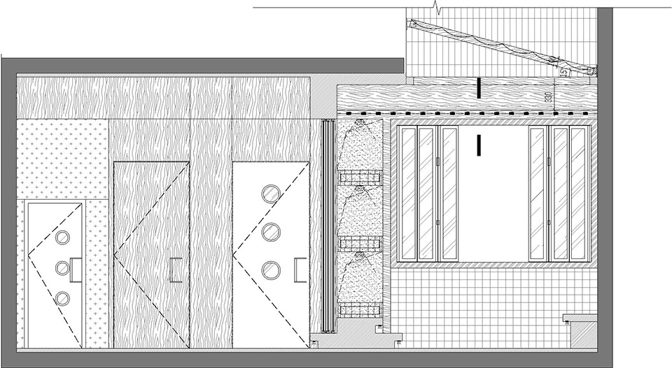
▼剖面图,Section © 之一空间设计事务所
项目名称:里物烘焙
项目类型:建筑改造、庭院设计、室内设计
设计方:之一设计研究室
设计时间:2024年11月
竣工时间:2025年4月
主创及设计团队:主持设计:李强 主案设计:杨紫婷 团队:胡舒展 | 邬成昊 | 张婧瑜
项目地址:中国·河南·西峡
建筑面积:120㎡
摄影版权:李想
材料:树瘤木饰面、陶土方块、艺术涂料、锈板
Project Name: Gift Bakery
Project Type: Architectural Renovation, Courtyard Design, Interior Design
Design Firm: ZII Studio
Design Period: November 2024
Completion Time: April 2025
Lead & Design Team: Lead Designer: Johnny Li Principal Designer: Mia Yang Team: Hu Shuzhan | Wu Chenghao | Zhang Jingyu
Project Location: Xixia, Henan, China
Floor Area: 120 ㎡
Photography Copyright: Li Xiang
Materials: Burl Wood Veneer, Clay Block, Artistic Coating, Rusted Steel Panel
客服
消息
收藏
下载
最近
























