查看完整案例

收藏

下载
Preface
作为REXON在国内的办公室和展厅,80多平米的空间不仅承载着日常办公和接待功能,更是企业对外展示的窗口。ByoArc希望摒弃传统的办公空间模式,以使用者的需求为切入点,探寻更加灵活可变的布置方式从而适应不同的使用场景。
PART 01
回归“人”的流动性与自由度
在传统办公与展览空间中,固定隔墙往往割裂了人与空间的互动可能,因此设计以“流动空间”为核心理念,通过拆除所有非承重墙,将原始空间彻底释放为一个无阻隔的开放场域。入口也移至直面电梯厅的位置,从而让展厅空间变得更具公共性。
改造结构调整
改造设计拆解
PART 02
柱与台的戏剧性转译
中央展台:从结构桎梏到功能枢纽
场地中央的承重柱被转化为空间叙事的焦点,将其延伸为长度为6m的矩形展台,展台整合了产品展示抽屉、嵌入式水吧台及隐藏式电源接口,满足了从咖啡沙龙到产品展示的多场景需求。
柱体网架:可生长的垂直界面
和展台相结合的柱子是空间的视觉中心,其表面不做任何处理,将混凝土粗糙的表面暴露出来。
柱身包裹定制不锈钢网架系统,通过可变模块快速装卸置物层板。
这一设计既消解了柱体的突兀感,又赋予空间垂直维度的叙事弹性:当前可能是物品陈列架,未来也可变为植物墙。
PART 03
系统重构
不被定义的空间
以“人的行为”为设计原点,将空间转化为可自由组装的模块系统:办公、展览、接待社交等功能不再被物理边界定义,而是随着使用需求随时可以动态重构。
这种设计哲学既是对工业化时代空间效率的反思,也是对后疫情时代多样办公模式的回应。
两个可移动的木盒构成空间的核心变量。大盒为高的柜体,设置了企业展示内容,小盒则集成茶水桌与储物模块,底部均配备静音万向轮与定位卡扣。
通过推拉重组,空间可呈现几种典型模式。
半私密模式:大盒靠墙,分隔出独立办公空间。
全开放模式:大盒平行布置,形成贯通展厅与沙龙区,与展台形成环游动线。
混合模式:大盒靠门布置,小盒作为茶几,形成休息接待区。
家具灵活可移动
PART 04
细节与材质
温暖工业的诗意表达
空间顶部不设吊顶,增加展厅高度,裸露的管线涂刷白色涂料,与定制轨道射灯系统构成工业美学基调,光线通过可调角度灯具精准投射展品;展台整体采用木板,侧面局部采用哑光不锈钢拼接,北侧和西侧的墙面被用于产品展示需求,冷峻与温润的碰撞隐喻办公与展览的功能共生。
整个空间并非一个完成态的静态作品,而是一个持续进化的有机体。通过消解固化的空间范式,让建筑回归到最本质的使命——作为人类活动的催化剂而非容器。
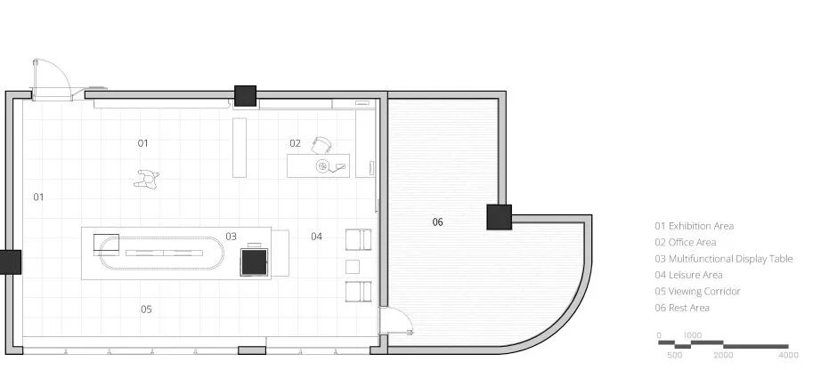
平面图
项目名称:REXON企业空间
项目类型:室内/改造
设计单位:ByoArc拜昂建筑
策展团队:LUMI噜咪文化
项目设计:2024年6月—2024年7月
完成年份:2024年8月—2024年11月
设计团队:江原,朱思宇
策展人:徐怡歆,朱思宇
项目地址:浙江绍兴凤凰创新园
建筑面积:89㎡
摄影版权:川河映像
施工管理:叶清
施工单位:LUMI噜咪文化、智贸装饰设计有限公司
项目客户:REXON POWER TRANSMISSION COMPONENTS PTE. LTD.
主要材料:水磨石,木材,不锈钢,玻璃
江原
创始人/主持建筑师
UCL巴特莱特建筑学院建筑学硕士(一等荣誉学位)
英国皇家建筑师学会(RIBA)特许注册建筑师
美国绿建协会认证专家(LEED AP BD C)
客服
消息
收藏
下载
最近




























