查看完整案例

收藏

下载
“Ellen Browning大楼”的构想源自一群挚友的共同愿望:他们思考着如何在生命的最后岁月中延续彼此的陪伴与联系。共同居住(Co-housing)的理念——以社区精神与共享空间为核心——成为了他们的答案。通过自行开发一栋集合住宅,这些朋友得以在城市生活的独立性与彼此间的亲密感之间取得平衡。项目选址于波特兰东南区Division街的一处充满活力的商业地带。正如许多老年人所选择的那样,居住在一个可步行、配套完善且医疗资源丰富的城市,是他们实现“原地养老”(aging-in-place)的一种策略。
The genesis for the mixed-use residential Ellen Browning Building arose when a group of close friends considered how they could preserve their relationships during their last years. Co-housing, with its spirit of community and shared living spaces, provided the answer. By developing their own residential building, the friends would be able to balance togetherness with the independence of urban living. The site they selected is set within a vibrant retail and commercial district along Division Street in Southeast Portland. Like many seniors, choosing to live in a walkable, amenity-supported and health-care rich city is an aging-in-place strategy.
▼建筑概览,Overall view of the house © Jeremy Bittermann
▼建筑概览,Overall view of the house © Jeremy Bittermann
不同于追求最大化住宅数量的常规开发模式,这栋建筑以34,000平方英尺的体量,着重优化居住者与邻里的城市体验质量。建筑共设十个住宅单元,依据场地条件的多样性进行设计。二、三层为单层公寓,面积从1,000至4,000平方英尺不等;底层设有公寓单元,以便未来接待访客或提供驻场医疗看护。此外,建筑首层还包括数个沿街商铺与一个艺术画廊空间,为街区注入活力,体现了业主群体希望建筑能积极参与并贡献于社区生机的共同愿景。
Rather than maximize the number of units, the 34,000-square-foot development maximizes the quality of the urban experience for occupants and neighbors alike. The building features ten residences that respond to a mix of site influences. Single-level flats are located on the second and third floors, and range in size from 1,000 to 4,000 square feet. Ground-level apartments are included for guests or future on-site medical caretakers. A set of street-level retail spaces and an art gallery space adds dynamism to the cityscape, reflecting their collective interest in creating a building that contributes to the vitality of the neighborhood.
▼建筑街景,street view of the house © Jeremy Bittermann
外立面采用浅米色波纹陶土板包覆,成为城市中承载自然光线的“画布”。其细腻的纹理随光影变化,为建筑与周边街景带来微妙的色彩与节奏感。连续的露台层层退让,柔化了建筑体量,并通过绿植屏障形成垂直的“前庭”,让居民能在其中与朋友相聚、亲近自然,享受城市的户外氛围。
Clad in fluted, off-white terra cotta panels, the building becomes an urban canvas for daylight. The textured exterior translates the ever-changing quality of light to visually animate the building and the neighborhood through color and shadow. A series of terraced patios, further soften the building, helping to break down its scale. The terraces, which feature verdant, leafy privacy screens, function as vertical front yards where residents can engage with their friends and enjoy the outdoors and the urban setting.
▼建筑外立面,facade of the building © Jeremy Bittermann
结构方面,建筑采用预应力混凝土框架,上层为交叉层压木(CLT)与木梁结构。通过CLT与陶土板的预制方式,显著减少了现场施工工作量,缩短工期并降低成本。其余材料包括高效隔热玻璃纤维窗、金属格栅与栏杆,以及Ipe木地板。建筑下方设有一处小型地下停车场。
The building features a post-tensioned concrete frame; its top floor is built with cross laminated timber (CLT) and wood beams. Prefabrication—CLT and terra cotta—helped minimize field work, shortening the construction window while reducing costs. Other building materials include thermally efficient fiberglass windows, metal trellises and guardrails, and Ipe decking. Below the building is a small, underground parking garage.
▼采用混凝土框架与木梁结构相结合,combination of concrete frame and wood beams© Jeremy Bittermann
室内空间以简约质朴的材料构成:白橡木地板与天花板、石膏板墙面,营造出温润自然的基调。居民可从有限的厨房与橱柜模板中进行个性化选择,家具则由业主自行配置。艺术作品贯穿于公共区域,包括定制吊灯、数字艺术墙与户外雕塑等。露台以涂漆钢管格栅定义空间,用于攀附茉莉藤蔓,待其生长覆盖部分外立面。四层为共享露台层,提供多样的设施与室内外空间。所有公共功能集中于同一楼层,使居民无论独处或社交、烹饪或用餐、游戏或阅读、手工或观影、甚至游泳,都能在一个开放的共处场所中自由切换。
The interiors are defined by a simple palette of minimally finished materials (white oak floors and ceilings, gypsum board walls). Residents were able to pick from a limited set of kitchen and casework templates. Furnishings are provided by individual owners. Art is integrated throughout common areas, and includes a custom chandelier, a digital art display wall, and outdoor sculpture, among other pieces. Terraces are defined by a grid of painted steel tubes/rods that serve as an armature for star jasmine, which will eventually grow to cover portions of the building. The fourth floor serves as the communal terrace, which provides a rich set of amenities and indoor and outdoor spaces. Clustering all of the shared spaces on one level ensures there’s plenty of room to be by oneself or with others regardless of activity: cooking, dining, playing games, crafts, reading, swimming, or watching movies. It’s all there, one level within a common area set within the larger building.
▼入口大堂,lobby at the entrance© Jeremy Bittermann
▼客厅空间,living room space © Jeremy Bittermann
▼厨房空间,kitchen space © Jeremy Bittermann
▼健身休闲区域,the wellness area© Jeremy Bittermann
▼共享露台层,the communal terrace © Jeremy Bittermann
这栋由他们亲自开发的建筑,不仅保证了朋友之间以及他们所组成的紧密社群得以延续,也在当下社交关系日益疏离的时代,提供了一种可持续的社会连接方式。Ellen Browning大楼以物理空间的形态,承载并延展了人与人之间的精神纽带,为居住者及周边社区提供了温暖、支持与互动的生活环境。
Developing their own building ensures that this group of friends and their tight-knit, extended family and social network will continue. At a time when social connections are increasingly strained, this project helps to preserve social sustainability in a physical environment that is supportive and engaging for its occupants and those who experience it.
▼建筑夜景,the night view © Jeremy Bittermann
▼建筑夜景,the night view © Jeremy Bittermann
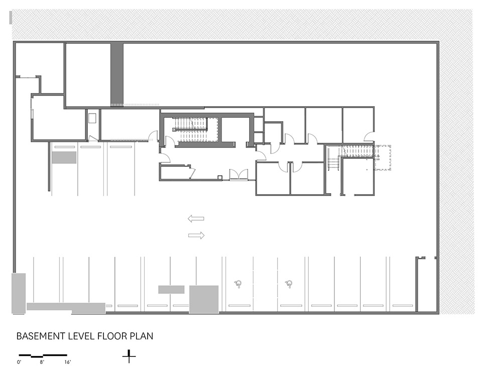
▼地下一层平面图,basement level floor plan © CAMERON MACALLISTER GROUP
▼到达层平面图,entry level floor plan © CAMERON MACALLISTER GROUP
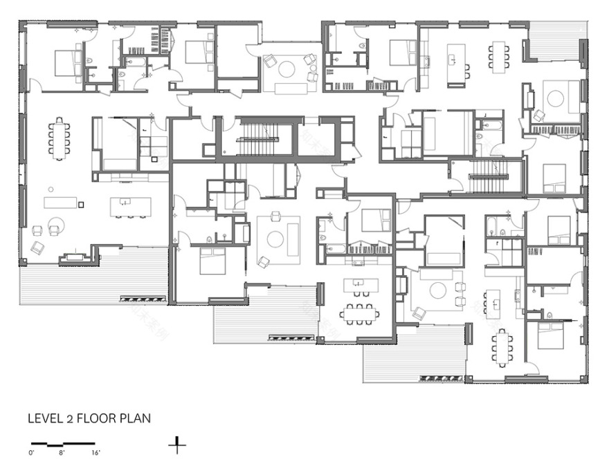
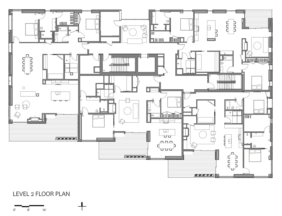
▼二层平面图,level 2 floor plan © CAMERON MACALLISTER GROUP
▼三层平面图,level 3 floor plan © CAMERON MACALLISTER GROUP
▼四层平面图,level 4 floor plan © CAMERON MACALLISTER GROUP
▼立面图,elevation © CAMERON MACALLISTER GROUP
▼剖面图,section© CAMERON MACALLISTER GROUP
Design Principal and Principal-in-Charge: Corey Martin
Principal Project Manager: Scott Mannhard
Principal Technical: Matt Sugarbaker
Project Architect: Vijayeta Davda
Interior Designer: Emily Knudsen-Leland
Design Team: Emily Hays, Lewis Williams, Sam Yerke, Rashmi Vasavada, Whitney Dienes, Keri Hayenga, Keri Woltz, Joe Swank
Consultant team
Hacker (Architect)
UD+P. Urban Development Partners (Owner’s rep)
Garrison Hullinger Interior Design (Interior design)
Truebeck Construction (Contractor)
DCI (Structural engineering)
PAE (Basis-of-design MEP and fire protection)
O- (Lighting)
Szabo (Landscape architecture)
Vega (Civil engineering)
Michael Thrailkill Associates (Specifications)
Hunter Davisson (Design-build mechanical)
PhotographyJeremy Bittermann
客服
消息
收藏
下载
最近




































