查看完整案例

收藏

下载
2024年,一场世界园艺盛会在成都东部新区绛溪河畔举办,为成都呈现了一座诗意盎然的山水公园。世园瀑布美憬阁酒店,就坐落在这座花木繁茂的公园内。作为成都2024年世园会园区内唯一的酒店,它被赋予了一个更为深远的使命。我们希望,它不只是服务于会展期间的短暂居停,更能在会后成为一个属于成都的文化载体,一处让人们愿意驻足、沉浸、回味的精神栖所。
瀑布美憬阁酒店占地约3.9万平米,在霞湖瀑布北岸依水而立,依托园区内丰富的景观资源,酒店谦逊的融入园区的环境之中,仿佛它本就属于这里,在“水”、“石”环境中有机生长而来。
▼融情于境的鸟瞰图,Bird’s eye view© 404NF STUDIO
▼酒店融入整个世园会环境之中,The hotel is integrated into the entire Expo environment © 404NF STUDIO
融景|让建筑从环境中生长出来
世园会园区中散布着百余个精巧的主题展园与建筑,它们体量不大,各具风韵。而瀑布美憬阁酒店总面积约3.6万平米,如何将这样规模的体量自然、巧妙的融入世园会的整体环境之中,这是我们首先思考的问题。用地与园区瀑布虽然隔岸相望,但是用地与河岸之间确有着约10M的高差,这样高度割裂了酒店与河岸的联系,让酒店失去了与滨河景观、瀑布景观高效互动的可能。
▼建筑掩映在环境之中,The building is hidden in the environment © 404NF STUDIO
于是,我们从整体环境为切入点,梳理整体竖向高差关系,利用场地与河岸10M的高差,采用下沉的设计手法,弱化建筑体量,让建筑消解在用地与绛溪河水面之间。客房逐级跌落融入环境,公区架空在其之上,酒店在入口侧仅有2层体量,掩映在环境之中,与周边展园等建筑协调呼应。同时,逐级跌落的形态也将酒店功能自然延伸到了河岸,给酒店扩充了更加丰富的室外活动和轻水空间,丰富了酒店的入住体验。▼架空在顶部的餐饮公区,The dining area is suspended on the top © 404NF STUDIO
通过下沉的方式,酒店与场地、环境深度融合;酒店不再是一个突兀的“外来者”,而是成为了整个园区水环境的一部分。酒店与滨河景观、绛溪河、瀑布、绛霞湖融合在了一起,形成一个层次丰富的世园会观景序列。这是我们对 “建筑与自然共生”理念的一次身体力行。
▼酒店前区环境延伸至河岸,The hotel’s front area extends to the riverbank © 404NF STUDIO
筑石|以石为意,回应场地的記憶
为了进一步强化建筑与场地的联结,我们选取了“石”的意向。首先将140间客房分为三组,分列于大堂的两侧;客房朝向南侧瀑布,结合地形层层退台,并设置观瀑阳台。同时,每组客房与地形之间,我们打造了三个不同性格的下沉庭院,富有特色的庭院空间极大的丰富了住客的步行体验。于此,人可“内赏石韵,外观瀑影”,在步移景异中,感受空间的叙事与律动。
▼取意岩石的客房,Guest rooms inspired by rocks © 404NF STUDIO
在立面材料的选择上,我们试图寻找一种能唤起在地共鸣的语汇。四川地区的红砂岩,历经风雨,色泽温润,肌理沧桑,是时间与场所的见证者。在客房立面材质的选择上,我们也希望使用这一元素。然而,出于耐久性与施工可行性的考量,我们最终选择了以红色GRC板材来“转译”红砂岩的质感。▼红砂岩质感的转译,Translation of red sandstone texture © 404NF STUDIO
▼“内赏石韵”的下沉庭院,Sunken courtyard © 404NF STUDIO
▼“外观瀑影”的观瀑阳台,Waterfall viewing balcony © 404NF STUDIO
设计团队深入场地周边,采集真实的天然红砂岩样本,对其质感、颜色、纹理进行模拟,经理多次的颜色调制、质感复刻、现场打样,并在原料中加入天然石粉增强质感。最终选择出在凹凸肌理、质感色彩都较为真实的GRC板材。呈现的效果也较为满意,红色给人温暖而厚重的感受;凹凸粗糙的质感又仿佛是可以触摸到的历史沉淀和岁月痕迹。▼简洁有力、极具雕塑感的建筑形态,Simple, powerful and sculptural architectural form © 404NF STUDIO
三组客房红色的整体形象、横向折面的岩石肌理,俨然是从大地中自然生长出来一般,简洁有力、极具雕塑感,仿佛是三块伫立于河畔的岩石。与此同时,大堂的折面玻璃幕墙与宴会厅外侧特别设计的两道瀑布水帘,共同构成了“三瀑”意象。它们穿插于“三石”之间,形成石与水、静与动、实与虚的对话。至此,酒店就这样以“三石·三瀑”的形态与整个世园会环境进行对话。
▼“三石·三瀑”与世园会环境对话,Dialogue with the environment © 404NF STUDIO
观瀑|在每一个角落,与瀑布相遇
酒店的主要功能沿瀑布主景一字展开,每个功能空间都能享受到独有的瀑布景观。大堂居中设置正对瀑布,成为视觉与动线的核心;大堂、大堂吧、岩石餐厅在中部垂直贯通、餐饮公区架空在大堂上部;客房分置于大堂的左右;宴会和康体娱乐功能布置在最东侧,可以独立使用的同时,也隔离了部分道路噪音对酒店的影响。
▼酒店前区环境,Hotel front area environment © 404NF STUDIO
室内场景的营造我们也围绕观瀑的主题。进入大堂,200余米宽的瀑布映入眼帘,极具震撼。大堂吧、岩石酒廊根据地形,逐级设置在大堂下侧,三个空间通过18M高的边庭共享空间串联在一起,瀑布意向的通高折面玻璃幕墙作为边庭的外立面,不仅提供了开阔的视野,也增强了空间的通透感。▼酒店大堂,Entrance hall© 404NF STUDIO
▼逐级跌落的酒店公区空间,The hotel’s public area space gradually declines © 404NF STUDIO
架空于上部的餐饮公区,南北通透,让住客在用餐的同时,能够尽赏园区自然景观。餐厅外立面采用可以完全开启的折叠门,在气候适宜的季节,折叠门完全开启,室内餐区与室外外摆区贯通,模糊了室内和室外的界限,有效提升了空间的通透性。在屋顶出檐深远的室外空间下小坐,沏壶盖碗茶,微风拂面、茶香四溢,这是再熟悉不过的属于成都人的惬意时光。
▼南北通透的全日餐厅,All-day dining restaurant with north-south exposure © 404NF STUDIO
▼中餐门厅,Chinese restaurant lobby © 404NF STUDIO
▼庭院客房厅,Courtyard guest room © 404NF STUDIO
结语|石不语、水长流
瀑布美憬阁酒店,不是一座被“放置”于此的建筑,而是一片从土地中“生长”出来的风景。它以谦逊之姿融入环境,借红砂岩的质感讲述在地的故事,用“三石·三瀑”的写意手法,重构了人与自然的关系。当建筑成为景观的延伸,当空间成为意境的载体,住宿便不再只是功能的满足,更是一场与自我、与自然、与文化的对话。在这里,每一位驻足者都能在瀑布的回响中,听见成都山水的低语;在石与水的交响间,感受到东方栖居哲学在当代的延续与回响。
▼负二层平面图,-2 floor plan©CSWADI
▼负一层平面图,-1floor plan©CSWADI
▼一层平面图,ground floor plan© CSWADI
▼架空餐饮层平面图,elevated dining floor plan ©CSWADI
▼南立面图,south elevation©CSWADI
▼东立面图,east elevation©CSWADI
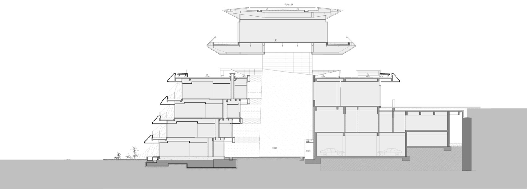
▼剖面图,section©CSWADI
项目完整信息
项目名称 成都世园瀑布美憬阁酒店
项目类型 酒店
项目地点 成都东部新区成都世界园艺博览会园区
项目业主 成都园艺博览运营发展有限公司
建成状态 建成
设计时间 2022年2月-2023年5月
建成时间 2024年4月
用地面积 38867.61平方米
建筑面积 34960平方米
设计单位:中国建筑西南设计研究院有限公司
设计团队:中国建筑西南设计研究院有限公司郑勇工作室、设计四院
设计总负责人:郑勇、陈嘉乐
完整名单:
建筑专业:仲泉丞、杨国俊、刘宇、姚汉、刘茜、郑汉聪、马贻薇
结构专业:龙卫国、夏循、韩克良、楼舒阳
给排水专业:邓然、雷刚、毛毓、黄俊凌
暖通专业:刘志强、钱成功、陈硕
电气专业:姚锋、陆萌、李江涛
幕墙专业:殷兵利、周春晓、程超
建筑技术:罗晶
景观设计:成都翰景景观设计有限公司
室内设计:YANG杨邦胜设计集团
摄影师:404NF STUDIO
客服
消息
收藏
下载
最近































