查看完整案例

收藏

下载
金伟琦
采用敞开式厨房,岛台与餐桌一体化,既满足烹饪与家人互动,也方便家庭聚会。将景色最好的窗前设置吧台功能,可在此喝咖啡、品下午茶,静静欣赏窗外风景。
感谢 罗秀达
项目介绍
120平方米的旧房改造室内设计,屋主为三口之家——一对年轻夫妇与四岁小朋友。家庭成员热爱阅读、烹饪与徒步,享受亲近自然,也偏爱宁静舒缓的生活氛围。居所周边环绕多处森林公园、水库及自然景区,为全家周末共赴自然、感受放松与美好提供了得天独厚的条件。
▲室内空间
金伟琦
设计理念:保留开阔的空间特征,划分出具有舒适感与安全感的围合区域,提供静谧的阅读氛围。同时放大书柜的比例——将阅读氛围成为家庭中心与主要气质;回归到事物的本质,通过简单的方式提供解决需求的方法。比如:通过坐面与靠面的结合形成沙发功能;不同位置的玻璃台面形成了餐桌与书桌功能;平台与床垫结合形成了卧室功能。将这些功能区都移至南北两侧有窗景的位置,可以眺望远处的山和欣赏小区内部的植物。
▲丰富的空间层次
金伟琦
户型图
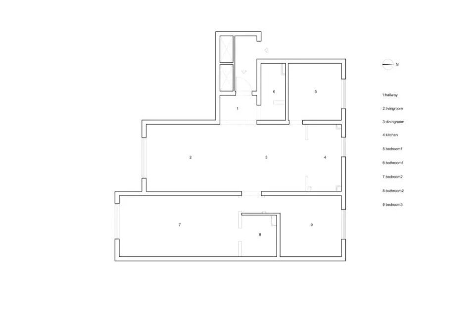
改造前是三个卧室、一个客厅、一个餐厅、一个厨房、一个门厅与卫生间的空间。原空间比较方正,南北通透,厨房面积略小,主卧室面积较大。
改造
户型平面图
© 罗秀达
改造后
1: 将门厅区域单独划分出来后,增加一个小的储物间,满足一家三口日常回家后衣物与鞋包的收纳。
2: 敞开式厨房,岛台与餐桌一体化,满足烹饪与家人互动和家庭聚会。将景色最好的窗前摆放吧台功能,可以在这里喝咖啡与下午茶,静静地看着窗外的景色。
3: 客厅是围绕一整面书柜墙的L型卡座沙发,中间区域保留大面积空间,给小朋友玩玩具,也是家人一起阅读放松的空间。
4: 书房的一整面墙大书桌,可以眺望远处的山,是学习和阅读的最佳空间。同时,隔断门可以隔离出安静的空间,折叠床为客人留宿准备。
5: 主卧室通过地面的抬高划分出睡眠区域。独立的浴缸与卫生间通过折叠门划分开,淋浴空间与双人洗漱盆与马桶同处一室。地台上的空间不仅是睡眠区,也可以做瑜伽和放松运动。
6: 洗衣功能都整合在客人卫生间内部。
改造后
户型平面图
© 罗秀达
餐厅:餐厅一张大的玻璃餐桌,因为玻璃的透光性,显得空间非常轻盈通透,视觉上放大了空间。这里最多可以满足6至8人的家庭聚餐。
▲轻盈通透的餐厅空间 金伟琦
客厅
黑色的木制顶面,将客厅区域从连贯的整体空间中脱离出来。黑色顶面有一定的包裹感受,结合大的L型卡座沙发,使这个区域安静舒适。书柜与壁炉的结合加强阅读氛围与温暖的感受。书柜隔板较长,内部有预埋钢结构作为支撑。
▲L型卡座沙发空间 金伟琦
▲客厅空间
金伟琦
厨房
中岛台与烹饪区都使用了抗划痕的不锈钢材质。岛台的另一侧是可以吃早餐的不锈钢吧台。由于岛台的面积较大,使得操作与料理准备空间舒适从容。窗前的玻璃吧台一层,墙面有隔板,放置喜欢的餐具、杯子与花器。两个黑色的墙面,将厨房的烹饪区划分出来。
▲厨房 金伟琦
▲厨房烹饪区
金伟琦
卧室
黑色的木制顶面,黑色的乳胶漆床头墙面,黑色的木制地台,共同划分出了睡眠区域。床头墙与侧面的白色墙面之间留有一个空隙,使光线可以蔓延到门口,空气也可以流通。
床头的不锈钢台面与厨房的不锈钢材质呼应。床另一侧是衣柜与书柜。这里是可以席地而坐、晒着太阳看书的角落。
▲卧室空间
金伟琦
浴室
浴缸将睡眠区域与卫生间隔离开。墙面的大面积留白,后期可以挂上心仪的画作。浴缸的台面与侧面包裹了防水材质的岩板。
▲卫浴区 金伟琦 卫生间
卫生间有比较多的收纳柜,同时也有双人使用的洗漱盆。这里的所有柜体都与地面留出一定的缝隙,避免潮湿与流水浸泡。
▲卫生间
金伟琦
项目信息与材料品牌
设计师:罗秀达
施工图深化:何沙
摄影:金伟琦
主要材料:黑色木饰面板、玻璃、不锈钢、乳胶漆。
全屋定制:阿贝尼全屋定制
家具:VITRA / HAY
窗帘:幔宅布艺
乳胶漆:JOTUN
金属定制:精锐卓金属
客服
消息
收藏
下载
最近


























