查看完整案例

收藏

下载
平咖啡坐落于杭州上城区紫安弄与天仙庙路的交叉口,向北不出四百米,便是流淌千年的京杭大运河。原址为两面临街的底层商铺,南侧、东侧与隔壁相接,另外两侧以及弧形转角为大面积严丝合缝的固定玻璃。虽与居民社区共融却缺乏商业氛围,周边商铺多数处于空置状态,零星分布着五金、杂货等便民商店。唯一的自然风景是面向西侧从杭州站引出的铁轨绿化隔离带。
píng coffee is situated at the junction of Zian Lane and Tianxianmiao Road in Hangzhou’s Shangcheng District. Barely four hundred metres to the north lies the millennia-old Beijing-Hangzhou Grand Canal. Originally a ground-floor shopfront flanked by two street-facing sides, it adjoins neighbouring properties to the south and east. The remaining two sides and curved corner feature expansive, seamless fixed glazing. Though integrated within a residential community, the area lacks commercial vibrancy, with most surrounding premises vacant and only scattered hardware stores and convenience shops operating. The sole natural feature is the green buffer strip along the railway tracks extending westward from Hangzhou Railway Station.
▼项目概览,Project overview© 吴昂
如何在疏远的场地和街道关系之间建立起日常的连接,以及周边萧条的商业背景下建立起场所感,成为项目设计改造的最大挑战。
The primary design challenge lies in establishing daily connections amidst the detached relationship between the premises and the street, while simultaneously fostering a sense of place within the context of the surrounding commercial decline.
▼场地原貌,The original appearance of the building© MOU建筑工社
京杭大运河作为人类历史上最长的运河,它并非天然的水系,而是由无数双手、无数个日夜开凿与疏浚而成的,智慧和汗水的结晶。从南到北绵延1794公里的人工自然画卷,将自然地理与人类意志融为一体,静静横亘在历史与大地之间。我们的场地,便置身于这条伟大运河的脉络之畔。西侧,铁路隔离带的绿意恣意生长,是自然的片段;南北两侧,则是朴素的居民生活承载着细碎温润的日常。这两种风景在此处相遇、碰撞。
▼区位图,site plan© MOU建筑工社
The Grand Canal, stretching 1,794 kilometres from south to north, is the longest canal in human history. Far from being a natural waterway, it is the crystallisation of wisdom and sweat, carved and dredged by countless hands over countless days and nights. This man-made natural panorama seamlessly blends geographical features with human will, lying quietly between history and the earth. Our site lies at the very heart of this great waterway’s network. To the west, the railway buffer zone teems with unrestrained greenery, a fragment of nature; to the north and south, unassuming residential life carries the gentle rhythm of everyday existence. Here, these two landscapes meet and collide.
▼沿街立面,Street facade© 吴昂
独特的场地气质,以及捕捉和融合眼前的这两种风景成为设计思考的原点。我们试图以建筑插件的方式,转译这份跨越千年的智慧:用水平延展的空间形态,回望运河绵长的历史画卷;用质朴的材料与克制的介入,让自然的生机与生活的烟火在空间中交织共生。
The unique character of the site, capturing and merging these two distinct landscapes before us, forms the starting point for our design contemplation. We endeavour to translate this millennia-old wisdom through architectural interventions: employing horizontally extended spatial forms to reflect upon the canal’s enduring historical panorama; utilising unadorned materials and restrained interventions to allow nature’s vitality and the everyday rhythms of life to intertwine and coexist within the space.
▼户外转角平台,Outdoor Corner Platform© 吴昂
▼弧形转角屋檐,Curved corner eaves© 吴昂
临街两侧的玻璃幕墙被16米长的墙体取代,新建墙体退让到柱子的背后,形成一个更大的户外平台。平台上方围绕建筑一周设置了转角屋檐,沿着墙体设置长椅,给街道社区带来了一个半户外的停留、休憩,遮阳避雨的地方。
The glass curtain walls flanking the street have been replaced by a 16-metre-long solid wall. This new structure is set back behind the columns, creating a larger outdoor platform. A corner eaves runs around the perimeter above the platform, with benches installed along the wall. This provides the street community with a semi-outdoor space for lingering and resting, offering shelter from both sun and rain.
▼内外关系,Internal and external relations© 吴昂
上下墙体脱开形成一道16m长的水平条形窗。街道两侧的风景同时被收在了1.2m高*16m长的巨幅画框里。在这悬浮的建筑体量内,将眼前的风景尽收眼底,让光线与静谧悄然渗入。从外部看形成了独特的建筑立面,远看就像一个微微打开状态的长方形盒子嵌在了原始场地内部。
The separation of upper and lower walls creates a 16-metre-long horizontal strip window. The scenery on both sides of the street is simultaneously framed within a monumental picture frame measuring 1.2 metres in height by 16 metres in length. Within this suspended architectural volume, the surrounding landscape unfolds before one’s eyes, allowing light and tranquillity to permeate the space. From the exterior, this forms a distinctive façade; viewed from afar, it resembles a rectangular box slightly ajar, embedded within the original site.
▼水平长条窗,Horizontal transom window© 吴昂
▼水平长条窗打开后的状态,The state of the horizontal long window when opened© 吴昂
▼窗扇打开后,内外连通,Window sash opened, connecting inside and outside© 吴昂
▼廊下空间,The space beneath the eaves© 吴昂
除了吧台,室内座位全部都是沿窗布置。由木匠师傅现场制作的可推拉木窗,让内外空气与视线得以相通,我们想创造出室内外的通透感和连续性,但是这种连续性又是让内外的人都同时具有一定的边界感,各自拥有独属于自己舒服的场域。
Apart from the bar counter, all indoor seating is arranged along the windows. The sliding wooden shutters, crafted on-site by master carpenters, allow air and sightlines to flow freely between indoors and outdoors. We sought to create a sense of transparency and continuity between the two spaces, yet this continuity also provides a subtle sense of boundary for those inside and outside, ensuring each occupies their own comfortable, distinct domain.
▼从室内看向窗外的风景 The view from indoors looking out of the window© 吴昂
正对吧台咖啡操作区域,我们同样也设置了与操作台面等长的条桌,咖啡师在制作咖啡时可以同顾客进行日常的对话。16m的水平长条形窗创造了电影感的动态画面,自然和日常两种风景每天都在窗前交织浮现。
Directly opposite the coffee preparation area at the counter, we have also installed a counter-length table where baristas can engage in daily conversation with customers while crafting their beverages. The 16-metre horizontal window creates a cinematic, dynamic vista, with both natural and everyday scenes interweaving before it each day.
▼从客座区看向咖啡操作台,Looking from the guest area toward the coffee bar© 吴昂
▼从室内看向西侧风景绿化带,View of the landscaped greenbelt to the west from inside the building© 吴昂
▼从室内看向北侧的居民日常风景,The everyday view of residents looking north from indoors© 吴昂
▼窗边的座位,Window seating area© 吴昂
▼水平长窗的延展,Horizontal Window Extension© 吴昂
地面铺陈着墨色天然石材,深邃、静谧;顶部是红雪松木,自室内缓缓延伸至外部的檐廊。通过材料与光线的巧妙组织,让人在空间中感受到流动的风景与时间的沉淀。
The floor is laid with ink-coloured natural stone, profound and serene; above, red cedar wood extends seamlessly from the interior to the external veranda. Through the skilful arrangement of materials and light, one perceives the flowing landscape and the sedimentation of time within the space.
▼从吧台看向点单区,Looking from the bar toward the order area© 吴昂
▼入口陈列区,Entrance Display Area© 吴昂
空间的内外墙面,均覆以定制的灰泥。师傅手作批刮的痕迹被保留,形成了粗糙而丰富的自然肌理。它们以一种谦逊的姿态,与周遭环境融为一体,为整个空间铺陈出朴素而静谧的底色。
The interior and exterior walls of the space are clad in bespoke plasterwork. The hand-applied texture, deliberately left unrefined, yields a richly textured, natural finish. With understated elegance, it harmonises with the surroundings, establishing a simple and tranquil foundation throughout the space.
▼从吧台座位区看向入口陈列区 Looking from the bar seating area toward the entrance display area© 吴昂
▼在廊下透过窗看向室内 Looking through the window into the room from the veranda© 吴昂
▼点单区和自助区,Ordering Area andSelf-service area© 吴昂
室内外陈列的家具与金属灯具,多是由主理人悉心挑选、来自上世纪的旧物。它们带着经年使用的温润光泽与独特纹理,为空间注入了难以复制的暖意,与一种如见故般的熟悉感。
The furniture and metal lighting fixtures displayed throughout the interior and exterior spaces are predominantly vintage pieces from the last century, meticulously selected by the principal curator. Bearing the warm patina and distinctive textures of years of use, they imbue the space with an irreplicable warmth and a sense of familiarity akin to encountering an old friend.
▼黎明时刻的平咖啡,píng coffee at the Hour of Dawn © 吴昂
在平咖啡,我们尝试为沉淀于内心的感受,找到一种空间的回应。于是,光的温度、器的触感、咖啡食物的本味与空间的静默,共同构成了一段完整的感知体验。这里不只是一个咖啡店,更是一处让日常与仪式欣然相遇的场所,体验空间。我们期望,这种朴素而专注的生活之美,能成为一种自然而然的日常习惯。
At píng coffee, we seek to find a spatial response to the emotions that settle within the heart. Thus, the warmth of light, the tactile quality of vessels, the authentic flavours of coffee and food, and the quietude of the space collectively form a complete sensory experience. This is not merely a coffee shop, but a place where the ordinary and the ritual meet with delight, experience space. We hope that this simple yet focused beauty of life may become a natural and effortless daily habit.
▼概念模型拆解,Conceptual Model Breakdown© MOU建筑工社
▼总平面图,MasterPlan© MOU建筑工社
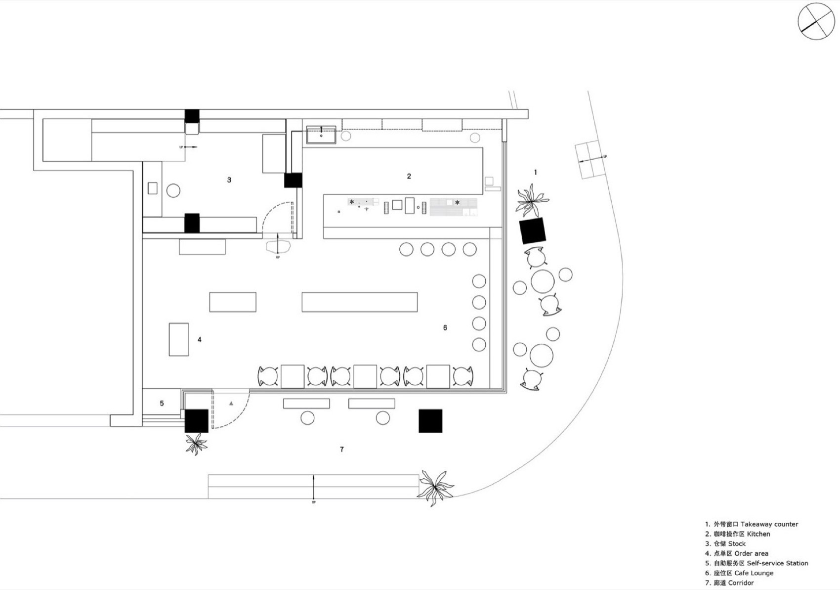
▼平面图,Plan© MOU建筑工社
▼剖面图,Section © MOU建筑工社
项目名称:平咖啡
项目地址:浙江省杭州市上城区天仙庙路与紫安弄交叉口
项目面积:100平方米
设计时间:2024
设计单位:MOU建筑工社
设计主持:吴状
设计团队:付仕玉,翟新晨
项目摄影:吴昂
主要材料:天然石材、定制灰泥、红雪松木、老榆木、不锈钢、锌钛板
Project Name: píng coffee
Project Address: Intersection of Tianxianmiao Road and Zian Lane, Shangcheng District, Hangzhou, Zhejiang Province
Project Area: 100 square metres
Design Year: 2024
Design Firm: MOU ARCHITECTURE STUDIO
Lead Designer: Wu Zhuang
Design Team: Fu Shiyu, Zhai Xinchen
Project Photography: Wu Ang
Principal Materials: natural stone, Customised stucco, red cedar, pinewood, stainless steel, zinc-titanium sheet
Email:
客服
消息
收藏
下载
最近




















































