查看完整案例

收藏

下载

翻译
Architects:Boyd Architects
Area:2300ft²
Year:2025
Photographs:Brennan Wesley Photography,Reagen Taylor Photography
Manufacturers:Fisher & Paykel,Emtek,Hartstone,Marvin,Phylrich,US Brick,Visual Comfort
Category:Residential Architecture,Houses
Lead Team:Lucas Boyd, Rachel Boyd
Design Team:Boyd Architects
Engineering & Consulting > Structural:Tobias & West
General Contractor:Collaborative Construction
City:Charleston
Country:United States
Text description provided by the architects. Radcliffe House is a single-family residence located in downtown Charleston's historic Radcliffeborough neighborhood. The 30'x100' non-conforming lot had been vacant since the late 1980s, when the original structure was destroyed in a fire.
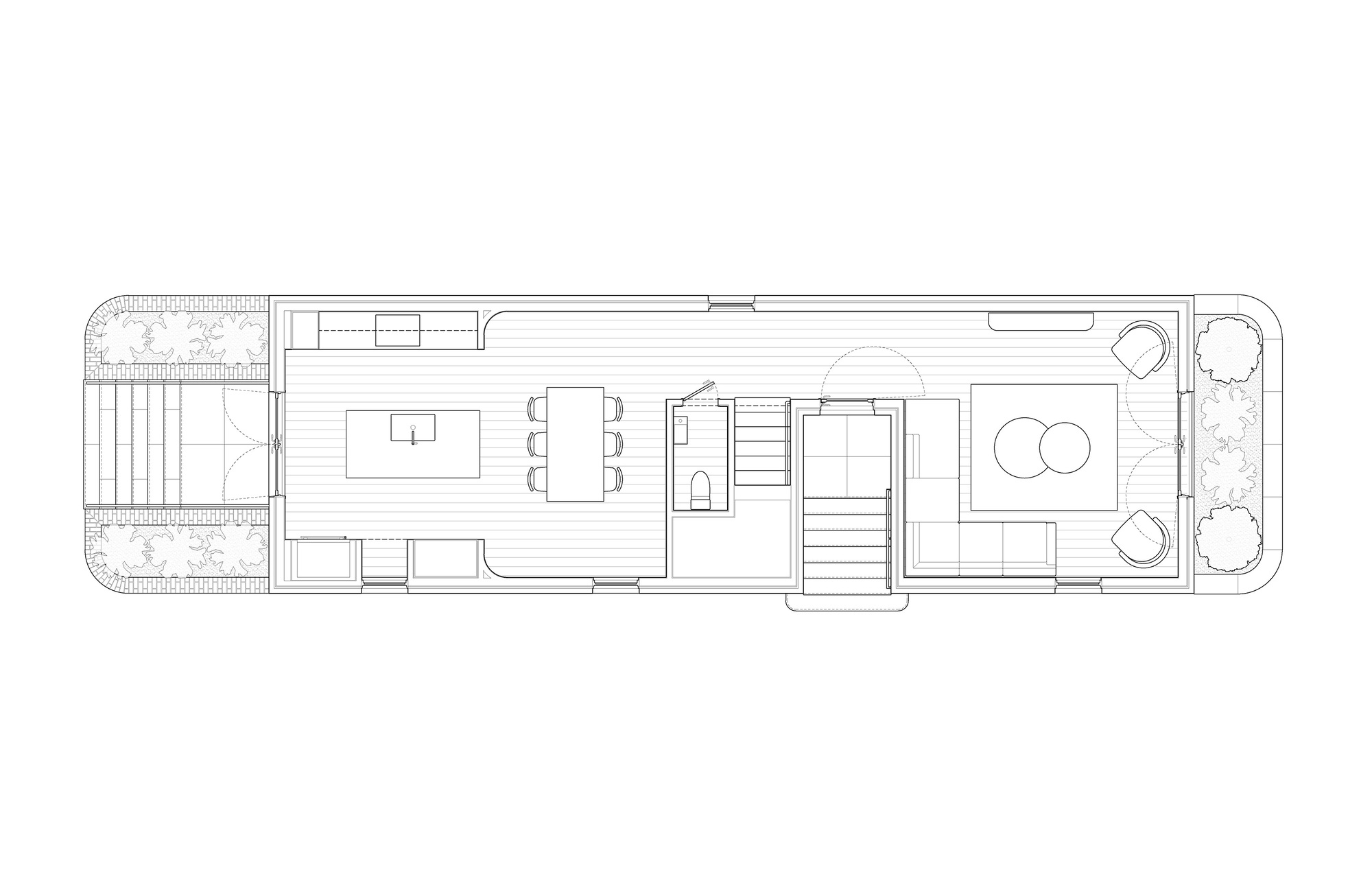
Balancing the myriad of zoning restrictions and flood zone requirements with the desire to subvert the reading of a lifted house served as the initial design challenge. The solution came by examining the formal structure of the Unit House, an Architectural Type on which the ubiquitous Charleston Single House is based.
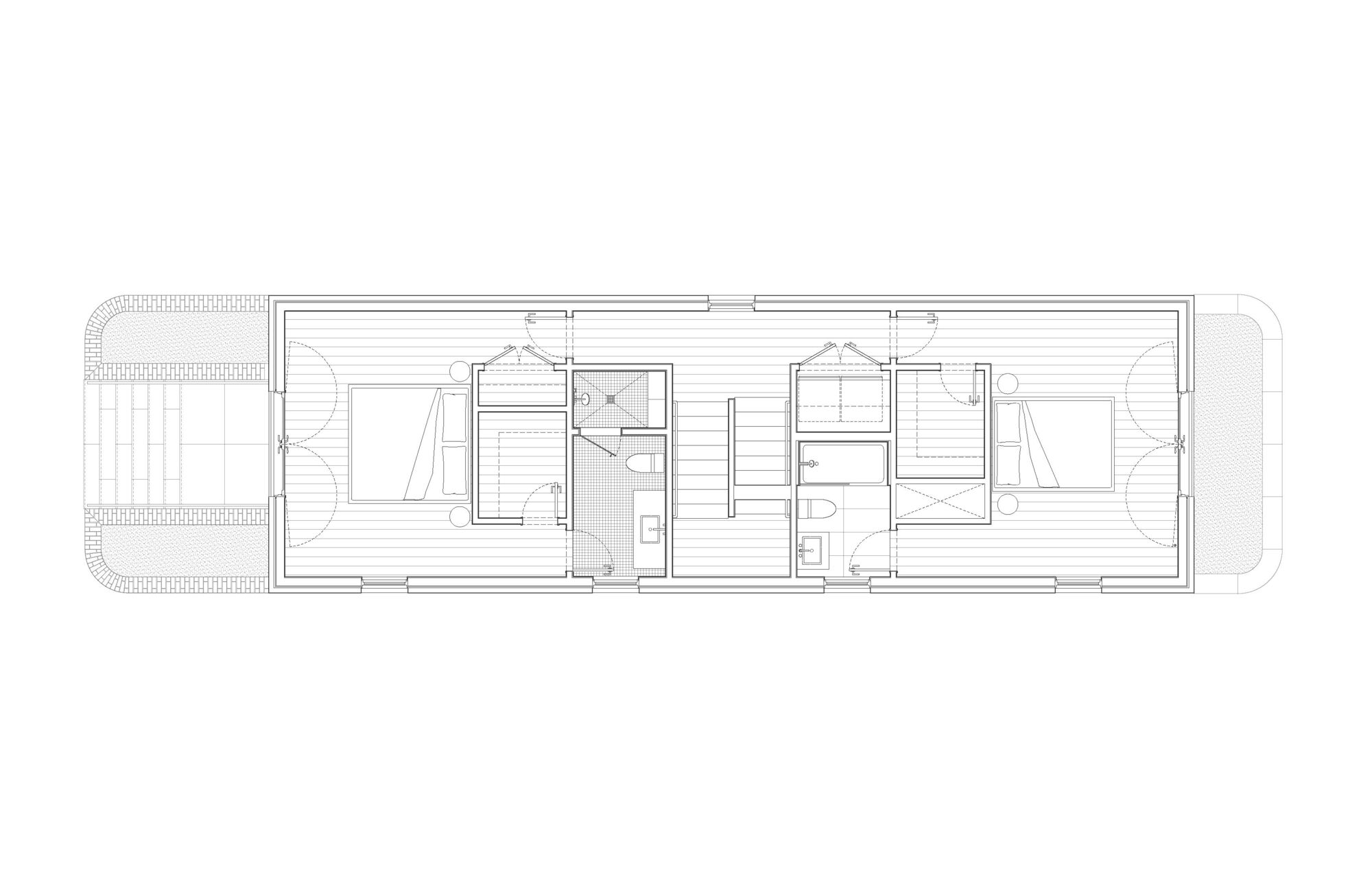
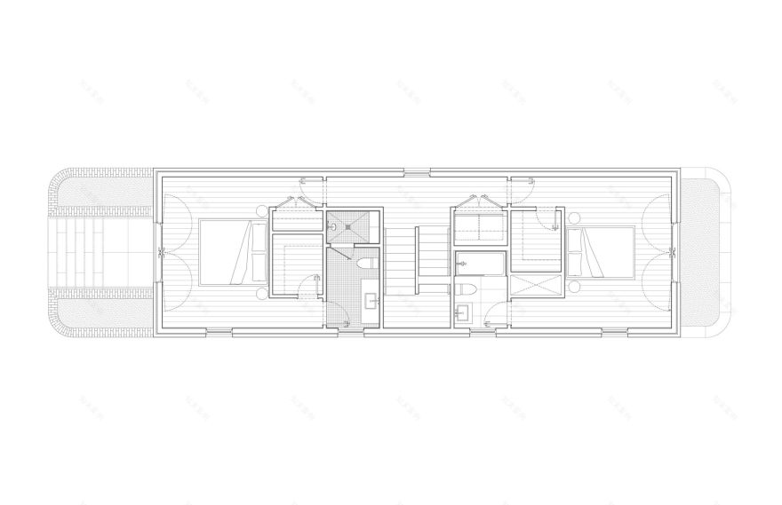
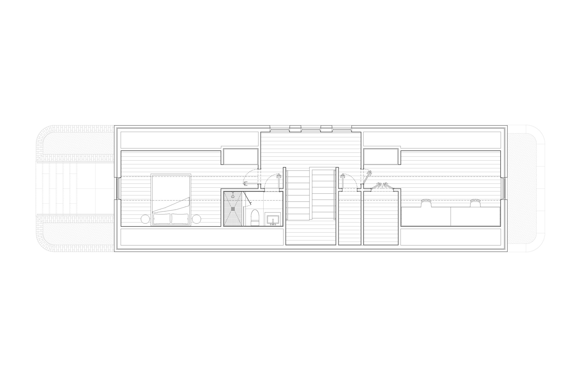
Commonly characterized by a side-loaded entry and a center hall switchback stair, Radcliffe House uses these elements to define not only the symmetrical plan configuration, but also the façade. The front entry stair, necessary for the elevation of the first floor due to flood regulations, is recessed into the side of the house. This external stair is directly adjacent to the internal stair and subsequently dictates the dimensions of the 4-bay window grid along the side of the house.
Raised planters that extend out from the single-bay front and rear façades and first-level windows that extend to the floor help to further subvert the reading of the typical raised house seen throughout the Lowcountry.
The house is clad entirely in tan-bodied queen-sized brick that has been laid with varying patterns of horizontal and vertical running bond. Recessed panels with Flemish bond coursing flank the openings. The header bricks in each of these areas are recessed further still, expanding the reading of the overall opening width while giving an architectural nod to the historic shutters commonly seen in the area.
The house measures approximately 2,300 SF in area and contains 4 bedrooms and 3-1/2 bathrooms. Bleached oak flooring is featured throughout the intentionally austere interiors. There is very little trim in the house; baseboard, door trim, railing brackets, etc, have all been meticulously designed out of the project.
Project gallery
客服
消息
收藏
下载
最近
































