查看完整案例

收藏

下载

翻译
Architects:Barré Lambot Architectes
Area:1885m²
Year:2025
Photographs:Juan Cardona
Lead Architects:Philippe Barré, Agnès Lambot
Lanscape Architect:Guillaume Sevin Paysage
Concrete Structure:ESTB
Acoustics:ITAC
Category:Elementary & Middle School
Cost Control:Ecb
Scheduling:Ecb
Timber Structure:ECSB
Thermal And Fluids Engineering:kypseli
City:Montaigu-Vendée
Country:France
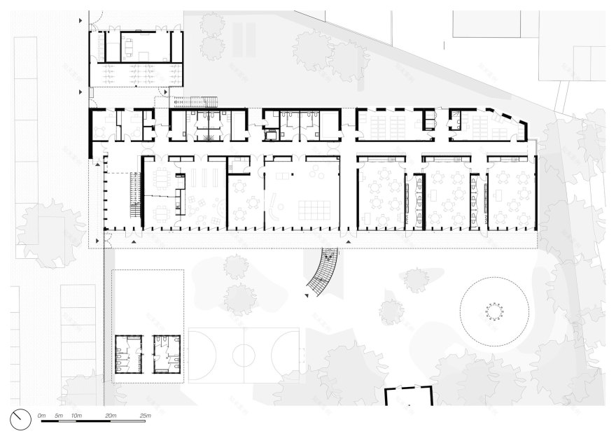
Text description provided by the architects. The Jules Verne School Complex consists of three preschool classrooms and their adjoining rest areas on the ground floor, seven elementary classrooms, and a visual arts workshop on the first floor. On the ground floor near the entrance, the administration area includes technical spaces, offices, and the teachers' lounge. The library, the extracurricular area, and the motor skills room are also located on the ground floor, close to the preschool classrooms and the main hall.
The project is located on part of the former "Cité de l'Aurore," where five residential towers once stood and have since been demolished. These towers, set in the middle of gardens, provided visual porosity from Rue de l'Aurore and pedestrian paths leading toward a heavily wooded backdrop.
The rest of Rue de l'Aurore features staggered building alignments, hedges, and fences marking the entrances to houses, along with the façades of the nursery and school restaurant, and the opaque fences of Jules Ferry Middle School.
The redevelopment of this site raises several key challenges:How can the continuity of Rue de l'Aurore be maintained while preserving its distinctive visual porosity toward the wooded background? How can a new urban sequence be created to initiate the development of future housing in the southern part of the former "Cité de l'Aurore"? How can a major public facility be integrated into an already well-established suburban fabric?
The building extends along the length of the site, preserving the visual porosity toward the wooded area to the west, visible from Rue de l'Aurore. Its gable faces the street, defining and framing the school's forecourt.Oriented northeast–southwest, the design maximizes façade exposure to the south-facing courtyards, allowing as many classrooms as possible to have direct access to outdoor spaces.
The upper-level walkways and overhangs serve as solar protections while extending the classrooms toward the exterior. They also function as secondary outdoor circulation paths, helping to ease internal traffic. The northern part of the site is designed as an educational garden—a calm buffer zone between the residential area and the building, which presents its quietest façade.
The project's compact form ensures a clear and efficient layout of the school's various spaces while maximizing its relationship with the generously planted courtyards.
Reflecting the simplicity and rationality of its spatial organization, the building's structure highlights its timber framework. A concrete "table," composed of in-situ poured slabs and insulated precast walls, forms the northern part of the ground floor. This section houses service areas and rooms requiring high acoustic insulation. Timber half-frames are anchored to this base, supporting a mixed wood–concrete floor slab. On the upper level, the wooden frames continue the ground-floor grid and form the entire upper volume.
Bio-based insulation materials (wood wool, hemp, and recycled fabrics) are used in the timber-frame envelope beneath a stained larch cladding. The oak–aluminum composite windows follow the building's structural rhythm and harmonize with the overall material palette.
Project gallery
客服
消息
收藏
下载
最近
































