查看完整案例

收藏

下载
01 时光筑造
本案是位于深圳的一套联排别墅,室内空间运用大量拱形元素,在建筑关系上也做了许多呼应,墙面采用微水泥肌理材质,达成空间语言的统一。
素白拱门框景,将光线与建筑结构编织成画,粗粝纹理的吊灯悬于上空,原木餐椅围合餐桌,承载着三餐四季的烟火。
向自然借景,弧形顶与窗外绿意对话,开放式茶室嵌在落地窗前,煮茶时,山风穿堂、树影爬桌,把“人在草木间” 的意境揉进别墅的日常里。
室内楼梯设计以拱形元素为核心,通过架构关系确立其空间中枢地位。壁炉采用解构主义的手法,形成秩序叠级。
以建筑力量为依托的设计手法,赋予空间独特而沉稳的气质,使弧形元素成为塑造空间结构与氛围的核心语言,既保持了建筑框架的纯粹性,又让空间因这些线条而焕发出自然生长般的韵律感。
负一楼设置成酒吧区,下沉式客厅,是家的“隐秘宇宙”,也让酒吧区的微醺感更浓。
拱窗截取自然作几何小品,素墙承接光影与人文。
阶梯式书架向上生长,把时光垒成知识的塔。
穹顶设计打破常规,赋予空间独特的建筑韵律,每一寸都藏着对“居有常,心自安” 的注解,把家的治愈力,深植在这方穹顶之下。
普拉达绿大理石台盆撞色温润墙面,圆窗漏进慵懒光线,弧形余韵漫进空间,环形动线串联起洗漱日常。设计图纸
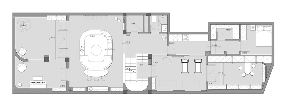
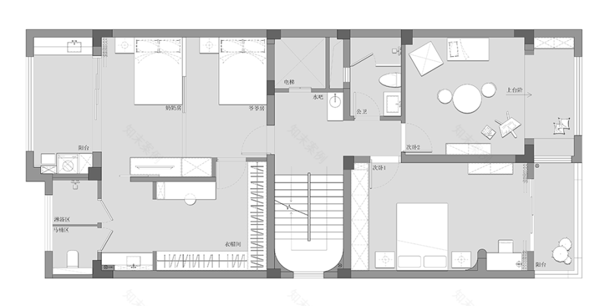
负一层平面图
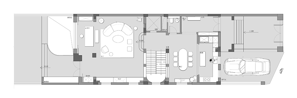
一层平面图
二层平面图
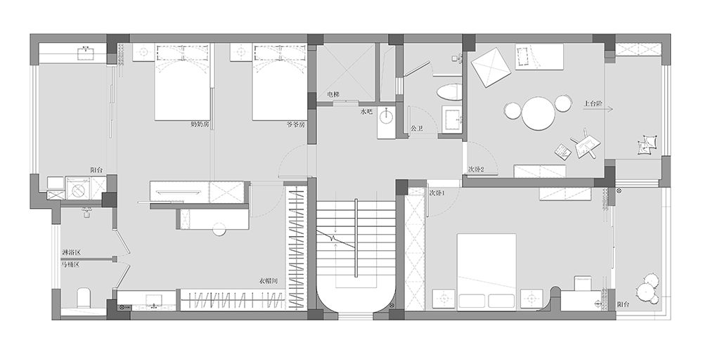
三层平面图
项目地址:深圳市
项目面积:550㎡
设计机构:时光筑造
02白东旭×焦
这是一处已经浸润了20年光阴的老别墅,位于上海嘉定,空间居住着一对阅历丰富的夫妇,他们全球旅行,偶尔回来居住。
褪去老房原先的陶土色外壳,换上简约而宁静的白色外墙。墙面在阳光下泛着细微暖意,让整座建筑瞬间变得明亮、安静且当代。
步入家门,是一曲由三段弧形墙体奏响的、充满韵律的空间序章。这三道柔和的弯墙,优雅地、彼此留有分寸地错落布置,留下了让光线与空气自由穿梭的“呼吸之隙”。
圆形客厅是整个家的景观内核,整面优雅的曲面落地玻璃将整个庭院的青苔、砂石、梧桐树影,毫无保留地“借”了进来。
开放一体的西厨吧台与餐厅区域,空间流畅地过渡,功能悄然地转换,保证了家庭互动与视线上的开阔贯通。
用餐区被赋予了更极致的观景体验,一整面巨大的落地玻璃窗,毫无保留地将庭院景致完全纳入室内,仿佛餐厅本身就坐落在庭院之中。
过去的荒芜被精心梳理,转化为一方充满禅意的冥想花园。设计师用竹篱重新定义边界,视线掠过矮墙,恰好只能看见几株老树或新栽的乌桕、枫树的树冠,在空中形成一片绿色的凉荫。
寻阶而上,楼梯以一种轻盈、简约的姿态倚着窗墙,干净利落,没有多余的赘饰。
沿着楼梯步入二层,便进入了更为私密的休憩领域,主卧空间是最为安宁和诗意的精神角落。床头的背景墙,是整个空间的定调之笔。
临窗的阅读与工作角落,一整面巨大的落地玻璃窗,午后最常见的景象便是光斑筛在书桌上、窗帘上,在这里伏案,心情也会随着这些跳跃的光斑变得轻盈而静谧。
卫浴空间里洁白独立的弧形浴缸,最为诗意与梦幻,户外的梧桐树影投在整个玻璃窗上,光影婆娑,真实与虚幻、室内与室外、光影与树影在此刻完美交融,营造出一种极度浪漫、静谧而梦幻的沉浸体验。
设计图纸
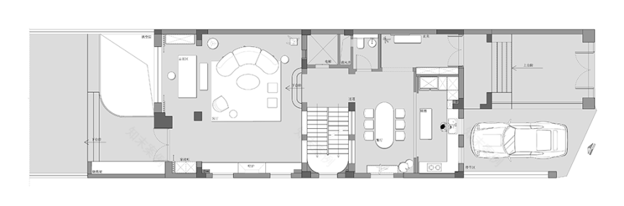
一层平面图
△二层平面图
项目地点:中国·上海
项目施工:尚层别墅装饰上海浦西分公司
主创设计:白东旭 焦恒
园林设计:倚庭景观
项目摄影:阿刁
品牌策划:回响之外
延伸阅读
现在必须加“星标”才能第一时间收到推送
客服
消息
收藏
下载
最近









































































