查看完整案例

收藏

下载

翻译
Architects:MMCV
Area:250m²
Year:2023
Photographs:Juan Muller
Manufacturers:Crotti,DE OTRO TIEMPO,Dekton,Herrajes Hilton,Huup,MF HERRERÍA,Robinet,SBG,Tondat
Category:Houses
Architects In Charge:Sergio Mizraji, Jacqueline Cicchinelli
Design Team:Jazmín Suárez, Sergio Solé, Juan Muller, Francisco Cerviño
Technical Team:Patricia Barragán
General Construction:Ormigón
City:Buenos Aires
Country:Argentina
Text description provided by the architects. Located in the Villa Devoto neighborhood of Buenos Aires, Po-Yo House emerges from the integral transformation of an existing house. The project proposes a contemporary interpretation of its original structure, reclaiming its spatial virtues and giving it a new identity.
The starting point was to integrate the interior and exterior spaces, amplifying height, light, and visual continuity. The intervention removed partitions and highlighted the exposed concrete structure, which serves as part of the character and memory of the house. The new envelope is defined as a visible concrete box that gives the house a strong identity, creating the sensation of a monolithic, solid, and precise piece.
Through the 3.5-meter-high gate, made of folded sheet metal, access is granted to a small patio that functions as a threshold and extension of the urban space. The entrance, articulated by a sequence of concrete cubes, proposes a gradual path that separates the house from the street and anticipates the interior experience.
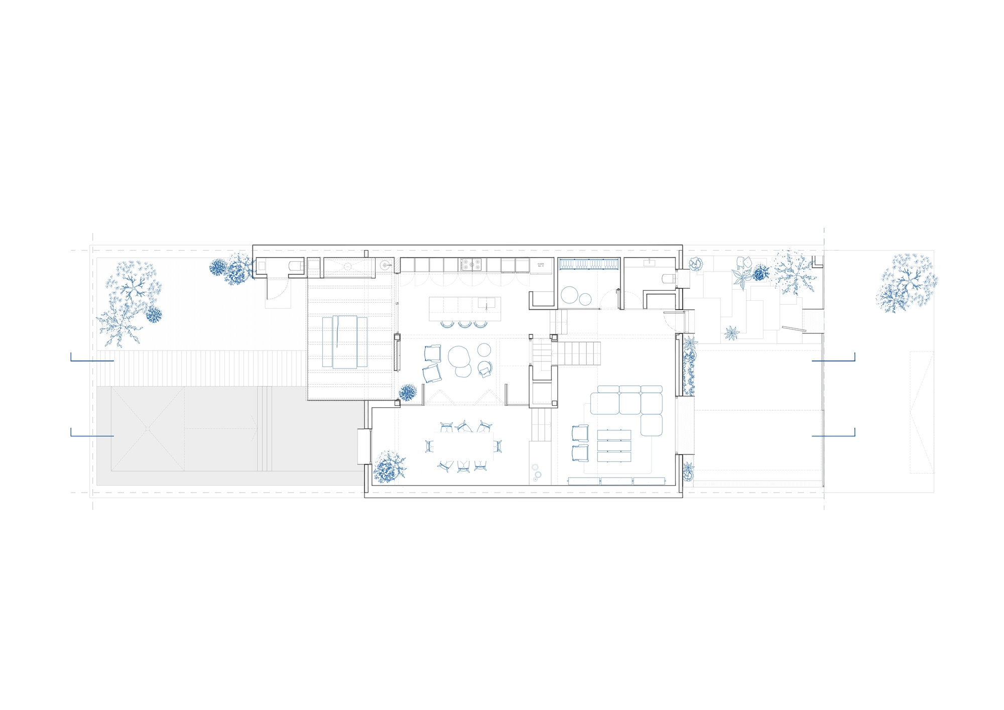
Once inside, the main living area is the first space in a sequence organized by the original levels of the house. A few steps down are the kitchen and dining room, directly connected to the garden and pool. From the living area, a staircase leads to the upper floor, where the master suite and two additional bedrooms are located; while another independent staircase descends to the basement, which houses the playroom and laundry room.
These differences in levels, far from fragmenting the journey, enhance cross-views and the connection between different areas, adding dynamism and spatial depth. The main staircase becomes a sculptural piece: its trajectory pierces the sloped ceiling and creates a play of diagonals that reinforces the existing geometric identity. The metal frames around the openings generate shade and define a new rhythm on the facade.
Inside, stone-like floors, anodized carpentry, and wooden furniture create a serene and timeless atmosphere. More than just a renovation, Po-Yo House is a reinterpretation of an existing structure: an operation that combines respect for the past with a contemporary perspective on urban living.
Project gallery
客服
消息
收藏
下载
最近



























