查看完整案例

收藏

下载
Mario Marcantonio
建筑内部包含两间大型大厅,用于现场音乐演出与聆听专场。声学系统由Labirinti Acustici精调,室内设计则由OTS–Off the Shelf完成,在技术精准与创意自由之间取得平衡。白天,这里是一间餐厅与聆听酒吧;夜晚,它则化身为都市舞台。
co.arch studio
位于米兰西北部的Certosa区,这片由RealStep推动的城市更新区域,如今已成为米兰最具活力的美食聚集地。这里矗立着一座建于二十世纪初的别墅,但它曾经是一座屠宰场,也一度沦为非法占据的空间,是城市中被遗忘的片段。而如今,它重生为米兰青年俱乐部,一个融合餐饮、聆听酒吧与现场音乐的多元空间。
项目外观 © Simone Bossi
室内概览 © Mario Marcantonio
该项目由 RealStep 推动,旨在为社区注入新的活力。设计委托给 co.arch studio(建筑师 Andrea Pezzoli Giulia Urciuoli),他们面临的挑战明确而大胆:在不削弱历史性的前提下保留别墅的原貌,并通过鲜明的当代介入来放大其个性。
鲜明的当代介入 © Mario Marcantonio
讲述故事的修复
原有的建筑材料,诸如水泥地砖、灰泥、历史字迹等都被悉心修复。而建筑的设备系统则刻意外露,如金属脉络般穿梭于墙体与天花之间,营造出一种介于工业风、达达主义与赛博朋克之间的视觉氛围。设计意象不难追溯至Terry Gilliam的《巴西》、日本动画《Akira》以及多种复古未来主义的反乌托邦想象。
外露的设备系统 © Simone Bossi
独特的视觉氛围 © Simone Bossi
未来主义的反乌托邦
© Mario Marcantonio
在这里,Genuit 的外露钢制管道不再只是技术解决方案,而是一种为空间添加了新“表皮”的叙事性设计装置。金属的反射、折射与中断在不规则的表面间交织,突出了过去与当下之间的时间张力。
叙事性设计
© Mario Marcantonio
两种灵魂,一个舞台
建筑内部包含两间大型大厅,用于现场音乐演出与聆听专场。声学系统由Labirinti Acustici精调,室内设计则由OTS Off the Shelf完成,在技术精准与创意自由之间取得平衡。白天,这里是一间餐厅与聆听酒吧;夜晚,它则化身为都市舞台。
白天的室内空间 © Mario Marcantonio
夜晚的都市舞台
© Mario Marcantonio
被揭示的表皮
建筑外壳遵循相同的设计逻辑:别墅被“剥离”回原始形态,清除多余层叠后显露出檐口、装饰框架,以及刻在立面上的历史铭文SUINI DA MACELLO(意为“待宰猪”)。这是一次既讽刺又激进的设计动作——让新功能与旧记忆相互呼应,而非彼此取代。
立面上的历史铭文 © Simone Bossi
入口
© Simone Bossi
当代的嫁接
两处介入重新定义了立面:一是面向街道的大型橱窗,既将城市景象引入室内,又承载了俱乐部的霓虹招牌;二是由钢与穿孔金属板构成的外部楼梯,连接两层大厅并延伸至露台,使建筑的垂直流线也成为音乐体验的一部分。
霓虹招牌
© Mario Marcantonio
一座逆流而行的别墅
Club Giovanile Milano毗邻La Forgiatura,那是一个同样由RealStep推动的城市更新项目。然而,这里采用了刻意对比的语言。若说La Forgiatura是创新的当代园区,那么这座别墅则像一件拒绝被同化的1930年代遗迹,以“异类”的姿态安坐于新街区之中,强调自身的独立与差异。
保留的建筑细部 © Simone Bossi
家具细部
© Simone Bossi
项目图纸
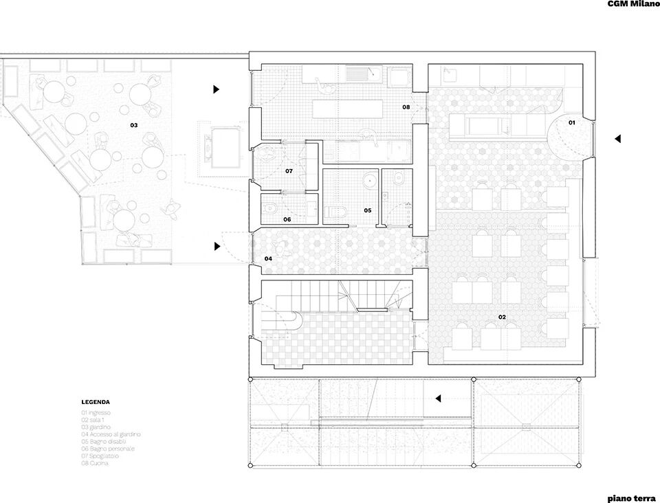
一层平面图
© co.arch studio
二层平面图 © co.arch studio
剖立面图
© co.arch studio
CREDITS
Un progetto di co.arch studio / A project by co.arch studio
ARCHITETTURA PROGETTO DEFINITIVO, ESECUTIVO E DIREZIONE ARTISTICA
ARCHITECTURE , EXECUTIVE DESIGN AND ARTISTIC DIRECTION
arch. Andrea Pezzoli e arch. Giulia Urciuoli
team collaborators
Matteo Torti, Gaia Uslenghi, Federica Leonardi, Beatrice Perin
INGEGNERIA
Progetto strutturale _ ing. Gianluca Puccetti
progetto elettrico P.I. Francesco Vaghi
progetto impianti meccanici P.I. Emanuele Mandelli
ALLESTIMENTI INTERNI E ARREDI / INTERIOR FURNITURE
OTS
Off the shelf
ACUSTICA/ACUSTIC DESIGN
Labirinti acustici
DIREZIONE LAVORI/PROJECT MANAGEMENT
Studio Bossi
Ing. Naima Nocito, Ing. Naima Nocito, Ing. Sonia Zani, Ing. Mario Andrita
Photos by Simone Bossi
Photos by Mario Marcantonio
General Contractor
RCM S.r.l. (edile, pavimento, impianti, serramenti e strutture)
Impianti elettrici
Future Energy Sync
Impianto elettrico a vista
Genuit
Soffitto acustico
Sonaspray
LUCI / LIGHTS
Egoluce
Artemide
COMMITTENTE/CLIENT
Proprietario
Realstep
Tenant
Setali
客服
消息
收藏
下载
最近























