查看完整案例

收藏

下载
项目名称:美国旧游艇俱乐部
位置:美国
设计公司:埃利奥特建筑师事务所
一个废弃的游艇俱乐部坐落在海湾边上,被废弃多年,见证了缅因州无情的沿海气候。建于1919年,在1946年俱乐部搬迁后,它经受了一系列的干预。这导致了大部分内部结构的拆除,所有保持完整的是原来的俱乐部房间。它需要正确的气质和承诺来恢复其历史记忆,同时使20世纪初的结构现代化。部分建在壁架上,部分建在粘土上,地基正在恶化,上面结构的严重沉降就是证明。此外,它的设计从未符合现行的洪泛区法规。石墙需要支撑和支撑,以承受现场的恶劣条件。于是,上层建筑被拆除,俱乐部房间被一块一块的解构,每一个都贴上标签,编号。烟囱也被拆除了;一个巨大的拼图玩具被小心地放在地上,以备将来重新组装。
在地基被加固和重新上漆后,一个新的木质和钢制的上层建筑按照原来游艇俱乐部的形状和轮廓竖立起来。在这个外壳里,俱乐部房间被重建,充满了与之配套的烟囱。这里是新建筑的出发点。翻新常常让人想起忒修斯的船的思想问题。一个人如何在不混淆过去和现在的情况下修复一个历史建筑并使其适应新的用途?这种情况下的解决方案涉及到开发一种建筑语言,这种语言与过去相关,而与现在明显相关。两次大的搬迁帮助它变成了一个住宅,同时向它的过去致敬。在这两种情况下,新旧是截然不同的。用大型滑动玻璃面板替换俱乐部房间的一个角落,再加上两个玻璃天窗,将原本没有光线的建筑变成了一个双向采光的容器。
虽然白天阳光可以深入室内,但晚上它却是海岸上的一盏明灯,提醒着人们记忆的恢复。这个地点的组织遵循一个仪式性的进程,从到达,通过景观的各个方面,到大海远景的顶点。人和汽车到达同一个地方,一个高高在上的入口。禁止车辆从此处进入,行人和乘客在此处汇合并下降。一系列的石阶定义了一条蜿蜒的小路,通向房子的入口,或者沿着地形延伸到一个俯瞰大海的露台。在这里,房子从壁架上显露出来,甚至那些不透明的部分也与环境融为一体。现代干预似乎与传统的和谐,从来没有对抗。有些熟悉的东西,但有些意想不到的东西。它邀请发现和探索,唤醒曾经遗失的记忆。
美国旧游艇俱乐部外部实景图
美国旧游艇俱乐部外部实景图
美国旧游艇俱乐部外部实景图
美国旧游艇俱乐部外部实景图
美国旧游艇俱乐部外部实景图
美国旧游艇俱乐部外部实景图
美国旧游艇俱乐部外部实景图
美国旧游艇俱乐部外部实景图
美国旧游艇俱乐部外部实景图
美国旧游艇俱乐部外部实景图
美国旧游艇俱乐部外部实景图
美国旧游艇俱乐部外部实景图
美国旧游艇俱乐部外部实景图
美国旧游艇俱乐部外部实景图
美国旧游艇俱乐部外部实景图
美国旧游艇俱乐部外部实景图
美国旧游艇俱乐部外部实景图
美国旧游艇俱乐部内部实景图
美国旧游艇俱乐部内部实景图
美国旧游艇俱乐部内部实景图
美国旧游艇俱乐部内部实景图
美国旧游艇俱乐部内部实景图
美国旧游艇俱乐部内部实景图
美国旧游艇俱乐部内部实景图
美国旧游艇俱乐部内部实景图
美国旧游艇俱乐部内部实景图
美国旧游艇俱乐部内部实景图
美国旧游艇俱乐部内部实景图
美国旧游艇俱乐部内部实景图
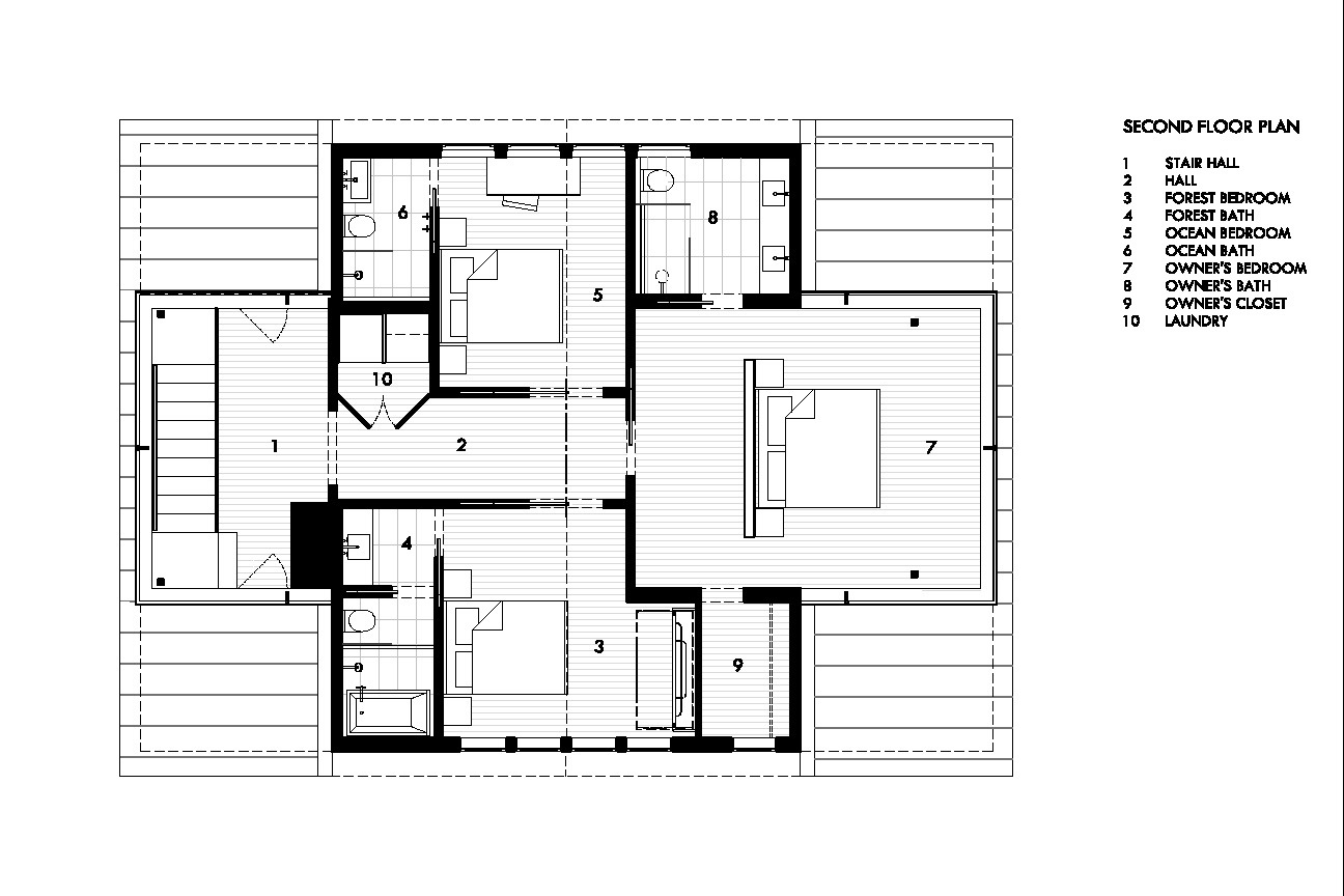
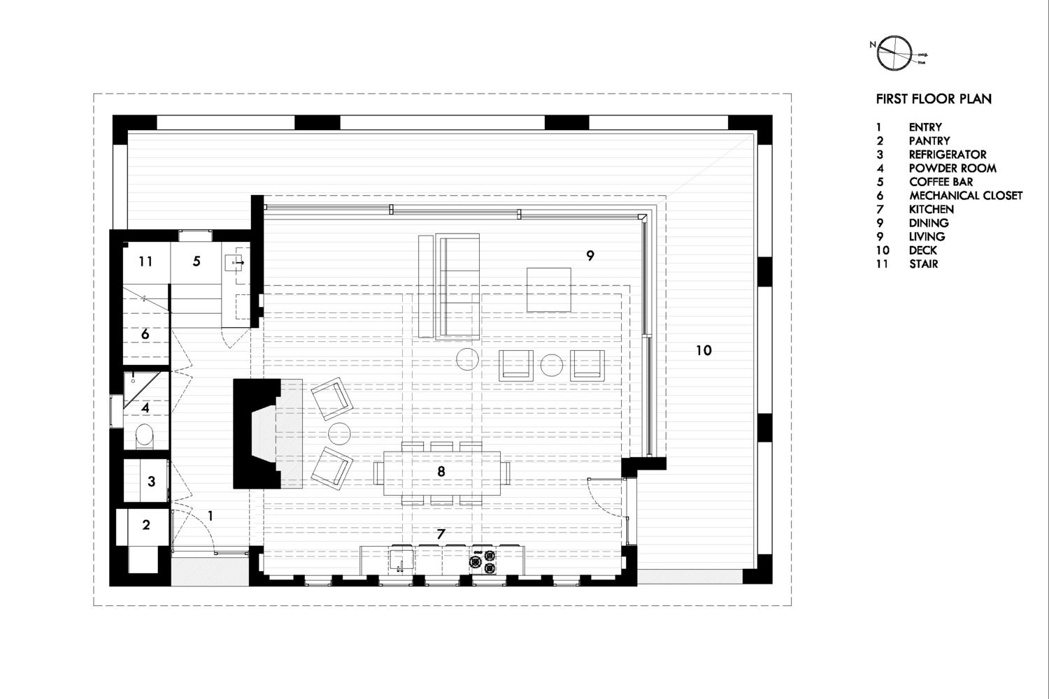
美国旧游艇俱乐部平面图
美国旧游艇俱乐部平面图
美国旧游艇俱乐部平面图
美国旧游艇俱乐部平面图
美国旧游艇俱乐部立面图
美国旧游艇俱乐部立面图
美国旧游艇俱乐部立面图
美国旧游艇俱乐部立面图
客服
消息
收藏
下载
最近







































