查看完整案例

收藏

下载
Santora居酒屋位于台北熙攘的街巷中,从外部看并不显眼。店铺的立面采用了白色铁板,随着时间的流逝,铁板表面自然生锈,形成了斑驳的视觉效果,这不仅增添了店面独特的古朴氛围,也象征着岁月的洗礼。铁质材料的运用赋予居酒屋一种坚固且质朴的气质,白色的铁板和自然生锈的效果相互交织,在温暖的灯光下,呈现出一种浓厚的历史感和亲切感。
“Santora”在日语中意为三只老虎,这一名称成为了居酒屋整体设计的核心理念。内墙的装饰采用了日本传统的写实绘画艺术风格,结合了艺术涂鸦的现代手法,展现出传统与现代交织的独特魅力。三只老虎的形象通过水墨技艺的表现生动展现了三方合作的非凡气势。现代的设计与传统的技艺相结合,形成了独特的视觉冲击力,并且巧妙地通过落地玻璃窗吸引路人目光,无形中塑造了“猛如虎”的品牌形象。
Santora居酒屋的设计突破了传统的日本风格,采用了大胆的创新。外柱覆盖着现代化的铁板,而外墙则用原木、麻绳和清酒桶等传统元素进行建造。通过新旧材料的结合,居酒屋成功地体现了传统与现代之间的冲突与和谐。尤其是在细节设计上,餐厅使用了老虎的尾巴作为元素,天花板上的铁管涂成黄色,顾客在进入厕所时,便会被黄色的铁管引导。啤酒桶座椅、金属架子手柄以及地板上的“Santora”标志等细节,巧妙地融入了“传统”,“融合”和“重生”的设计理念,使得整个空间充满生动的艺术气息。
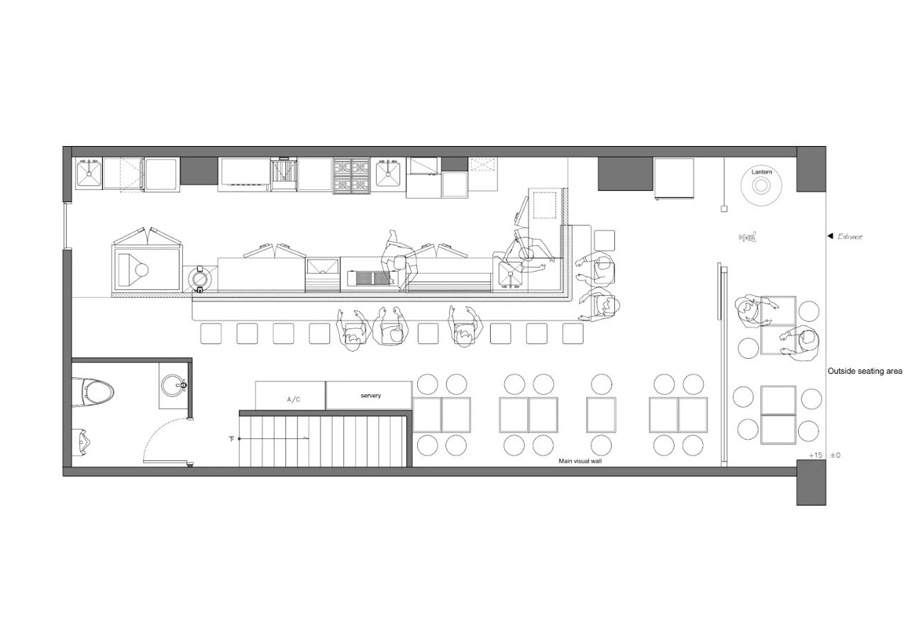
Santora居酒屋忠实地继承了日本的“酒吧文化”,并在此基础上进行了精准的设计升级。特别是在吧台设计上,L形的客人座岛与厨房之间的X-Y轴距离经过精确计算,使得客人与客人之间的距离得以迅速缩短,增强了互动性。此外,吧台上的客人与厨房厨师之间的距离也得以优化,客人和厨师之间的零距离互动让整个用餐体验更加亲密与温馨。
居酒屋的外墙设计采用了透明玻璃替代封闭的实体墙,极大地拓展了室外平台的空间,带来了更宽广的视野。玻璃墙体使得室内外空间产生了无缝的连接,街景和灯光通过窗户进入室内,在视觉上创造了层次感。特别是在夜晚,光线与阴影的交织,为居酒屋营造了富有变化的氛围,给顾客带来了愉悦的视觉体验。
客服
消息
收藏
下载
最近




















