查看完整案例

收藏

下载
F L Y ¢ D E S I G N ⊙ #
繁星汇聚·岁月成集
#
美,本就是千万种情绪的集合,是不同时间、不同心境下我们对共鸣的隐秘渴求。围绕居者感受将多层次的情绪以实物美学的具象形式表达,包豪斯的利落线条与轻法的柔美不期而遇,侘寂的拙朴温润在光阴中沉淀——折衷,是对生活最自由的注解,当器物与空间在呼吸间共振,家不再只是居所而已,是一场流动的情绪盛宴。
Beauty is the convergence of countless emotions, a hidden longing for resonance that emerges under different times and moods. By focusing on the dwellers’ experience, we express layered emotions in the concrete form of physical aesthetics—where the crisp lines of Bauhaus meet the gentle elegance of light French style. The simplicity and warmth of wabi-sabi settle over time, while eclecticism offers the most liberated interpretation of life. When objects and space resonate in breath, home transcends mere shelter to become a flowing feast of emotions.
客厅 / Living Room
客厅 / Living Room
客厅 / Living Room
客厅 / Living Room
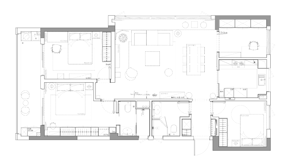
居者对于精装房的硬改希望保留在最小尺度,适度的微调搭配软装的铺陈让空间焕发新的面貌。期待多元风格的表法让家的每处角落都流转着动人的情绪,满载生活气息的同时,满而不冗,多而不乱。保持原硬装基调以极高兼容性容纳家居的多种可能,调整横厅布局,沙发靠窗摆放最大化客厅空间,过道融于客厅的同时,餐厅就餐的落座动线也更加宽敞便利。
Residents hope to keep the hard renovation of their furnished rooms at the smallest scale, with moderate adjustments and soft furnishings to give the space a new look. Looking forward to diverse styles of expression that bring moving emotions to every corner of the home, filling it with a lively atmosphere while being full but not redundant, and abundant but not chaotic. Maintain the original hard decoration tone with high compatibility to accommodate various possibilities of home furnishings, adjust the layout of the horizontal hall, place the sofa against the window to maximize the living room space, integrate the aisle into the living room, and make the seating flow in the dining room more spacious and convenient.
客厅 / Living Room
客厅 / Living Room
客厅 / Living Room
客厅 / Living Room
我们的情绪从不单一,家也该容纳所有真实的模样,不困于某种主义的标签,糅合有包豪斯、轻法、侘寂于一室的折衷是情感最生动的表达; 精心挑选的每件单品放置在不同的生活场景之中,一步一景、易景换情,丝滑承接人物丰富的情绪流转。亮眼的复古绿作为空间的主要点缀色丰富家居色彩,情绪明快而温柔。同时以不同明度与饱和度的绿丰富其层次感,复古绿的一方斗柜、豆绿色布艺沙发、以及绿植插花的葱茏绿意,与实木、棉麻、藤编的交织,肌理与色彩达成的平衡,浪漫的生机与诗意的复古感悄然交融。
Our emotions are never singular, and our home should also accommodate all true appearances, not trapped by certain ideological labels. The most vivid expression of emotions is the compromise of Bauhaus, Light Fa, Wabi Sabi in one room; Each carefully selected item is placed in different life scenes, step by step, changing emotions with each scene, and smoothly carrying the rich emotional flow of the characters. The eye-catching retro green serves as the main accent color of the space, enriching the home color and creating a lively and gentle mood. At the same time, different levels of brightness and saturation of green are used to enrich its sense of hierarchy. The retro green square cabinet, bean green fabric sofa, and lush greenery with green plants and flowers are interwoven with solid wood, cotton and linen, and rattan weaving, achieving a balance between texture and color. The romantic vitality and poetic retro feeling quietly blend together.
客厅 / Living Room
客厅 / Living Room
客厅 / Living Room
客厅 / Living Room
客厅 / Living Room
冰冷地砖更换为复古色的地板,阳光透过温润的百叶窗、撒到细腻的织物上、壁炉上,光影跃动细腻动人。
晨光爬上窗台,木纹在慢述着故事,暮色漫过沙发时,织物发出呢喃。阴天傍晚或是晴日夕阳,日与夜的光线流转,晨昏执笔,光影为墨,肌理与记忆交织下的家在多样的天气下有着丰富的故事脉络有待发生,鲜活的家居情绪陪伴他们对生活细腻的感知、治愈日常的褶皱。
The cold floor tiles have been replaced with retro colored flooring, and sunlight shines through the warm blinds, onto delicate fabrics and fireplaces, creating a lively and charming interplay of light and shadow. The morning light climbed up to the windowsill, the wood grain slowly telling stories, and as the dusk spread over the sofa, the fabric murmured. On cloudy evenings or sunny days with setting sun, the light of day and night flows, the morning and dusk brush, the light and shadow are ink, and the interweaving of texture and memory in the home has rich story threads waiting to happen in various weather conditions. The vivid home emotions accompany their delicate perception of life and heal the wrinkles of daily life.
客厅 / Living Room
客厅 / Living Room
餐厅 / Dining Room
餐厅 / Dining Room
入户拱形门廊增添法式温婉浪漫气息,如框景镜头般将望向餐厅视角变为入户美学的置景画面。包豪斯的克制与轻法的浪漫共舞,木质百叶帘、蚕丝竹节吊灯、中古餐椅,富有韵律地排列呈现在眼前。餐厅一旁厨房门更换为复古老钢门+艺术玻璃的组合,集功能性与装饰性一体,且具备通透感与遮挡性。
The entrance arched porch adds a French gentle and romantic atmosphere, transforming the perspective of the restaurant into an aesthetic setting like a frame shot. The restraint of Bauhaus and the romantic dance of light magic, with wooden blinds, silk bamboo pendant lights, and antique dining chairs arranged rhythmically before our eyes. The kitchen door on the side has been replaced with a combination of vintage old steel door and artistic glass, which integrates functionality and decoration, and has a sense of transparency and occlusion.
餐厅 / Dining Room
餐厅 / Dining Room
餐厅 / Dining Room
餐厅 / Dining Room
书房 / Study
拓宽书房房门,吊轨式玻璃折叠门让内与外的距离更为紧密,开合随性的折叠门可与公区适当互动,玻璃的通透感也将室内的光线流转交互,与厨房门一起加深空间尺度,不受干扰各司其职的功能区之间依旧可以保留家居空间的紧密感。
Widening the study room door, the hanging rail type glass folding door makes the distance between the inside and outside closer. The flexible folding door can interact with the public area appropriately, and the transparency of the glass also allows the indoor light to flow and interact. Together with the kitchen door, it deepens the spatial scale, and the functional areas that perform their respective duties can still maintain the tightness of the home space without interference.
书房 / Study
书房 / Study
主卧 / Master Bedroom
有时无需大刀阔斧,一个巧妙的微调就可事半功倍。原卧室布局不合适、功能欠缺,调整卧室门后动线重置,调转床头朝向解决卫生间门正对床问题,床尾靠墙处也有了增设满柜解决收纳不足的问题。满柜之中包含有包包放置区、次净衣区以及梳妆台,轻松应对细腻的生活细节。延续公区色彩元素,床体与窗帘皆是复古绿,犹如朵朵梅花的树瘤肌理木皮的梳妆台背景饰面,以及带有波普风的小物件应用,让卧室静美柔和的同时,却不乏暗藏其中的小调皮。
Sometimes it’s not necessary to make drastic changes, a clever fine-tuning can achieve twice the result with half the effort. The original bedroom layout was inappropriate and lacked functionality. After adjusting the bedroom door, the flow line was reset, and the orientation of the bed head was turned to solve the problem of the bathroom door facing the bed. A full cabinet was also added at the end of the bed against the wall to solve the problem of insufficient storage. The full cabinet includes a bag storage area, a secondary dressing area, and a dressing table, making it easy to handle delicate details of daily life. Continuing the color elements of the public area, the bed and curtains are both retro green, with a tree like texture resembling plum blossoms and wooden veneer as the background decoration of the dressing table. The use of pop style small objects also adds a touch of playfulness to the bedroom while creating a peaceful and gentle atmosphere.
主卧 / Master Bedroom
主卧 / Master Bedroom
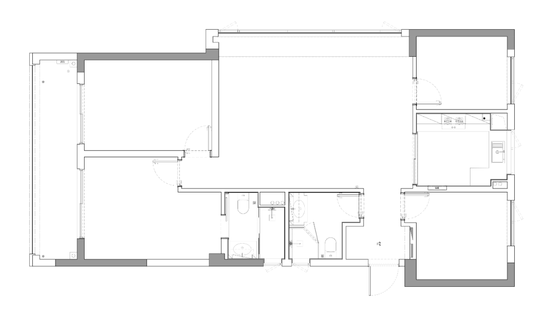
原始图
平面图
左右滑动查看更多
·精装改造前后对比·
设计机构 / 菲拉设计
Designer Department / FLY DESIGN
项目类型 / 全案设计
Project type / Full case design
施工单位 / 菲拉设计
Construction Unit / FLY DESIGN
项目地址 / 浙江杭州·沁桂轩
Project address / Zhe Jiang · Hang Zhou
户型 / 四室两厅
Door Model / Four rooms and Two halls
面积 / 137㎡
Square Meters / 137㎡
欢迎各位评论,分享,点推荐~~
不要忘记设为置顶哦
地址/杭州市上城区顺福商务中心3幢1703室
客服
消息
收藏
下载
最近





































