查看完整案例

收藏

下载
既喜欢全家一起其乐融融、热闹温馨,但偶尔也希望有自我独处
的空间
。共享与私密这道题,换做是你,你会怎么解呢?
设计师
@张浩
在有限空间内巧妙平衡家庭互动与个人独处需求,
通过流动的空间布局,巧妙地消融了功能的界限
从微水泥与木质栅格勾勒的静谧玄关,到将横梁化为艺术穹顶的曲面吊顶等等,
每一个细节都旨在调和“共聚”的欢愉与“独处”的静谧。
光影流转间,
这不仅仅是一次空间改造,更是一种“可群居可独善”生活哲学的生动呈现,一起看
看吧!
面积
170㎡
户型
两室
坐标
温州
设计
张浩
玄关处的微水泥一路延伸至室内,用素净的质感勾勒出空间的清晰轮廓。硬装设计删繁就简,褪去所有冗余装饰,只留存空间纯粹的自然气息。
木质栅格柜门带着细腻的纹理,轻轻唤醒家的温暖,当光影在空间中缓缓游走,一束中式插花静静安放,时光与器物在此低声诉说,宁静与舒适,也自然而然成为了生活的基调。
将先天的结构制约转化为空间叙事中的灵动诗行。原本略显突兀的两道横梁,经巧思解构后,化作穹顶之上优雅舒展的自然褶皱,赋予空间独特的韵律感。
曲面吊顶如天边柔缓垂落的云絮,不仅柔化了顶部线条,更与隐形风道形成巧妙呼应。无形的气流在此间遵循设计的默契,悄然流转,勾勒出风的轻盈轨迹。
全景落地窗将室外天光最大限度引入室内,让空间浸润在自然光线之中。搭配无主灯设计,进一步弱化视觉边界,凸显出客厅开阔通透的空间质感。
米白色沙发组合以柔和的色调与温润的质感,圆角设计的黑色木质茶几与小凳,在色彩与线条上形成巧妙平衡,丰富了视觉层次。临窗而立的木质长桌,则为阅读、工作等场景提供了实用支撑。
餐厅是家人情感交流的重要场域,基于居者的生活模式,将原本封闭的厨房改造为开放式餐厨一体空间,打破物理隔阂,让烹饪与用餐自然交融。
圆形吊顶成为厨房点睛之笔,中央凹陷聚拢光线,流畅曲线与平顶对比鲜明,为简约现代的空间注入优雅动感。黑色实木餐桌搭配金属框架餐椅与复古木质座椅,不同材质与时代的碰撞在此和谐相融。
踏入卫生间,素净的墙面如温润画布,光线透过格栅窗,在其上投下错落有致的光影,似在演绎一场静谧的光影艺术展。
木质小凳简约质朴,与整体淡雅的色调和谐相融。每一处细节,都在不经意间营造出宁静舒缓的氛围,让洗漱时光也成了与美相伴的惬意享受。
主卧套房内,顶天立地的衣柜系统将每一寸空间极致利用,在满足海量收纳需求的同时,保持着整洁利落的视觉美感。
一侧墙面采用通高木饰面,从地面延伸至天花板的木质肌理为空间注入自然温度;另一侧纯净的白色墙面与之形成戏剧性对比,强化了空间层次。
以日式茶室为灵感打造,巧妙利用两级地台抬升,营造出丰富的空间层次。当脚步踏上台阶,那拾阶而上的仪式感,悄然藏进生活的每一处细节。
大量采用木质元素,搭配素雅的色调,禅意十足。原木茶台保留自然纹理,一旁的卷轴画、茶具等陈设,更添几分雅致。
浅木色与暖白交织,氛围柔和又高级。开放式挂衣区利落实用,小圆灯如满月洒下暖光,搭配质朴木凳,每次整理衣物都像在享受一段悠闲时光。
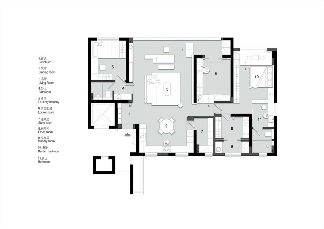
原始户型承重墙较多,限制了动线的多种可能性,将朝南的次卧室改造成多功能房,并与朝南阳台相连串通,形成洄游式动线布局。
温润木色延伸开来,光线柔和地漫入,营造出静谧氛围。角落绿植鲜活灵动,远处格栅设计添了几分雅致,每一步都像在邂逅生活的小美好。
张浩
客服
消息
收藏
下载
最近








































