查看完整案例

收藏

下载
充满电影感的复古风氛围,总能让人一眼沦陷,比如南京这个143 平的家。
房屋原本是精装修简装的状态,
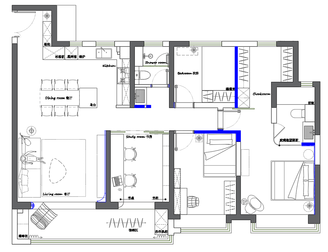
面对原有空间封闭、采光不佳且动线零散的格局,
@南京纵禾空间设计
围绕三口之家的生活需求对空间进行重塑,既营造出电影感满满的复古氛围,又确保空间通透宽敞,同时贴心预留猫咪活动区域,还因长辈就近居住常来聚餐,特意保留了客房功能。
设计巧妙打开原有厨房,形成融合中岛与长桌的开放式餐厨核心,
极大地促进了家人间的互动;针对原过道过长且窄暗的问题,则通过拆除书房非承重墙,代之以装饰性的弧形玻璃和移门隔断,既增强了空间通透感与采光,
干区也同步做成弧形造型与之呼应。
同时,主卫墙体被半透明弧形玻璃隔断取代,不仅柔化了空间棱角,还让主卧视觉上更显开阔,更营造出唯美的光影氛围。
考虑到客房使用率较低,巧妙借用其部分空间,适度扩大了衣帽间。
此外,为猫咪量身定制的趣味柜体、为家庭成员精心打造的个性空间,共同于复古优雅的基调中,编织出一个通透宽敞、充满互动与艺术气息的宜居之家
玄关位置做了鞋柜和端景台,台面用宝格丽的石材做装饰,鞋柜和厨房橱柜是一体延伸的,所以整体也是做的框架外露的形式,外框是胡桃木色的,内部是奶油白的,把手用的宜家的索尔比恩款式。
玄关的灯做了感应式的,进门就会缓缓开启,营造归家仪式感。
客厅以艺术涂料墙顶面搭配鱼骨拼木地板,加入几株绿植作为点缀,整个空间充满了浓郁的复古优雅气息。把原来的阳台移门拆除,提升使用面积与采光,在承重墙部分做了柔和的弧形线条,让空间自然过渡。
花瓣主沙发舒适度和颜值都在线,背后将漆艺屏风固定上墙,增加复古艺术氛围,一旁的中古帆船落地灯像是一件艺术品。
利用阳台凹进去的地方做了一个猫咪柜,柜子颜色选用和墙体接近的浅色,猫咪柜的设计也很有趣味,底部空间是猫窝和猫砂盆,从猫窝可以去收纳柜下部空间,穿过猫爬架可以爬到顶部的太空舱观望家里的动态。
打开厨房,使得整个客餐厨融为一体,让空间显得更大,互动性更好,餐厅选用的是1.8米的长桌和岛台拼接,形成洄游动线,利用高低差在岛台侧面预留轨道插座,方便吃火锅或者充电。
厨房以复古绿手工砖搭配胡桃木框架的奶油白橱柜,散发古朴感和艺术感,左侧高柜嵌入厨电,整洁又美观。
书房弧形的玻璃隔断非常具有装饰性,移门结合隔断的形式做成的半开放式空间,不用担心采光和能耗问题,黑色金属框架搭配透明玻璃,打破了常规矩形隔断的板正,增加了柔和和灵动的视觉效果。
隔断的旁边设置的是悬浮书桌,因为业主2人都需要长期在家办公,所以做加长台面,能容下2人同时使用。
从书房可以看到浴室的干区,南边的阳光可以从阳台直接洒进过道,书房顶面是没有满吊顶的,所以增加了线灯,书柜上面也预留了灯带,增加氛围感
干区把原来的墙体拆成半墙,并做了弧形处理。水池台面选用宝格丽的石材,抽屉用的骨格线的形式。
饼干造型的儿童床靠富有趣味,选择小边几替代传统床头柜,小巧又实用,墙面还有可以调节角度的小壁灯,儿童房门后设计了满墙的洞洞板,可以随意挂一些包和运动器械或者玩具等。
书桌和书柜是一体的设计,书桌的边角做圆弧处理避免碰撞。衣柜和书柜都是和公区一样做拼色设计,儿童房整体选用了豆沙绿和奶油白做撞色,把手则用可爱的糖果色圆球做点缀。
客房采用榻榻米的形式,比较节省空间,床头放置一个模块式的组合柜,可以做矮柜也可以做高柜,床尾进门处设置一块次新衣区。
主卧整体色调是大地色系的,以米色和棕色为主,墙顶面也是统一做的艺术漆涂料,床头做胡桃木骨骼线半高护墙,嵌入暖光灯带,营造出宁静温馨的睡眠氛围。
飘窗定制米色坐垫,闲暇的时候可以在窗边晒晒太阳,床头预留可以调整角度和位置的壁灯,方便睡前阅读。
衣帽间内部空间比较小,做了双排衣柜,柜门选择用和墙面涂料接近的奶白色,会显得空间更大一些。衣帽间设计中古洞洞移门,圆洞的地方用了水波纹玻璃,隐约透出衣帽间的灯光。
主卫采用黑色金属隔断,整体做弧形处理,规避了阳角的尖锐,磨砂玻璃既透光也保证了私密性,内部选用了奶白色的柔光砖和黑白水磨石撞色设计。
设计机构
南京纵禾空间设计
项目面积
143㎡
项目坐标
江苏·南京
一家专注私宅空间\商业空间定制化的设计公司
专注高品质的居住空间
设计范围涵盖私宅空间\小型商业空间全案式设计服务。
我们敢于想象,勇于创新,以追求创新为乐趣。
以产品落地为根基,以服务口碑为动力,热爱我们的热爱。
客服
消息
收藏
下载
最近


































