查看完整案例


收藏

下载
易高案例
项目名称:曲江大城 • 雍宸
项目风格:现代简约
项目面积:460㎡
主案设计:武登高
设计团队:叶阿强
本案460㎡,以“简”与“净”来回应。让光线、线条与质感成为主角。利落的直线勾勒出现代的轮廓,大面积的留白,是给予思想与呼吸的余地。原生木质的温润,与冷峻石材的肌理,在空间中对话,交织出宁静而高级的韵律。这里,每一处设计都暗藏功能之美,每一束光影都经过精心考量。它不止是一个家,更是一座可以安放身心的现代艺术馆。让归家,成为一场从喧嚣到宁静的仪式。
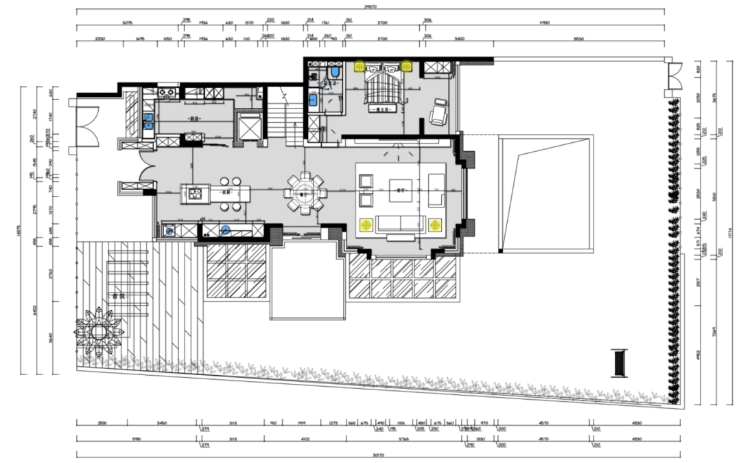
一层平面图
平面布局图
▲西厨
▲西厨 ▲西厨
▲西厨
▲餐厅
▲厨房
归家的第一幕,是开阔的西厨岛台。以流畅的动线迎接主人。空间以大面积的留白为主,极少装饰,让位于纯粹的质感与光影。精心设计的灯光在白色的体块与台面上流淌,营造出丰富而静谧的视觉层次。一侧,圆润的餐桌悄然安置,柔化了空间的线条,也为即将到来的温馨设下完美舞台。
▲客厅
▲客厅
客厅中,纯白沙发以自由的形态围合出家的向心力。多面开窗的设计,将自然光与庭院景致毫无保留地引入室内,构成一幅随时间流转的生动画卷。这里无需多余的装饰,光是影的画笔,景是空间的诗。窗外绿意盎然,室内清浅安宁,在开阔与包裹之间,寻得一份独属于家的安定与闲适。
▲卧室
▲卫生间
一楼主卧背景墙上的中式画卷,成为空间唯一的诗篇,空间摒弃繁复雕琢,在留白中对话古今营造出一处可安放身心的疗愈之境。
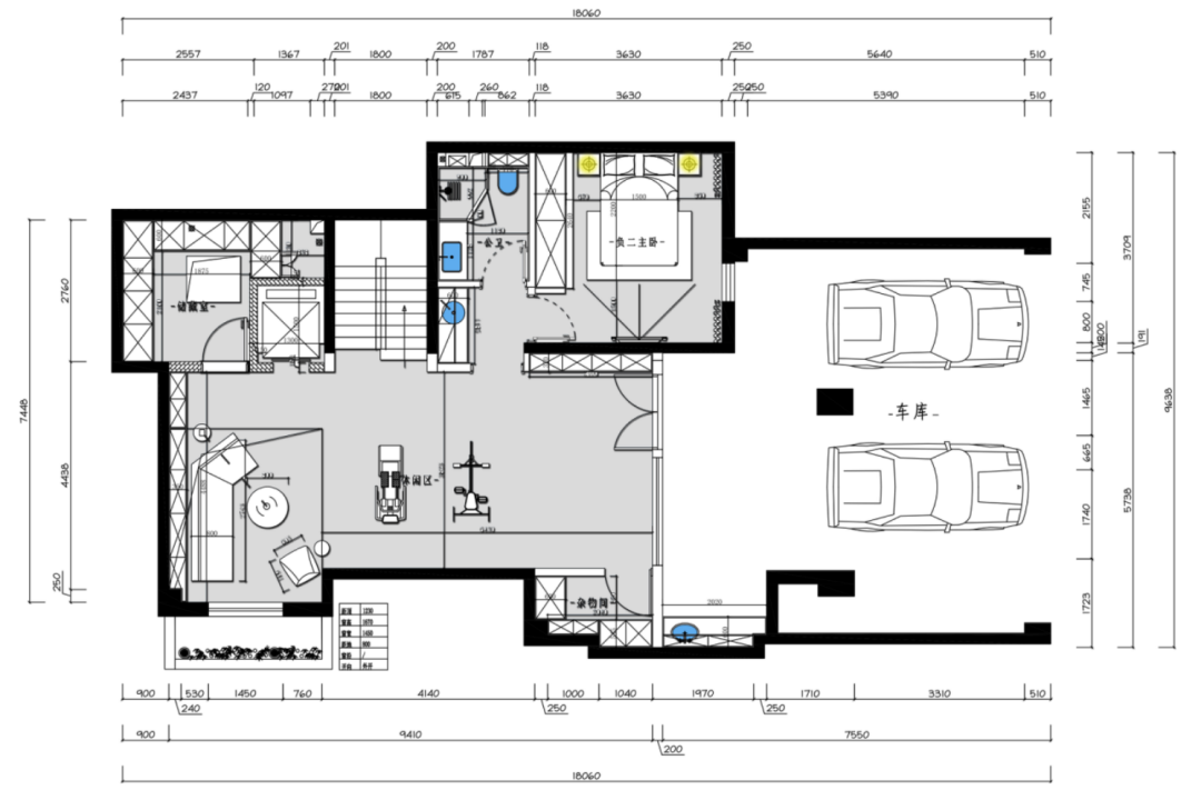
二层平面图
平面布局图
▲次卧
▲次卧
▲次卫
次卧以简驭繁,在纯粹中构建丰盈。步入式衣帽间承载日常优雅,彰显井然有序的生活哲学。整面落地窗是空间的灵魂,将光与景邀入室内,在日夜交替间,定格为一幅永恒流动的背景画。于此,功能与美学达成平衡,营造出一处兼具个性与舒适的专属天地。
▲主卧
▲主卧
▲衣帽间
▲主卫
二楼主卧简约依旧是空间的底色,木质的温润与暖光的点缀,为空间注入了宁静治愈的能量。空间功能完备且动线流畅。每一处灯光都经过精心考量,温暖的灯光点缀不仅提升了空间层次,更在木质的包裹中,营造出令人安心入睡的柔和场域。这里不仅是卧室,更是一处隔绝喧嚣、回归本我的心灵栖息所。
▲书房
▲卫生间
书房仅以一桌一椅一书架,构筑精神的自留地。在此,思想得以沉浸,灵感自由生发。
负一平面图
平面布局图
▲品茗区
▲品茗区
▲品茗区
▲娱乐区
茶室隐于地下,心归自然。以温润木质为引,围合出一处隐逸的场域。暖光如泉,洒落于茶台,绿植悄然点缀呼吸感。于此,茶香为媒,时光放缓,纷扰止步,独享与自我对话的静谧诗意。
▲卧室
▲卫生间
负二平面图 平面布局图
▲休闲区
▲休闲区
▲休闲区
▲卫生间
负二层,辟出一方专属的能量场。专业器械静待,在简约线条与冷静光线下,唤醒身体的潜能。每一次发力,都是与自我的对话;每一滴汗水,都刷新着生活的状态。这里隔绝喧嚣,只专注于向上的力量,让健身成为一种清醒的日常仪式。
关于设计师
武登高
中国室内注册设计师
注册号:ZB20803174
毕业院校:西安美术学院
设计理念:用艺术的眼光雕琢生活
设计风格:中式 简约 欧式极简
从业时间:19年
易高国际创始人、设计总监
2017年瑞典色彩学院 色彩专业结业
2004年--2010年北京元洲装饰首席设计师
2011年--2013年陕西九朝装饰首席设计师
2013年至2016年北京峰上大宅装饰专家设计师
2009美化家居设计大赛三等奖
2011获陕西省优秀设计称号
2012筑巢杯设计大赛优秀设计奖
2013住宅装饰行业优秀设计师
2014住宅装饰行业优秀设计师
2015第三届【锋尚·京瓷杯】新中式设计大赛最佳功能布局奖
2016第三届中国建筑装饰设计艺术作品展获铜奖
2017居然顶层精英设计师
2017年中国(陕西)设计杰出青年
2017第四届峰尚杯新中式设计大赛 最佳方案奖
2017首届禾记万佳杯设计设计大赛优秀奖
2017创意生活设计金蝴蝶奖
2017商业旅游地产年度优秀住宅公寓设计师
2017评选为亚太空间艺术大师
2018金楠奖设计大赛优秀奖
2018获得第二届西安建筑装饰设计“青年设计师领袖”称号
2018设计作品《中海百贤府》获得第二届西安建筑装饰设计别墅类银奖
2018设计作品《龙湖香醍》获得第二届西安建筑装饰设计样板间设计优秀奖
2019金堂奖全国百强先锋榜百强设计师
2019年度腾讯家居搜狐焦点家居杰出设计师
2019德国高仪住宅精英榜TOP108匠
2019蒂森克虏伯杯别墅设计大赛经典设计奖
2019第三届西安建筑装饰设计奖“年度青年设计师领袖”
2020中国设计新青年评选“城市举荐官”
2020设计作品《石中木》获得陕西地区优秀住宅软装设计
2021-2022中国新地产设计大会年度优秀别墅设计师
2021金住奖-中国百杰居住空间设计师
2022中国国际空间设计大赛十佳设计师
成功案例:中华世纪城紫薇臻品 白桦林居 中海华庭 中海国际 紫薇融侨 就掌灯 中海东郡 曲江公馆 曲江尚林苑 曲江兰亭 曲江华府 枫林意树 湖城大境 中海铂宫 中海百贤府 紫汀苑 紫楹台曲江和园 中海曲江大城 ......
客服
消息
收藏
下载
最近




































