查看完整案例

收藏

下载
-Project name | 项目地址- 湖州·光明御品
-Spatial properties | 空间属性- 排屋
-Area | 项目面积- 户型面积389㎡
深色木质墙板奠定了沉稳大气的基调,其天然的纹理增添了自然的韵味。大理石材质在电视背景墙底部和茶几上的运用,凭借其独特的纹理和冷硬的质感,与木质元素形成鲜明对比,刚柔并济。黑色皮质沙发线条流畅,质感上乘,与红色单人沙发椅形成鲜明对比,增添了空间的活力与时尚感。
The living room is dominated by light tones, such as white sofas, walls, and bookshelves, which make the entire space appear brighter and more spacious.
楼梯设计是空间的一大亮点,黑胡桃踏板与金属栏杆相结合,工业风十足,同时又不失精致感。楼梯下方的绿植点缀,为硬朗的空间注入了一丝生机与柔和。
The living room is dominated by light tones, such as white sofas, walls, and bookshelves, which make the entire space appear brighter and more spacious.
餐厨空间打破传统界限,形成一个开放且连贯的整体。厨房操作区域与餐厅用餐区域自然衔接,不仅使空间在视觉上显得更加开阔通透,还极大地优化了日常操作的动线。一体化的设计使得采光和照明能够更好地服务于整个空间。大面积的窗户引入充足的自然光线,使餐厨区域明亮而舒适。
The living room is dominated by light tones, such as white sofas, walls, and bookshelves, which make the entire space appear brighter and more spacious.
卧室的设计结合了现代与轻奢的融合,以中性色调为主,营造出温馨、宁静且不失高雅的氛围。各个功能区域既相互独立又彼此连通,给人一种开阔、舒适的居住体验。在这个空间里,不同材质的组合运用,不仅在触觉上给人多样化的体验,还在视觉上形成了丰富的质感对比。
The living room is dominated by light tones, such as white sofas, walls, and bookshelves, which make the entire space appear brighter and more spacious.
这套设计在每一处细节都流淌着对生活的深情眷恋与用心呵护。从色彩的温柔交织中,能深切感受到生活的美好。家具与软装的搭配,更是对生活温柔以待的体现。空间中的材质选择,也尽显对生活品质的追求。
The living room is dominated by light tones, such as white sofas, walls, and bookshelves, which make the entire space appear brighter and more spacious.
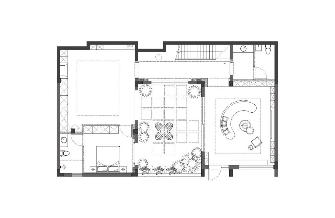
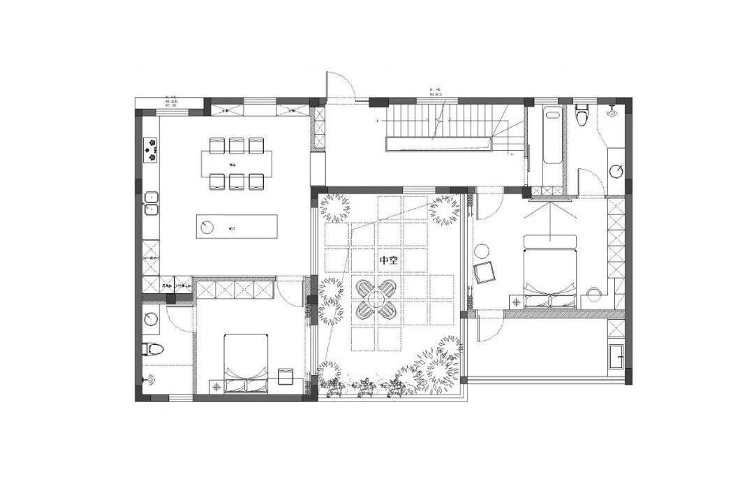
○ Animation 平面设计图 ○
【龙庭设计·新案】湖上居静奢风,以低调色调晕染空间情绪
【龙庭设计·新案】湖畔春晓极简自然,极简线条勾勒中古灵魂
【龙庭设计·新案】云筑意式轻奢,物质与精神达成微妙平衡
【龙庭设计·新案】水岸蓝庭法式自然,当法式的慵懒优雅遇见木质的温润呼吸
【龙庭设计·新案】春辰里296㎡现代轻奢,金属与大理石低语
【龙庭设计·新案】金茂悦现代意式,石材的冷冽和木质的温润
【龙庭设计·新案】龙湖景璘府白色极简,在纯粹轮廓里寻找生活的诗意
【龙庭设计·新案】凤樾府极简原木,极简不是空荡是给原木让出舞台
【龙庭设计·新案】湖州府现代中古,不张扬的棱角盛放木质温醇
【龙庭设计·新案】大华锦澜府现代风,在美学与实用间精准平衡
【龙庭设计·新案】大华锦澜府自然主义风,光与自然的家
【龙庭设计·新案】春辰里139㎡法式奶油,晨光漫过杏仁霜的暖调
【龙庭设计·新案】春辰里212㎡现代意式,墨色勾勒轮廓
【龙庭设计·新案】汀泽湾意式轻奢,光影流淌在大理石纹路里
【龙庭设计·新案】晴翠府中古风情,诠释温润的生活法则
【龙庭设计·新案】天悦府中古奶油,复古与温润共生
【龙庭设计·新案】晴翠府意式摩登,隐奢藏于几何结构中
【龙庭设计·新案】春辰里现代意式,现代语境下的优雅诗篇
【龙庭设计·新案】嘉境府现代原木,暖调抚平棱角治愈锋芒
【龙庭设计·新案】首创现代极简,以直线丈量世界
【龙庭设计·新案】天澜湾黑白法式,当香颂停驻于胶片边缘
【龙庭设计·新案】华萃庭院复古美式,褶皱里浮沉着世纪铜绿
【龙庭设计·新案】西湖观邸意式极简,原木沉淀意式呼吸
【龙庭设计·新案】金色地中海排屋改造,晨光漫入法式石膏线谱
【龙庭设计·新案】长东府重新诠释历史沉淀与当代美学的诉求
【龙庭设计·新案】金茂悦海派轻奢,鎏金是永不妥协的光芒
【龙庭设计·新案】龙湖景璘府,低饱和肌理勾勒理性弧线
【龙庭设计·新案】光明御品,当意式灵魂披上极简铠甲
【龙庭设计·新案】云启里 96㎡色彩刺穿极简的克制
【龙庭设计·新案】湖畔春晓 现代混搭,粗犷与温润再次和解
【龙庭设计·新案】太湖印480㎡,白与木的呼吸
【龙庭设计·新案】阅山府120㎡,中古风里藏匿包豪斯灵魂
【龙庭设计·新案】嘉境府104㎡,中古法式折叠美学
【龙庭设计·新案】玖熙湾364㎡不被定义的风格
【龙庭设计·新案】莲园190㎡现代意式美宅,演绎高级感
【龙庭设计】绿城御园———温茶淡墨
【龙庭设计】光明御品——玄圃积玉
客服
消息
收藏
下载
最近



































































