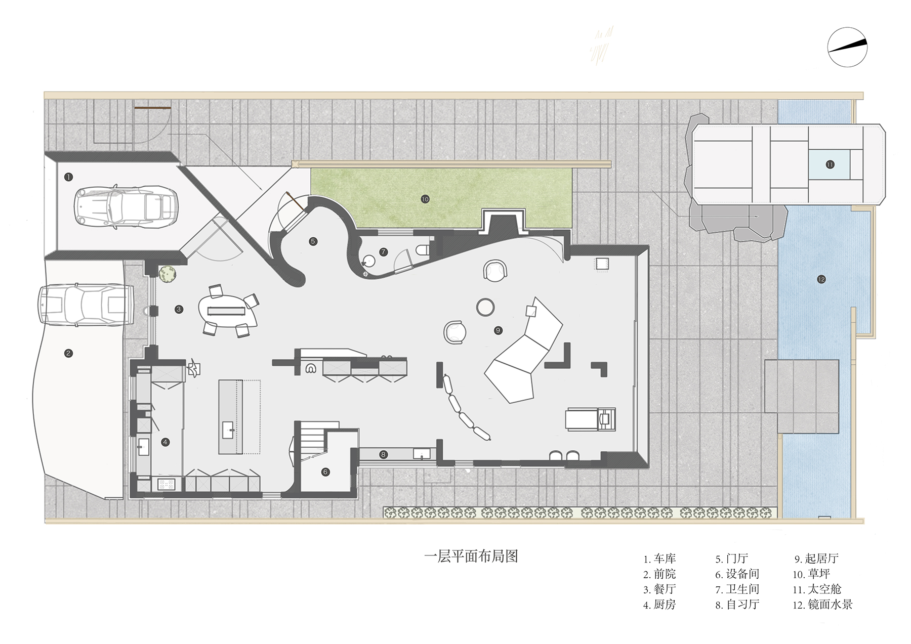
查看完整案例

收藏

下载
在当代更迭的居住图景下,家的意义早已超越了物质的简单叠加,逐渐扩充为一座能够安放时光的容器。它温柔地盛放人生的广度与厚度,也和谐地共存时光的痕迹与现代的脉搏。
面对这栋拥有十余年历史的南法风情老宅,集见设计设计总监李新喆与团队以“新旧转化与共生”为核心理念,通过建筑重构、材料创新与动线再造,在保留建筑记忆的同时,为其注入当代生活的灵魂。这不仅是一次空间的焕新,更是一场跨越时空的设计对谈。
01建筑几何·新生于结构的诗意
ARCHITECTURAL GEOMETRY
设计的起笔,始于对建筑本体的深刻理解与新旧共生的思考。业主择址于此,正是看中其不可复制的湖畔环境与稀缺景观,为一栋老宅赋予新生的理想,便从这片得天独厚的土地上萌发。
建筑外立面的惊艳弧度,成为新旧对话的第一现场。依据业主专业背景,以“轻薄的膜”为灵感打造的曲线型延展车棚,以流动的曲面打破建筑的固有语境,同时也跟前门车库的方正体态形成刚柔呼应。
内嵌式的自动旋转车库门,不仅维护并升华了建筑整体的穿插关系,其精密的开合机制与门下集成的阻风系统,更在无声中提升了使用的仪式感。
车库门板饰以细腻的哑光漆面,独特的纹理与整体包裹岩板的天然肌理相互映衬,于细节处展现丰富材质。车库的挺括线条与车棚的柔韧轻盈对比鲜明,在冲突中寻求平衡,也在差异中达成和谐。
缓步入院,各处细节中延续着新旧交融的智慧。院⻔取材于旧居院落原有的⽊质葡萄藤架,承载⼆⼗余年岁⽉痕迹的⽊料经打磨后嵌⼊⾦属⻔框,以旧材新⽤延续旧藤架的“⽣命”,⽤现代化的设计语⾔⽆声表达对过往的留念。门体的拼接方式融入了传统八卦的构图智慧,呈现以现代工艺对谈古老哲思的新旧交盏。
02庭院转译:自然画境的时光层叠
COURTYARD NARRATIVES
空间的叙事,随院门的过渡渐次舒展。团队以两个盒型体块的穿插咬合,为老宅构筑新的骨骼,当白色盒子轻盈嵌入主体建筑,富有张力的叠合关系不仅重塑了建筑的形态,更为庭院空间赋予了全新的叙事逻辑。
荷塘湖畔,这个被岩板包裹的方盒体块屹立水岸,成为新旧时光的有趣层叠。
面向庭院的墨瑟三联玻璃门可被完全开启,建筑的边界便在体块的错动间悄然消隐。客厅延展便是露台,高度恰好让人舒适就坐,尽情享受湖畔的阳光与清风。
平台之下的地面用黑色火山岩板铺就,经过精准裁切的地砖最大限度地减少了材料损耗,体现了可持续的设计匠心。天然的孔洞随岁月生长,质感温润,与墙面洞石的温润肌理相映成趣,默默呼应老建筑的记忆底蕴。
视线越过平台随湖面铺展,"悬浮的太空舱"嵌入建筑叠合之处,成为视觉与生活的焦点。精心打造的第三空间在有限的场地内实现了更多功能,完美融合了传统庭院与现代功能:祖父在此延续夜钓的雅趣,男主人与挚友娱乐共酌,孩童则在此找到属于自己的探索天地。太空舱之下,原石被巧妙堆叠成阶,静水叠水双重魔力转换,清悦气息弥漫,在动静之间书写着自然的层叠。在重新定义时光的庭院里,创新与传承和谐共存,处处诉说着时光的故事,且缓且长。
03动线韵律:空间流转的温情印记
LINE FLOW RHYTHM
空间的起承转合,始于动静分明的格局考量。设计团队以一条洄游动线串联起公共区域与私密空间,让传统建筑的隔阂转化为当代生活的美妙流动。
建筑原有的老式门体被特意保留,作为进入室内的第一道印记,厚重历史痕迹与极简现代几何在此静默对话,见证着时光的痕迹与延续。
VeryLux威罗微水泥塑造的浑然基底,从门厅向室内延伸。顶面的内凹线性灯带以光为引,斜向墙体与曲线窗栏以形导流,在虚实相生中完成室内外的自然过渡。
客厅中风口有序排布,全屋集成的HV空气系统守护着恒温、恒湿的静谧健康。设计团队在家具的选择中克制而留白,应和着南法风情的基调,以简白恬淡色系为主,偶然点缀一角亮眼妙色,空间也随之生动诸多。
餐厅区域延续着流动的节奏。Cherner彻纳休闲座椅兼具人体工学舒适度与艺术形态,优雅的扶手如舞者舒展的双臂,流畅自然的线条感与镂空靠背设计,巧妙打通后方的视觉和谐之美。Baxter吊灯与拱形窗构成三维空间的几何对应,三者的轮廓共同勾勒出空间的秩序与张力,也透着几分童话意境的神奇。
一层起居空间的洄游,行至玄关露出的天窗处,粉色软体岩石样式的Gufram换鞋凳点缀其间,与天光云影,达成自然交合的温情角落。
生活空间的动线环环相扣,车库斜墙上嵌入的一道竖向玻璃缝,通过光影的切入,为每一天预留了一束恰好的阳光;下沉的车库通过两步台阶与餐厅相连,偏轴开启的玻璃门营造出先抑后扬的空间节奏。厨房墙面三盏可随意增减的壁灯,见证家庭结构的生长,可滑动早餐岛台推开便是水池,晨光中为孩子准备早餐的日常被赋予动人的浪漫。
私密区域的动线设计展现着更深层的思考。主卧的中央淋浴空间独立而前卫,打破传统布局的局限,眼前一亮。淋浴屏与得⾼地板之间以一厘米厚钢板精准收口,不同材质的碰撞在动线转折处展现工艺的传承与创新。主卫挑空顶面嵌入下沉式浴缸,天光与气流的引入让空间更具呼吸感。Antoniolupi洁具的现代美学与微水泥墙面相得益彰,在动线的终点营造出静谧的沐浴体验。
儿童空间在动线末端注入活力。尖顶下的三角形窗帘盒以现代手法呼应传统形态,曲面饼干瓷砖的运用让老空间焕发新生。每个转角、每处收口,都在诉说着新旧共生的设计智慧。
重构让建筑新生,转译以空间层叠,而后体察熨帖的动线贯穿空间,如同一段缓缓流淌的时光长河。过去与现在老宅里相连、新生,湖畔层叠的场域流转,终能找到属于自己的那份时代印记。
04细节彩蛋:岩板与膜的科技心跳
SLAB & XPEL FILM DETAILS
德赛斯岩板:自然的永恒切片
以岩板包裹的建筑体块,既界定了庭院的当代形态,也成为框取天然的传统画框。德赛斯岩板以其自然材质的永恒质感,串联起过去与现在的对话,将湖畔的朝晖夕阴、四季流转,悉数收藏于此方由几何重构的容器之中。
△德赛斯岩板
XPEL建筑膜:隐形的环境调节师
建筑外立玻璃面的高性能玻璃膜,在保持视觉通透的同时,成为调节室内微气候的关键。经专业仪器实测,LS122红外功率计与LS123紫外功率计的数据显示,贴覆XPEL建筑膜的玻璃系统,可有效阻隔85%的红外线与99%的紫外线,在门窗的推拉瞬间,感受温度,更感受心跳。
材质协同:科技与自然的共鸣
德赛斯岩板的坚实质感遇见XPEL建筑膜的轻盈守护,得高地板及墨瑟门窗在其中穿插共和,建筑与设计就在刚柔之间找到了完美平衡。
岩板定义空间骨架,建筑膜则编织着无形的保护网络,湖畔家居的完整生态由此构建,时光漫语,再获新生。
项目名称|湖畔叠境
项目地点|天津市·卡梅尔天澔园53
项目类型|私宅空间
项目面积|400㎡
设计单位|集见设计
主案设计|李新喆
软装设计|贺宁
内容策划|清歌传媒
项⽬摄影|谭啸
产品品牌|Techsize德赛斯岩板、VeryLux威罗、得⾼地板、墨瑟⻔窗、HV、Xpel Vision、Cherner、Baxter、Gufram、Poliform、RocheBobois、Antoniolupi、Boffi、Edra
李新喆 集见设计 Diverse Space
由李新喆于2014年在天津创办至今,始终致力于人性化、个性化、差异化的设计服务,秉承着「集匠心,见美好」的运营理念,长期研究多元文化在当代设计中的融合应用,用设计精准表达人文关怀,打造有温度、有灵魂、有礼节的空间,为各类生活与商业空间提供定制设计美学服务。
客服
消息
收藏
下载
最近









































