查看完整案例

收藏

下载

翻译
Architects:Stanaćev Granados
Area:256m²
Year:2020
Category:Houses
Furniture And Interior Design:Stanaćev Granados
Lighting:Stanaćev Granados
Landscape:Vanessa Barrois (Landscaperschile) + Joaquín Lobato
Structure:Alberto Ramírez
Construction:Claudio Lagos, Florent Dromard
City:Chorrillos
Country:Chile
Text description provided by the architects. Primeriza House is located on a small clearing of an otherwise heavily sloped terrain with stunning views of the Pacific Ocean to the front and a strong backdrop of almost vertical slope densely populated by cypress trees. Our clients wanted to make the most of outdoor living, and one of their key requirements was to create many opportunities to inhabit the exterior. Another was to create various different environments, nooks and crannies, and moods inside the house. These two, combined with the plot and weather conditions, shaped the volume of the house and its many transitional spaces.
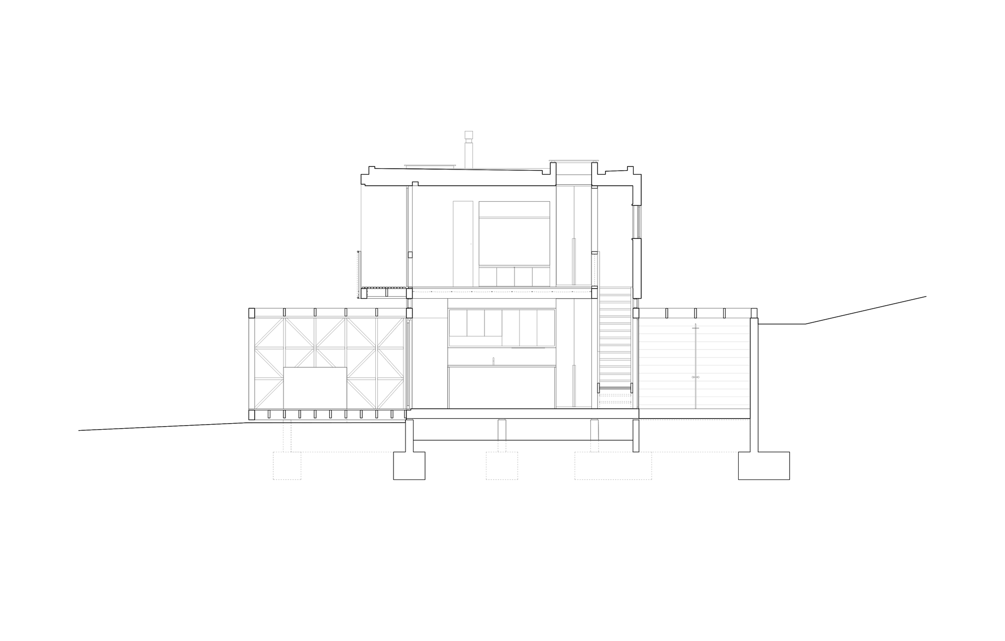
The house conquers the slope and inserts firmly into the terrain by means of a solid concrete base that houses a semi-buried garage and a large storage area, only to later morph into retaining walls that support the upper floors. This opaque base allows for the terrain to flank the house and continue its natural slope around it. Spread upon this slope and nested between the exposed concrete wall and the landscaped hill, camouflaged into the vegetation, is the house’s pedestrian entrance.
Once surfacing completely to the ground level, one encounters the first of the house’s intermediary spaces: an oversized staircase landing of sorts, leading into the windbreak porch and mudroom. This transparent prism, in turn, filters the view towards a small patio in what can be thought of as a kaleidoscopic sequencing of interior and exterior spaces.
In contrast to its solid and opaque base, the main living area, structured in wood and clad in floor-to-ceiling windows, opens up to visually encompass the main terrace to the north, the sunken landscaped patio to the west, and the entrance patio acting as a light well to the south. It turns solid only to contain the storage and the serving spaces condensed around its perimeter. Dark and moody, the living and dining room with a bespoke fireplace at their focal point extend vertically into the double height to connect to the open TV room and the circulations leading to the bedrooms, where the mood changes due to the pristine white of the finishing. Thanks to this visual and auditory unity, family life can function uninterruptedly between the two floors, even during the earliest years of its younger members.
Wood is applied as the only interior material, but its treatment differs between the two floors: a dark semi-transparent tint is used for the first floor, and a solid semi-gloss white stain throughout the second floor. While the first floor absorbs the light that washes its surfaces from all orientations, the second floor reflects the exterior colors – it turns absolute white on misty days, and when the weather is clear, it takes on the bluish tones of the sky and the horizon in the morning hours, and stains orange at sunset. Lacing the floors apart is the safety net: suspended in midair, this wobbly surface invites the children’s play and family moments, while at the same time conveniently allowing us to bypass the railings altogether.
Working with the topography of the site allowed the house to connect organically to the terrain. A large terrace works as an exterior duplicate of the main living spaces and spills easefully into the landscape, which in turn becomes its natural extension. Similarly, the playroom located on the second floor overflows towards a small plane that acts as its exterior extension and connects through landscaping interventions with the pool lounge and the main terrace. Interspersed thus, the house’s interior and exterior circulations make a full circle.
Thanks to the orientation of the entire volume, the house itself acts as a shield for the southern winds whipping its posterior façade, while the entire front of the house remains unaffected by them. The sole exterior space open to the currents is sunken between the garage’s green roof and the living room and acts as an intimate sun terrace. The Primeriza House (primerizo, Spanish: first-born) was our first independent project, and while the design phase was completed during the 2018 while we resided in Chile, the construction was delayed considerably. By the time the ground works started, we’d already moved away to Spain. That same week the first lockdown was announced in our region, and the construction process was entirely supervised by means of daily emails, text messages and video calls. We only got to visit the house over a year after it was completed.
Project gallery
客服
消息
收藏
下载
最近










































