查看完整案例

收藏

下载

翻译
Architects:Samir Alaoui Architectes
Area:1634m²
Year:2025
Photographs:Rasmus Norlander
Manufacturers:Ego Kiefer AG,PORTES BRODARD,VMZINC,WALO Bertschinger
Category:Mixed Use Architecture,Industrial Architecture,Penthouse
Lead Team:Samir Alaoui
Technical Team:Basile Immer, Nicolas Sternheim
Design Team:Samir Alaoui Architectes
Engineering & Consulting > Civil:Synaxis
City:Bourg-en-Lavaux
Country:Switzerland
Text description provided by the architects. The project layers industrial premises on the first two levels and two penthouse apartments above.
The structure of the first two floors is designed to offer maximum flexibility for the adaptation and combination of spaces according to the occupants' needs.
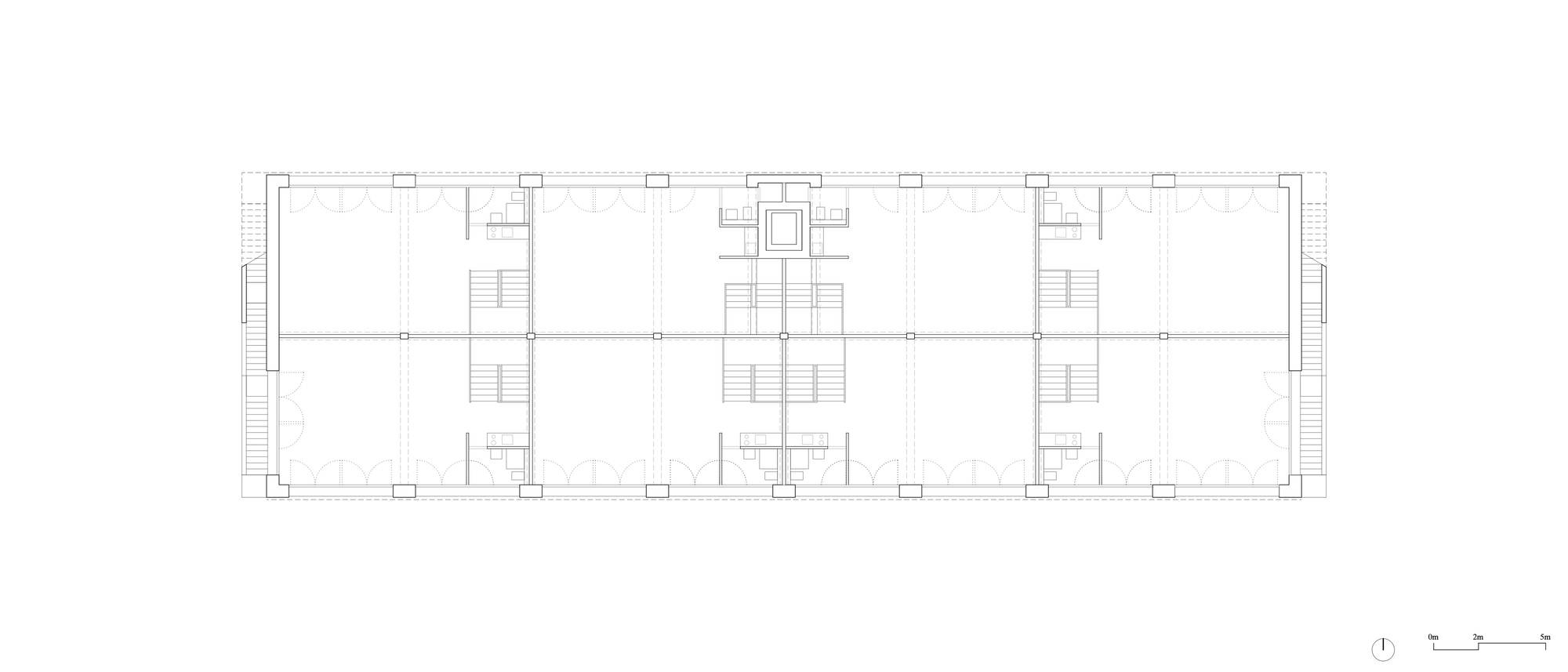
To preserve the continuity of these two levels, the building does not have a stairwell for access to the apartments. Instead, a shared elevator, accessible directly from the outside, serves the apartments, which also have private external staircases located at the ends of the building.
The apartments are organized around a central core that houses the shared bathroom and kitchen units.
Circulation can occur either on the north side, through a hallway connecting the entire apartment, or on the south side through the common living areas, with the kitchen serving as a pivot between the dining room and the living room.
Project gallery
客服
消息
收藏
下载
最近



























