查看完整案例

收藏

下载
这座住宅代表了现代生活的极致。项目最初为Kohutka山地度假区的业主设计,灵感源自传统的Wallachian建筑风格。居住在这里的人可以享受到Javorniky山脉的壮丽景色。
It is contemporary modern living at its finest; originally designed for the owner of the mountain complex of Kohutka, it is inspired by traditional Wallachian architecture. Spectacular views of the Javorniky mountain range.
▼项目概览,General view © BoysPlayNice
这座木结构住宅带有鞍形屋顶,建造在一个倾斜的地形上,完美地融入周围的自然景观。设计中运用了传统建筑元素,如小型窗户、突出的屋顶悬挑和坡度,同时避免了阁楼窗和天窗的使用。建筑的东侧呈现出典型的瓦拉几亚木屋外观,而西侧则配有大面积的玻璃窗,开阔视野,能看到多条山谷的景色。
Log construction with a saddle roof located on a sloping terrain blends into the surrounding landscape. The design employs traditional architectural elements such as small casement windows, a pronounced roof overhang and pitch, while avoiding dormers and skylights. The eastern side carries the traditional appearance of a Wallachian log cabin, complemented on the western side with large-format glazing that opens views through several valleys.
▼传统建筑元素,Traditional architectural elements © BoysPlayNice
▼鞍形屋顶,The saddle roof © BoysPlayNice
建筑位于地块的东南部,到访者从东侧进入。建筑的入口处设计能有效挡遮风雨。进入后直接进入起居空间。客厅通向西侧的露台,布局为开放式设计并配有全景窗户。建筑的底层设有办公室、浴室和卫生间。
The construction is situated in the southeast part of the lot. The house is accessed from the east, and the entrance is protected from wind and rain. The entryway leads directly to the living space. The living room has an open floor plan, supported with panoramic windows and an entry leading to the western terrace. The ground floor has an office, a bathroom, and a toilet.
▼可遮蔽风雨的屋檐,Eaves that can shelter from wind and rain © BoysPlayNice
▼起居空间,The living room © BoysPlayNice
▼开放式设计,The open floor plan © BoysPlayNice
▼餐厨区,Kitchen and dining area © BoysPlayNice
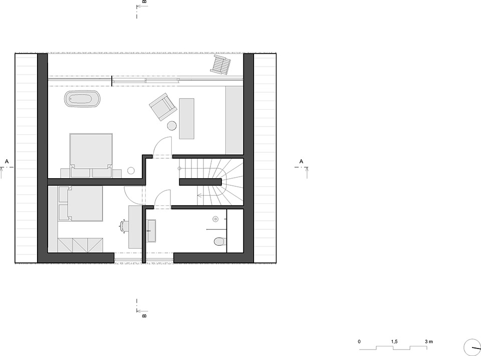
住宅的静区设在阁楼层。这里包括一个带步入式衣橱的卧室和一个阳台,阳台拥有美丽的景观,并由一个山墙窗引入自然光。阁楼内还包含一个额外的房间和浴室。地下室则通过入口直达,包含了健身区、桑拿房、技术房和储藏室。由于倾斜的地形,位于露台下方的健身区巧妙采用了自然采光。
The quiet zone of the house is located in the attic. This section offers a bedroom with a walk-in closet and a balcony—boasting beautiful views—illuminated also by a gable window. The attic also includes a second room and a bathroom. The basement is accessed from the entryway. This area includes wellness, sauna, technical and storage rooms. Because of the sloping terrain, the wellness area is naturally illuminated under the terrace.
▼卧室,Bedroom © BoysPlayNice
建筑的结构采用了预制夹心面板木材,均在在山谷中制造并在现场一天内完成组装。项目符合低能耗标准,能够高效利用被动太阳能,并通过与地暖系统连接的热泵进行供暖。即便在冬季的低温条件下,阳光也能温暖室内。而在夏季,突出的屋顶悬挑可防止过热,且无需使用空调。现代技术与自然原理的结合确保了全年舒适的室内气候。建筑基础则采用了钢筋混凝土板,地下室完全采用了永久性模板施工,顶部为单一的整体吊顶结构。地上部分则完全由木材构成。
The entire house is designed as a timber structure made from prefabricated sandwich panels, which were manufactured in the valley and assembled on-site in a single day. The building meets low-energy standards. It efficiently harnesses passive solar energy and is heated exclusively via a heat pump connected to underfloor heating. In winter, sunlight warms the interior even at low temperatures; while in summer, the pronounced roof overhang prevents overheating, eliminating the need for air conditioning. The combination of modern technologies and natural principles ensures a comfortable indoor climate throughout the year. The building is founded on a reinforced concrete slab. The basement is entirely constructed using permanent formwork, with a monolithic ceiling above. The above-ground portion consists entirely of timber construction.
▼楼梯空间,Staircase © BoysPlayNice
▼盥洗室,Washroom © BoysPlayNice
这座住宅的建筑风格结合了自然传统与现代技术和材料,考虑到场地、气候与功能要求的合理性,创造了一种完美融合当地环境的现代住居。
The architecture of the house combines natural tradition with modern technologies and materials, responding thoughtfully to the site, climate, and functional requirements. It creates contemporary living blended perfectly with the local environment.
▼建筑夜景,Night view of the building © BoysPlayNice
▼立面夜景,Night view of the facade © BoysPlayNice
▼总平面图,Site plan © SENAA architekti
▼平面图,Plan © SENAA architekti
▼平面布局,Planar layout © SENAA architekti
▼剖面图,Section © SENAA architekti
Studio: SENAA architekti
Author: Václav Navrátil, Jan Sedláček
navratil@senaa.cz
Social media:
Studio address: Jakubské náměstí 7, 602 00 Brno, Czech Republic
Design team: Jan Cihlář, Markéta Raková
Project location: Nový Hrozenkov 241, 756 04 Nový Hrozenkov
Project country: Czech Republic
Project year: 2022
Completion year: 2025
Built-up area: 68 m²
Gross floor area: 170 m²
Usable floor area: 160 m²
Plot size: 12000 m²
Client: Jana and Josef Kocurek
info@kohutka.cz
Photographer: BoysPlayNice, ,
Collaborators and suppliers: Wooden panels: Tomáš Krystyník
Wooden cladding: Martin Kocurek
Interior, furniture, sauna: Robert Valíček
客服
消息
收藏
下载
最近






























