查看完整案例

收藏

下载
“木棉花开郎出城,木棉花落郎进城;出城进城信勿准,只听纱厂里个气管三两声……”
——《拱宸桥踏歌》
京杭大运河,承载着千百年来杭州人对于美好生活的向往。如果说大运河上的拱宸桥看惯了杭州这座城市的变迁,那么拱宸桥边的土地也盛满了整个城市的回忆。
2016年,拱宸桥西这片老杭州经典高端居住圈,将结束宅地供应历史。作为桥西最后一块宅地,“风华系”全新升级钜作——金地·大运河府,承载了杭州人对运河的终极想像。
金地·大运河府临时售楼处,位于拱宸桥运河畔,深植桥西文化,易和极尚设计师在尽量满足销售功能的同时,更注重东方文化底蕴的自然呈现。在有限的空间内,为满足临时售楼处灵活多变的需求,进可为房产项目的临时接待点,退可为样板间展示区的客户休憩茶吧,设计师精益求精,匠心独具。
在本项目的构思过程中,以现代东方立意,在现代几何造型中通过对比、衬托、借景以及尺度变换、层次配合与小中见大等传统中式技艺和手法,展现绝代风华的空间魅力。其实,对于一个设计师而言,营造一个三维立体的空间并不难,难的是在空间内注入“生活”,令空间散发“人情味”’。
踏足临时售楼处,有一种置身于庭院的视觉想象。在可塑的空间内,为了摆脱原本单一的空间型体,设计师将墙体切割,墙体和天花做了延续,巧妙地丰富了空间的层次感。在结构上,落地玻璃窗让人们在室内充分的感受到自然光,亲和而开放,简洁而现代。
整个空间灰色调中注入黄色,以及黑白色彩的强烈对比,充满视觉冲击力。象征东方文化厚重而悠远的深色科技木饰面,以及特别定制的30毫米玻璃条板和喷绘印刷纱布的完美结合,成为空间当之无愧的焦点。
中式复古家具饱含怀旧风,又与禅意浓厚的饰品相得益彰。水墨留白,意境深远,将一切繁华尽收,却将质朴与本质还原。更时尚的东方韵味,在设计师的倾力打造下展现得惟妙惟肖。
宋代·秦观《蝶恋花》:“蛱蝶飞来花上戏。对对飞来,对对还飞去。”蝶恋花皮雕与128把铸铁茶壶以阵列方式陈列示人,令中国风得以具象体现的同时,也让‘偷得浮生半日闲’的惬意弥漫至整个空间。“取法自然而又超越自然”的深邃意境,是历代中国人关于居住的最高理想。
东方传统的灵性,跨越时空,交融成一个精致的空间,散发出独特的美感。笑看风轻云淡,闲听花静鸟喧,设计如此,生活亦如此。
项目信息
项目名称:金地大运河府临时售楼处
项目地点:中国 杭州
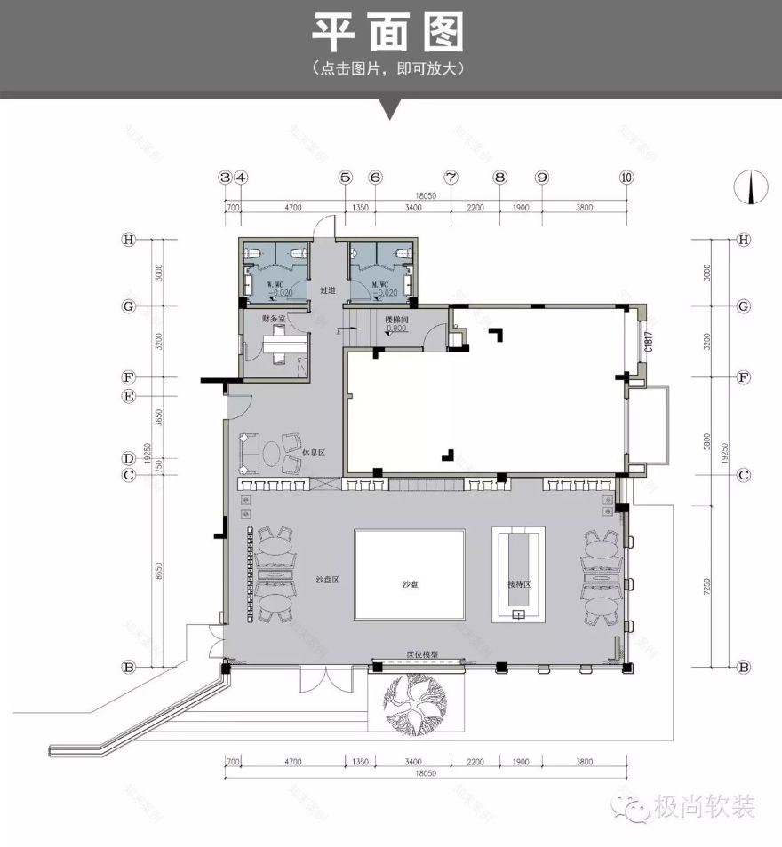
项目面积:245㎡
主要材料:科技木饰面、钢化玻璃、纱画、奥巴马大理石、硬包、银镜、夹绢玻璃等
业主单位:金地集团
室内设计:杭州易和室内设计有限公司
软装设计:杭州极尚装饰设计工程有限公司
室内设计主案及执行:李扬、林兴娟
软装设计主案及执行:祝竞如、叶子丰
设计指导:马辉、韩舒
客服
消息
收藏
下载
最近













