查看完整案例

收藏

下载
项目信息
Project Information
━
作品名称|
物象几何
Project Name | Physical Geometry
项目业主|
新艺美固整木展厅
Project Owner | Xinyi Meigu Customized Furniture Exhibition Hall
设计机构|
JST建筑研究室
Designer Firm | JST Architecture
主创设计
|
解苏霆
Chief Designer | Xie Suting
设计团队
|
陈圣钟、金娇、黄琼
Designer Team | Chen Shengzhong, Jin Jiao,Huang Qiong
灯光顾问
|
许锋兵
Lighting Consultant | Xu Fengbing
项目视频|
夏至
Project Video | Xia Zhi
项目摄影
|
贺川
Photograph | He Chuan
项目地点
|
中国福州
Project Location | Fuzhou,China
项目面积
|
530㎡
Project Area | 530㎡
完成日期 |
2020.05
Completion Date | May 2020
整个空间呈现出纯粹的极简美学,色调以灰色为主。
灰色的诠释是最大的承载,并融入抽象化的艺
术氛围,成为一种深刻而细腻的感知。
含蓄是传统文化中独特的审美取向,集神秘和婉约于一体,这种携带浓郁东方色彩的表达手法不仅广泛地应用于文字语言,也频繁地出现在设计领域。
本案是一个坐落于福州的整木展厅,设计师在入口处打造了一个悬空的白色盒子,路过人潮无法窥视内部景象。灯光方向增强了几何的抽象化,感官和视线被吸引带动,使得空间变得很炫,营造出整体纯净而统一的场景感和展示氛围。
比起平铺直叙的手法,含而不露的设计语言,更有一种回味无穷的体验感和挥之不去的感染力,十分耐人寻味。在上面行走,你能感受到设计带来的满满仪式感。
墙体保留了清水混凝土的粗犷氛围,搭配深灰色装置球、凝练的黑色字体以及素净虚无的挂画,营造出空旷的,属于整木展厅的独特气度的氛围。室内墙面的几何形状,微妙的灯光层次加深了空间的动态感
从入口到内部展厅,设计师预留了一条狭窄洁净的长廊,独有的静默和空白赋予这片虚无的空间以某种意味,使人对未知的一切充满好奇和期待。线条灯的运用使整个空间 更具延伸效果。色温与整个墙面色调呼应,整体高级有质感。
墙体与天花板之间存在一定的距离,内外空气自由流通,整个空间俨然成了一个“会呼吸的盒子”,消弭混泥土带来的压迫感。黑色明装吸顶灯的点状运用整个空间细节精致,点线面关系更加突出。
有别于外部的冷寂,内部模拟场景用仿古色调作为补充,加上生机盎然的植物修饰,有重生之感,使人参观时感觉莫名的安静且自然。
展馆中部沿用了传统建筑中的天井概念,发光软膜投射出来的斑驳光影使得展品更为精致,空间也变得柔和、通透、层次分明。
清晰有力的几何外形,毛糙沉重的质感,以及诚实显示材料原始美感的努力奠定了粗野主义的美学基础。
多光源需要根据参展品不同性质来设计,要照顾到展示空间中不同光源彼此之间的相互关系。
尤其是展览展会上灯光的存在不是孤立的,通过不同光源之间的相互作用使得空间能够根据参展品的不同需求而营造出不同的视觉效果。
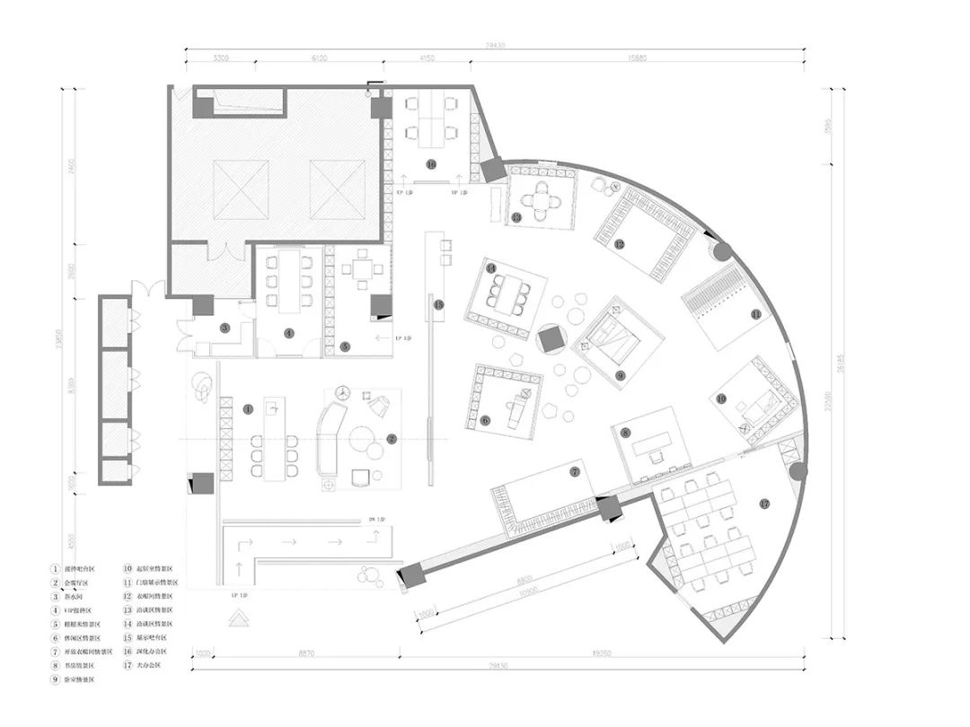
项目原始形态拐角多、不规整,是设计过程中的一大难点。在反复考量和推敲之后,设计师通过切割、重组,将空间划分为矩形和扇形两大模块,物尽所用,棘手的问题也迎刃而解。在展厅设计中灯光与展品是密不可分的,灯光的设计是为了达到某种目的来烘托展品,不同的展品搭配不同的灯光,二者缺一不可,在展厅设计中灯光的设计有着重要的作用。
右侧空间十分有意思。九个样品展示区延续入口的处理技法,与天花板保持固定距离,如一个个定制的盒子依势而落,灵动地排列在扇形区域内,它们或敞开、或半封闭,存在独立又互动的空间关系。
灯光能够起到指引的作用,能够看到展品的优势所在
,
同时,展示空间的灯光在突出展品主要优势的同时,又要提供一个优雅的展示空间,不能为了单方面体现展示效果,弄得灯光太亮,观众参观的时候就太刺眼。展品的不同,展示空间的灯光设计肯定不同。
圆柱里包裹着一堵承重墙,设计师用温柔的方式处理,使它与周遭的“盒子”和谐共生,在有限的空间内展现方圆之美。
旁边散落着几张舒适的椅子,与墙上的挂画相互映衬,营造了随性、惬意的艺术氛围,恍惚之间让人产生游览美术展厅的错觉,感受不到丝毫商业气氛。
总而言之,搭建需要灯光的辅助和配合,好的展览设计搭建就是利用光的一切特性,去创造所需要的光环境,来表现产品特性和品牌特色。
—
—
T
H
E
E
N
D
—
—
本文由JST建筑研究室设计案例改编,
仅
供
学
习
交
流
分
享
。
欢
迎
分
享
朋
友
圈
丨
转
载
请
联
系
授
权
T
h
e
m
o
r
e
w
e
s
h
a
r
e
,
T
h
e
m
o
r
e
w
e
h
a
v
e
.
客服
消息
收藏
下载
最近




























