查看完整案例

收藏

下载
桃源小镇,静卧于城市横轴天目山西路,
【四庭墅】是它主打的经典法式叠排,周边汇聚西溪湿地、两大国家级森林公园等鼎级生活配套,内有小镇商业中心“缤纷里”、四季五耕醇熟配套、数十个兴趣社团等完善的全龄化配套服务,是集“衣食住行游购娱学”于一体的理想小镇。
门外雪深三尺,庭前花好四时
。
中国人对庭院的情节是由来已久,桃源小镇四庭墅便以有天有地的庭院设计,将这份院落情怀表现的淋漓尽致。
在这个离城市不远,离生活很近的院落中,安放着一家又一家人的喜怒哀乐,东易日盛22年为爱筑家,致力于用专业筑造品质,让家的每一刻舒适洋溢。
▲
桃源小镇四庭墅核心
服务团队
今天便为大家带来东易日盛针对桃源小镇四庭墅热门户型的独家解析,看东易设计师如何用设计,开启诗与远方的全新篇章。
户型解析
桃源小镇 · 四庭墅
D1户型145上叠
一层平面方案图>>
二层平面方案图>>
三层平面方案图>>
意向效果图>>
贯穿的浅蓝色将清雅的韵致散逸在空间的各个角落,点缀的金属配置增强了尊贵感,用靓丽的视觉观感与舒适的居住体验打造出一个寄托身心的精神归属地。
桃源小镇 · 四庭墅
D1户型145下叠
地下室平面方案图>>
一层平面方案图>>
二层平面方案图>>
意向效果图>>
灰白的主色调奠定了静谧的基调,护墙的奢华气质贯穿整个公共区域,含蓄的线条很好的延伸出别致的空间语言,并给予空间无限张力......
桃源小镇 · 四庭墅
D2户型125㎡上叠
一层平面方案图>>
二层平面方案图>>
阁楼平面方案图>>
意向效果图>>
浪漫的情调是本案的主题,蓝白的色调搭配经典又清新,简欧风的软装搭配在视觉中导入尊贵优雅的鲜活灵魂,与细腻的材质一同营造了一个充满人文艺术而又具有自在轻松感的居住空间。
桃源小镇 · 四庭墅
D2户型125㎡下叠
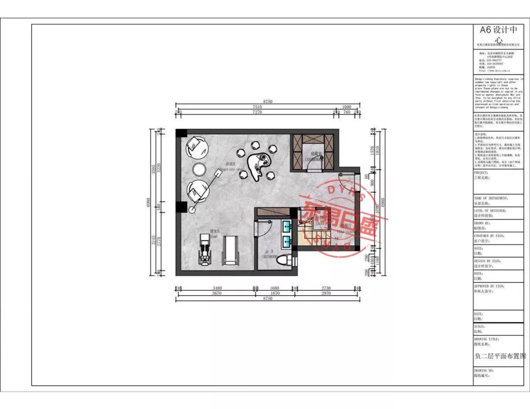
地下二层平面方案图>>
地下一层平面方案图>>
二层平面方案图>>
二层平面方案图>>
意向效果图>>
本案在现代感十足的黑白灰中注入温润的木质元素,中和了空间原有的气质,独立的用餐空间与厨房拥顺畅的通风与良好的参观,让好味道也可以伴随着好视野与好心情。
卧室的设计以舒适为主要诉求点,明亮的落地窗让室内外风景融汇于一处,独一无二的灯具配套则在细节处为不同空间注入不同的灵魂。
或拨打免费咨询热线:400-0060-251 即可在线预约设计方案哦~
▽
想要更好的了解全案设计
当然是近距离全方位的感受最实际
这一次,机会来啦!!!
海宁会场
活动时间:9月14日全天
活动地址:海宁市金汇大厦B座1801室
桐乡会场
活动时间:9月14日 13:00-18:00
活动地址:桐乡市
馨悦咖啡
萧山会场
活动时间:9月14日13:00-18:00
活动地址:萧山蓝爵国际大厦14楼大讲堂
杭州会场
活动时间:9月15日 13:00-18:00
活动地址:杭州黄龙饭店一楼紫荆厅
柯桥会场
活动时间:9月15日13:00-18:00
活动地址:绍兴咸亨大酒店紫光阁
客服
消息
收藏
下载
最近








































