查看完整案例

收藏

下载
国际城市设计产业中心,位于成都市武侯区一环路高升桥片区,临近三国文化核心地标——武侯祠、锦里,占据三国创意设计产业功能区核心区域。项目将以数字创意产业为核心,正加速打造极具区域代表性的“元宇宙产业新高地”与“数字化生活新场景”。
项目占地面积约20680㎡,建筑面积约4.5万㎡,包括产业办公空间约3.1万㎡,商业空间约1万㎡,并同步建设成都首个国家文化出口基地展厅、武侯区城市数字展厅、一站式产业服务中心、共享会议室、空中花园等特色配套空间约0.4万㎡,系武侯区打造的城市有机更新重点项目,现已列入成都市城市有机更新名录。
作为城市更新项目,原场地存在城市界面更新、交通流线梳理、公共空间释放、场地功能提升、新旧地块衔接等问题,设计方面临很大的挑战。
从功能入手,从文化找笔,通过对于空间结构和场地文脉的梳理,本着“文化、共融、智慧、科创”的设计理念,以“更新城市记忆,设计美好未来”为主题,利用艺术、人文、科技、装置等元素,构建“产业+人居+商娱+生态”共生共融的城市智慧生活新场景。
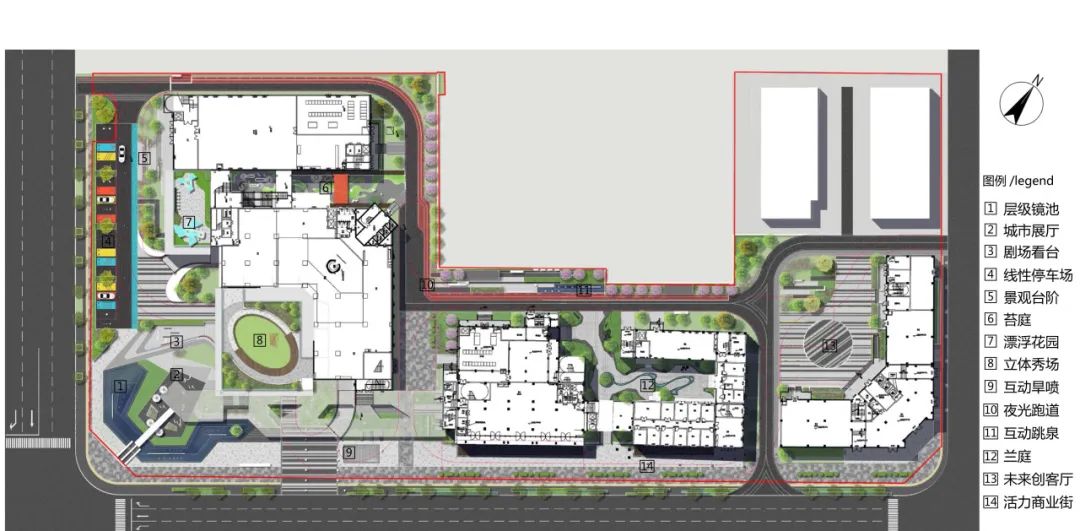
功能结构划分为“一廊一巷两庭两厅两花园”。延续建筑时尚科技风格,打造城市客厅。设计价值来源于美学艺术、科技创新、功能重组、文化传承,在新的产业和定位中,用设计讲好新故事,焕发城市新活力。
裸眼3D大屏,智慧夜景,互动科技景观成为成为文化输出的载体。城市文化具象化的精神堡垒,标志场地新生。流光溢彩的云影廊桥点亮武侯之夜,打造城市夜景新地标。喷泉装置兼顾艺术与人的参与性,打造科技互动景观,注入灵气与活力。城市客厅成为文化输出与智能科技的生活引力场。
沿着极富秩序又充满变化的线条铺装,打造理性新趣的街区,利用植物围合空间形成商业消费场景,街景融合,形成面向城市的新界面。
两个微花园——“兰庭”与“苔庭”,打造绿洲般的“非正式交流空间”,丰富空间层次,营造艺术生活的发生器。
园区内文化巷道兼具“沉浸式”、“互动式”与"行赏式"特性,景观融入运动、人文和科创三大主题,营造一个“可玩”的景观廊道。
进入存量时代,城市更新做为作为城市化进程中新的增长点,也是城市融合焕发生机的持续性命题。
全新的业态定位、中心城区的区位、三国历史文化传承,这三者赋予该项目新的历史使命——数字创意产业新高地,城市智慧生活新场景。传统与科技在这个项目碰撞出火花。
工程档案
项目名称:
国际城市设计产业中心
项目位置:四川成都
景观面积:
20680
㎡
设计时间:2022年
建成时间:2023年
景观设计:景虎景观
摄影:汝何建筑摄影
——OVER——
FM干货铺
分享软件技能,分享免费资料
客服
消息
收藏
下载
最近
























