查看完整案例

收藏

下载
Project Name/项目名称:长沙-碧桂园天玺湾
Decorative Style/装修风格:现代轻奢+中式轻奢
Designer/设计师:黎凡
Area/面积:450㎡
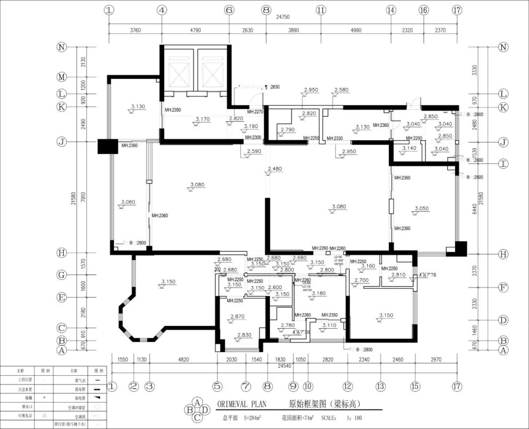
▲原始结构图
设计分析:
大家都知道小户型的设计中,设计的大气,开阔为第一点,以此避免拥挤压抑;而在大户型的设计中,更应该讲求空间比例尺度的协调性。
因此在本案设计中,设计师保留了7.6米的大尺度客厅空间,使钢琴、书柜的融入让空间更有艺术文化气息。
▲平面布置图
本案的业主夫妇非常讲求生活品质及文化氛围,设计之初,设计师对设计哪种风格很犹豫且迷茫,通过跟业主的沟通了解,以及多方面的家具市场走访,甚至到广州国际家居展看最新的设计作品,才得以有所启发。
最终确定以现代轻奢风来展开设计,其中融入些许中式元素,以增加东方文化氛围,体现现代中国人的生活方式,同时在设计手法上,设计师通过纤细笔挺的金属线条、高光科技木皮饰面板、精致的皮革、舒适的布艺,来展现空间的时尚美、精致美。
▲客厅
客厅的设计非常开阔,7.6米的大尺度空间,电视背景墙采用天然大理石装饰,轻奢有度、气韵十足,且对面两侧是半开放式的书柜设计,给人一种舒适淡雅的气息,客厅中间的天花金属灯光打下来,简约流畅的地面花纹凸显出精致感,带来一场与众不同的视觉盛宴。
客厅采光极好,立于窗前可以眺望窗外的风景,悠闲的午后,面对松雅湖优美的风景,品一杯香茗,弹一首钢琴曲,怡然自得,心境也因此得到升华。
▲餐厅
业主对生活细节很讲究,餐厅空间十分宽敞,通过整齐对称的封闭式酒柜设计,大量留白的天花赋予空间极大程度的层次感,装饰画以及精致吊灯让空间更具时尚格调。
在如今繁杂喧闹的都市生活中,这里是设计师为“家”增添情感的一方乐土,让业主一家人就餐时,氛围融洽,其乐融融。
▲卧室
主卧的通风采光优质,在空间一角设计师摆放一则书桌,让男业主得以办公,女业主则可在沙发上看书喝茶,一个空间,相互独立,又互不干涉,业主夫妻感情也得以提升。
同时主卧的床头背景采用皮质硬包装饰,以简洁利落的线条,创造出时尚个性的私人空间。同时,在选材与软装搭配上也十分注重舒适度,使人身处其中彻底放松身心。
本案中所理解的轻奢,并非是一种风格,而是一种不累赘又低调的生活状态,
不为走在前端,不为夸赞炫耀,只是
一种对细节有追求的生活态度!
黎凡表示:当我们忙碌了一天,拖着疲惫的身躯,心底最迫切想飞回的那个地方,叫“家”……因为那里有我们最爱的人,那里是让我们感到身心放松、舒适惬意的理想居所。
关于团队
他们是一个年轻、朝气、充满激情且富有创意的团队,团队成立至今,在踏实的探索与前进中,沉淀出属于自己的性格与精神,通过完善的整装设计及产品配套体系,通过与各专业领域团队合作、交流,让团队保持着设计前沿思想和创新活力,致力于为更多客户提供更高品质的设计和服务。
客服
消息
收藏
下载
最近










