查看完整案例

收藏

下载
Life is like a journey
HOME
IS A HAVEN
生活不是要使一切都最大化
而是要回馈某些东西
例如光线、空间、形式、宁静、快乐...
CASE / 重庆 · 长滩原麓
设计团队 / Design uint
无向空间设计
设计时间 / Design Time
2023年
面积 / Area
300m²
造价 / Price
120万
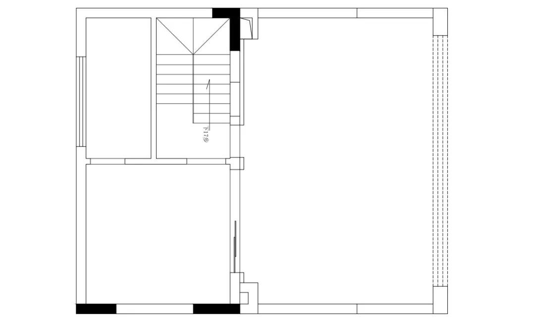
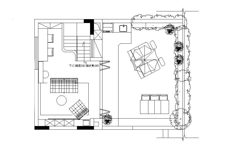
平面 / 结构
PLANAR STRUCTURE
向下滑动查看
原始户型
向下滑动查看
设计方案
设计思路
DESIGN IDEAS
中古风格设计里强调线条感,简洁有型的线条不论是表现在硬装造型上还是家具造型上,基本都是以抽象的几何块体和有机曲线结合。“侘寂”作为一种审美状态,是一种优哉游哉的生活态度。这种美,不刻意突出装饰外表,强调质朴的内在,并且能够经历时间的考验。
实景 / 展示
REAL PHOTOS
一楼客厅
全屋主要以奶油色和黑胡桃木为主,主沙发选择深色系让整屋视觉效果更好,阳光洒进室内,闲坐下来,充分享受空间的安静和谐,自然温暖。
电视墙组合造型设计,既可以用来当做装饰柜,有提升了空间的收纳性,中间壁挂电视机,错落有致,舒朗大气。
厨房/餐厅
客餐厅开放式布局,极大增强空间的趣味互动性,整个空间以奶油色和黑胡桃木为主调,在造型和色彩上都十分简洁,餐边柜用黑胡桃木做置物架,简单的线条设计强调空间的节奏感和纵深感。
二楼主卧
卧室的设计以舒适色调为主,木材的不同选色带来的不同的居住质感,原木色搭配上圆润的线条整体呈现着温暖又有力量的美感。
儿童房
儿童房用简单的木色与白色,造型上用圆形来修饰相对硬朗的空间,利用可爱的摆件和云朵灯来进行点缀增加活泼的氛围,为孩子打造了一个快乐的天地。
次卧
次卧没有繁复的装饰,更多的考虑到生活习惯的实用性,书柜和衣柜采用了一体式设计,整洁美观,色调与整体空间呼应,营造出温馨助眠的舒适氛围。
多功能房
多功能房简约独特的设计,延续了客厅整体风格,将美观与收纳完美的结合在一起,柔美的灯光照耀下,每一份都是恰到好处的高级,纯粹内敛,又不失张力。
花园
打造露天花园更加自然质朴,还能户外烧烤,一家人或者约上三五好友,品茗聊天晒阳光,尽享慢生活带来的惬意时光。
往 期 精 选 回 顾
Case Review
客服
消息
收藏
下载
最近

































