查看完整案例

收藏

下载
从心,不从众
Follow the heart, not follow the crowd.
/
☉ VEDIO 视频展示
序|Prologue
最好的人生,就是做简单的人,过简单的生活。从复杂到简单,回归生活最初的本真。
The best life is to be a simple person and live a simple life. From complexity to simplicity, return to the original truth of life.
改造对比|Before & After
改造前平面图
原始户型问题:
1、原始格局公卫小,无法实现干湿分区。
2、原始厨房布局动线不连贯,需重新布局。
3、原生活阳台,使用率低,采光不足。
Original house type:
1. The original pattern of public health is too small to achieve dry and wet zoning.
2. The original kitchen layout is incoherent and needs to be rearranged.
3. The original living balcony has low utilization rate and insufficient daylighting.
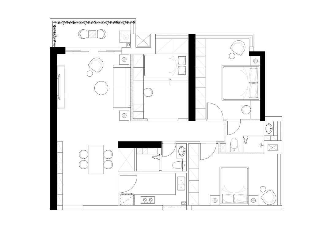
改造后平面图
户型改造后:
1、卫生间改为纵向布局,实现干湿分区,满足居家实用性。
2、厨房与生活阳台打通,实现L型厨房布局,保证动线合理化,增加空间利用率。
3、仅保留客厅与过道的两堵墙,将空间重新规划定义。
After house type transformation:
1. The toilet is changed to vertical layout to realize dry and wet partition and meet the practicability of home.
2. The kitchen and living balcony are connected to realize the L-shaped kitchen layout, ensure the rationalization of moving line and increase the utilization rate of space.
3. Only the two walls of the living room and aisle are reserved to redefine the space.
空间|Space
Living room
客厅
-
-
阳光透过大大的落地玻璃窗洒满整个客厅
客厅的超大收纳柜与电视柜形成一体
在柔软的地毯上
精心规划过的空间更加自由
宽敞的视野里留下的都是
亲子玩乐的甜蜜时光
Sunlight through the large floor glass window, sprinkled all over the living room. The super large storage cabinet in the living room is integrated with the TV cabinet. On the soft carpet, the carefully planned space is more free. In the spacious field of vision, there are sweet time for parents and children to have fun.
-
皮质沙发柔软舒适
背景墙的艺术涂料自然清新
在自然的光影下
空间饱满而富有层次
从玄关远眺
客餐厅一体设计流畅又完整
The leather sofa is soft and comfortable. The art paint of the background wall is natural and fresh. Under the natural light and shadow, the space is full and full of layers. Overlooking from the entrance, the design of the guest restaurant is smooth and complete.
Dining room
餐厅
-
-
大理石餐桌实用耐脏,除了享用美食
在餐厅看看书、和家人聊天、办公都是不错的选择
这也是设计师最喜欢的一个区域
总让人不禁想起小时候和父母一起吃饭的温暖场景
Marble dining table is practical and dirt resistant. Besides enjoying delicious food, reading books in the restaurant, chatting with family and working are all good choices. This is also a favorite area for designers. It always reminds people of the warm scene of eating with their parents when they were young.
-
与餐厅相结合的玄关区域,功能依然强大
玄关组合鞋柜,提供了超强的收纳和展示的空间
一抹复古又俏皮的胭脂红,在灯带的辅助下
映得生活格外灵动有趣
The function of the entrance area combined with the restaurant is still powerful. The combination shoe cabinet in the porch provides a super storage and display space. A touch of retro and playful rouge, with the help of the light belt, makes life more flexible and interesting.
Master room
主卧
-
-
精心挑选的中式水墨壁画
是卧室中画龙点睛的一笔
墨绿皮质梳妆台低调大气
整面墙的置顶大衣柜
拥有超强储物能力的同时美观又实用
隐形门后暗藏的卫生间
让日常起居更加便利
The carefully selected Chinese ink mural is the finishing touch in the bedroom. Dark green leather dressing table, low-key atmosphere, the whole wall top coat cabinet, with super storage capacity at the same time, beautiful and practical. The hidden toilet behind the invisible door makes daily living more convenient.
Children's room
儿童房
-
-
女儿最爱的粉色让整个房间纯真又温暖
定制的木头小屋,是她的专属童话城堡
微风拂过,天花板仿佛冒出哈密瓜的香味
地板也散发出巧克力饼干的香甜气息
The combination of wardrobe and tatami greatly improves the storage efficiency, and realizes the multi-functional integration of study and guest room. For the small apartment with small space, this is undoubtedly the best choice.
Parents’Room
父母房
-
-
温馨舒适的次卧留给父母小住
浅咖色涂料搭配白色衣柜散发着静谧的气息
休憩于此,心也会安静下来
Warm and comfortable second bedroom for parents to stay, light coffee color paint with white wardrobe exudes a quiet atmosphere, rest here, the heart will be quiet.
Porch
走廊
-
-
动静两个分区在这里被巧妙的分开
空间动线做到了合理的布置
从客厅望去
深处的装饰画让视线也变得更加深邃
The two zones are cleverly separated here, and the space moving line has been reasonably arranged. Looking from the living room, the deep decorative painting makes the sight more profound.
Kitchen
厨房
-
-
改造后宽敞的操作台面更加实用
浅色大理石墙面砖也是简单好打理
洗、切、煮、摆的流畅动线
塑造了极佳的烹饪的体验
制作美食也变得更加轻松
After the transformation, the spacious operating table is more practical, the light colored marble wall tiles are also simple and easy to take care of, and the smooth moving lines of washing, cutting, cooking and placing create an excellent cooking experience, making food more relaxed.
Bathroom
浴室
-
-
卫生间镜柜提供了方便的储物功能
电热毛巾架搭配智能马桶
赋予简单的空间更多的生活幸福感
Bathroom mirror cabinet provides convenient storage function, electric towel rack with intelligent toilet, giving simple space and more happiness.
项目概览|Project overview
☉ Spatial structures|空间解构
项目地址|广东 深圳
项目面积|110㎡
设计团队|深圳市薄荷室内设计有限公司
主创设计|李果然
完成时间|2018.1
Project address|Shenzhen,Guangdong
Project area|110 ㎡
Design team|Mint Design (shenzhen) Co., Ltd
Creative design|Lee guoran
Completion Date|Jan. 2018
·end·
客服
消息
收藏
下载
最近




























