查看完整案例

收藏

下载
地址:
丹麦,西兰岛,
米德尔堡中心
奖项和提名:通过这个新的疗养院Willibrord,Werkt voor Ouderen被授予
2014年
地球
精神奖。
该奖项授予创新计划,为医疗领域的居民和员工带来积极影响。
Awards and nominations:With this new nursing home Willibrord, Werkt voor Ouderen was awarded the
Spirit of Planetree Award 2014.
The prize is awarded to innovative initiatives that make a positive difference to residents and staff in the field of
healthcare.
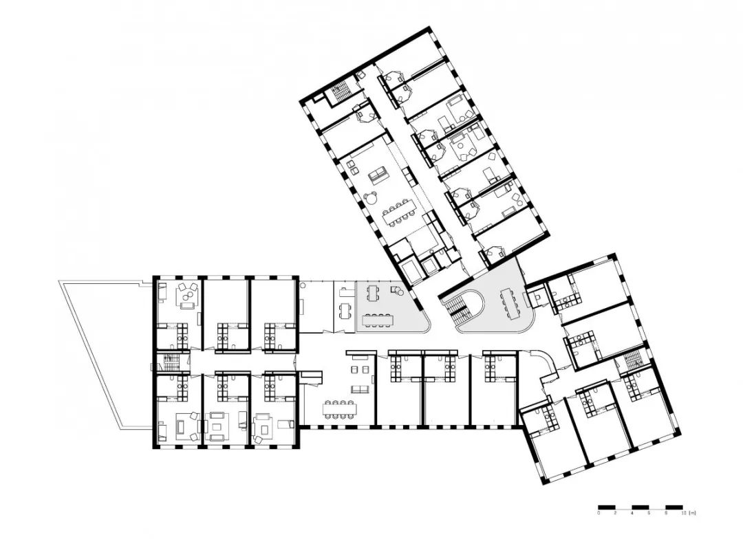
Willibrord疗养院位于Zeeland的米德尔堡中心,靠近历史悠久的市政厅,修道院和迷人的城镇广场。新的现代化养老院可容纳62名居民,其中心位置非常适合喜欢城市生活的人。客户Werkt voor Ouderen基金会委托工作室PRO设计内部,包括中央广场,公共起居室,分组公寓和私人公寓。该建筑由埃因霍温的Van Aken Architecten设计。
该综合设施包括三个分组的公寓,每个集群有六到八个精神病患者,39个私人公寓迎合躯体护理。该建筑采用开放式结构,可轻松重组布局,以适应不断变化的需求。Plaza酒店位于底楼,是一间带小酒馆的公共会议空间,而大楼后面则是一个封闭的花园。
The Willibrord nursing home is located in the heart of Middelburg, Zeeland, close to the historic town hall, abbey and charming town square. The new, modern nursing home accommodates 62 residents, with its central location ideal for those who prefer city life. The client, Werkt voor Ouderen Foundation commissioned atelier PRO to design the interior that comprises a central plaza, communal living rooms, grouped apartments, and private apartments. The building was designed by the Eindhoven-based practice Van Aken Architecten.
The complex consists of three grouped apartments, each cluster housing six to eight psychogeriatric patients, and 39 private apartments catered to somatic care. The building has an open structure that allows the layout to be easily reorganised to accommodate changing needs. Located on the ground floor is the Plaza, a communal meeting space with brasserie while an enclosed garden is situated at the back of the building.
近年来,精神科护理院的医疗保健越来越关注居民的个人经历。Willibrord的建筑和室内设计与这一理念相呼应,从而形成了一个更像家庭和更少的制度环境。为了营造更多的社交环境,酒店提供三组公寓,每套公寓均设有卧室/起居室和浴室。每个团体共用厨房和起居室,所有居民都可以进入公寓旁边的封闭式花园。所有私人公寓均设有大型全高窗户,享有充足的日光,可欣赏到城市环境。酒店的主入口通往中央广场,设有小酒馆,欢迎居民,游客和周边居民入住。
In recent years, health care in psychogeriatric nursing homes is increasingly focused on the personal experiences of the residents. The design of the architecture and interiors of Willibrord echo this idea, resulting in a more home-like and less institutional environment. To create a more social setting, there are three groups of apartments, with each apartment comprising a bedroom/sitting room and bathroom. Every group shares a kitchen and living room while all residents can access an enclosed garden located beside the apartments. All private apartments have large, full-height windows that admits plentiful daylight into the space and allows views into the city surrounds. The main entrance of the complex opens onto the central Plaza with brasserie where residents, visitors and also the neighbouring residents are welcome.
室内设计的一个重要起点是客户的目标是在不妨碍安全和专业护理环境的情况下营造温馨亲切的氛围。Willibrord是一个让居民感到宾至如归的地方,也是考虑员工工作环境和福祉的地方。
室内设计具有现代经典美学,参考了家庭的熟悉程度。通过使用普通天花板(而不是机构面板天花板),真正的木质窗框和门以及实心橡木地板,营造出温馨如家般的氛围。公寓配有可识别的传统元素,如镶板和老式褶灯,不会影响适当数量的(人造)灯光。公寓宽敞,可容纳居民携带的任何珍贵的个人物品或家具。窗帘,毛巾和床单面料与公寓的颜色相匹配,甚至还考虑了床的设计。浴室采用时尚的方式装饰,使用现代瓷砖,地板和浴室用具通常不会出现的情况。公共客厅配有经过修复的古董家具和新的定制作品。在广场等中心位置,强调色用于创建不同的地标以改善方向。
An important starting point for the interior design was the client’s ambition to create a homely, welcoming atmosphere without obstructing safety and the environment of professional care. Willibrord is a place where residents can feel at home, and where the work environment and wellbeing of employees is considered.
The interior design has a modern-classic aesthetic that references the familiarities of a home. A warm, home-like atmosphere is created by using normal ceilings (instead of institutional-looking panel ceilings), real timber window frames and doors and solid oak floors. The apartments are furnished with recognisable traditional elements such as panelling and old-fashioned pleated lamps without compromising on the appropriate amount of (artificial) light. The apartments are spacious enough to accommodate any precious personal items or furniture which residents bring with them. Curtains, towel and bed linen fabrics match the colours in the apartment and even the design of the beds were considered. The bathrooms are finished in a stylish way using contemporary tiles, flooring and bathware not normally expected of a nursing home. The communal living rooms are furnished with a combination of restored antique furniture and new custom-made pieces. At central locations such as the plaza, accent colours are used to create different landmarks to improve orientation.
为了与客户,设计师和员工一起测试不同的设计解决方案,内部建筑商Wondergem使用内置家具建造了真人大小的房间模型。这是检查功能元件的理想选择,例如橱柜,镜子和浴具的位置,以及选择饰面和材料的颜色,测试滑动门的易用性,橱柜和自动化系统的可访问性。花费了大量时间和精力在整体设计中加入必要的配件,如肥皂分配器,卫生纸架和垃圾箱以及员工所需的技术空间。通过这些设计努力以及相关的医疗保健创新,目标是为未来居民的福祉作出重大贡献。
To test different design solutions with the client, designers and staff, the interior builder Wondergem built a life-size mock-up of the rooms with the built-in furniture. This was ideal for checking functional elements such as the positions of the cupboards, mirrors and bathware but also for choosing colours of finishes and materials and testing the ease of sliding doors, accessibility of cupboards and automated systems. Much time and effort was spent to incorporate the necessary accessories in the overall design such as soap dispensers, toilet paper holders and waste bins as well as technical spaces required for staff. Through these efforts in the design and thereby the associated innovations in health care, the aim was to contribute significantly in the wellbeing of the future residents.
Room (photo Petra Appelhof)
Living room (photo Petra Appelhof)
Living room (photo Petra Appelhof)
Living room (photo Petra Appelhof)
Interior (photo Petra Appelhof)
Living room (photo Petra Appelhof)
Interior (photo Petra Appelhof)
Interior (photo Petra Appelhof)
Interior (photo Petra Appelhof)
Living room (photo Petra Appelhof)
Interior (photo Petra Appelhof)
Interior (photo Petra Appelhof)
Interior (photo Petra Appelhof)
Interior (photo Petra Appelhof)
Exterior (photo Petra Appelhof)
3D impression
3D impression
3D impression
Ground floor plaza
First floor
Dwelling
Dwelling
View
免责声明:
1、以上图片及资料内容来源于网络,由我方整理,版权归原作者及其公司所有;
2、本资料仅供学习研究之用,不得用作于商业用途,若侵犯到的您的权益,请于我们联系删除;
图片来源:
Atelierpro
往期设计分享▼
[Reship]A&R PLASTIC SURGERY BY BASE ARCHITECTURE/A&R基础建筑塑料外科学
[Reship]Детский сад в Москве/在莫斯科的幼儿园
[Reship]Geriatric Centre Donaustadt Vienna/维也纳Donaustadt老年医学中心
[Reship]Santa Rita Geriatric Center/圣丽塔老年中心
[Reship]SAINOU HOSPITAL / 西野医院
客服
消息
收藏
下载
最近


![[Reship]Willibrord医疗保健院-24](https://image.linggan.znzmo.com/case/img/e0bcf8e4e9566019d38184571351d9196d9d7d29.jpg?x-oss-process=image/auto-orient,1/watermark,text_55-l5pyr5qGI5L6L,size_20,rotate_45,fill_1,t_5,x_200,y_200/resize,m_mfit,w_880,h_1178,limit_0)
![[Reship]Willibrord医疗保健院-26](https://image.linggan.znzmo.com/case/img/95096fbca6213ef33fcbbf6b676ad96631c410c8.jpg?x-oss-process=image/auto-orient,1/watermark,text_55-l5pyr5qGI5L6L,size_20,rotate_45,fill_1,t_5,x_200,y_200/resize,m_mfit,w_880,h_657,limit_0)
![[Reship]Willibrord医疗保健院-28](https://image.linggan.znzmo.com/case/img/abccb0bd4146bb6be72e1fb155108a1cd23ee5d6.jpg?x-oss-process=image/auto-orient,1/watermark,text_55-l5pyr5qGI5L6L,size_20,rotate_45,fill_1,t_5,x_200,y_200/resize,m_mfit,w_880,h_657,limit_0)
![[Reship]Willibrord医疗保健院-30](https://image.linggan.znzmo.com/case/img/026952401515e5ad865fe553285e094a3309da20.jpg?x-oss-process=image/auto-orient,1/watermark,text_55-l5pyr5qGI5L6L,size_20,rotate_45,fill_1,t_5,x_200,y_200/resize,m_mfit,w_880,h_1178,limit_0)
![[Reship]Willibrord医疗保健院-32](https://image.linggan.znzmo.com/case/img/5c40311c563f148ddfe096a6066e0cde2823e9a1.jpg?x-oss-process=image/auto-orient,1/watermark,text_55-l5pyr5qGI5L6L,size_20,rotate_45,fill_1,t_5,x_200,y_200/resize,m_mfit,w_856,h_1200,limit_0)
![[Reship]Willibrord医疗保健院-34](https://image.linggan.znzmo.com/case/img/931eeec739a58d8e389506846bf374fccf5dfdec.jpg?x-oss-process=image/auto-orient,1/watermark,text_55-l5pyr5qGI5L6L,size_20,rotate_45,fill_1,t_5,x_200,y_200/resize,m_mfit,w_880,h_660,limit_0)
![[Reship]Willibrord医疗保健院-36](https://image.linggan.znzmo.com/case/img/07f2c1222a1da9bec2e0620fa8b03ee3ad404dbd.jpg?x-oss-process=image/auto-orient,1/watermark,text_55-l5pyr5qGI5L6L,size_20,rotate_45,fill_1,t_5,x_200,y_200/resize,m_mfit,w_880,h_657,limit_0)
![[Reship]Willibrord医疗保健院-38](https://image.linggan.znzmo.com/case/img/fccba2cbc851cb06fb359774a1fb60d524f164bb.jpg?x-oss-process=image/auto-orient,1/watermark,text_55-l5pyr5qGI5L6L,size_20,rotate_45,fill_1,t_5,x_200,y_200/resize,m_mfit,w_880,h_1178,limit_0)
![[Reship]Willibrord医疗保健院-40](https://image.linggan.znzmo.com/case/img/1a5ae9f6b9d9ce2bd8cfa929f8a7479d547c3638.jpg?x-oss-process=image/auto-orient,1/watermark,text_55-l5pyr5qGI5L6L,size_20,rotate_45,fill_1,t_5,x_200,y_200/resize,m_mfit,w_880,h_657,limit_0)
![[Reship]Willibrord医疗保健院-42](https://image.linggan.znzmo.com/case/img/094376a2831f03eb1030a71fd565b66366475f07.jpg?x-oss-process=image/auto-orient,1/watermark,text_55-l5pyr5qGI5L6L,size_20,rotate_45,fill_1,t_5,x_200,y_200/resize,m_mfit,w_880,h_657,limit_0)
![[Reship]Willibrord医疗保健院-44](https://image.linggan.znzmo.com/case/img/bafad96e814158ab8bc38efbefc7d73ec24bcccd.jpg?x-oss-process=image/auto-orient,1/watermark,text_55-l5pyr5qGI5L6L,size_20,rotate_45,fill_1,t_5,x_200,y_200/resize,m_mfit,w_880,h_657,limit_0)
![[Reship]Willibrord医疗保健院-46](https://image.linggan.znzmo.com/case/img/9e5134504bf207c64621629048088210d199b2de.jpg?x-oss-process=image/auto-orient,1/watermark,text_55-l5pyr5qGI5L6L,size_20,rotate_45,fill_1,t_5,x_200,y_200/resize,m_mfit,w_880,h_1178,limit_0)
![[Reship]Willibrord医疗保健院-48](https://image.linggan.znzmo.com/case/img/de931c714ed995a20add11ec318a8b9f83581649.jpg?x-oss-process=image/auto-orient,1/watermark,text_55-l5pyr5qGI5L6L,size_20,rotate_45,fill_1,t_5,x_200,y_200/resize,m_mfit,w_880,h_657,limit_0)
![[Reship]Willibrord医疗保健院-50](https://image.linggan.znzmo.com/case/img/98c63a17077bc9ff2c6b2d3a940c84836964c1ec.jpg?x-oss-process=image/auto-orient,1/watermark,text_55-l5pyr5qGI5L6L,size_20,rotate_45,fill_1,t_5,x_200,y_200/resize,m_mfit,w_880,h_657,limit_0)
![[Reship]Willibrord医疗保健院-52](https://image.linggan.znzmo.com/case/img/afb025d80e257d0413ae3a18ff2a660297ddb99c.jpg?x-oss-process=image/auto-orient,1/watermark,text_55-l5pyr5qGI5L6L,size_20,rotate_45,fill_1,t_5,x_200,y_200/resize,m_mfit,w_880,h_439,limit_0)
![[Reship]Willibrord医疗保健院-54](https://image.linggan.znzmo.com/case/img/b2f31e604e1b54aad0385e806b482ce6c35920c4.jpg?x-oss-process=image/auto-orient,1/watermark,text_55-l5pyr5qGI5L6L,size_20,rotate_45,fill_1,t_5,x_200,y_200/resize,m_mfit,w_880,h_690,limit_0)
![[Reship]Willibrord医疗保健院-56](https://image.linggan.znzmo.com/case/img/97b4a477d184cf147207eade268e9473195082fd.jpg?x-oss-process=image/auto-orient,1/watermark,text_55-l5pyr5qGI5L6L,size_20,rotate_45,fill_1,t_5,x_200,y_200/resize,m_mfit,w_880,h_618,limit_0)
![[Reship]Willibrord医疗保健院-58](https://image.linggan.znzmo.com/case/img/c3a0ce1fca5ed0be7f79b08bef360ed735305339.jpg?x-oss-process=image/auto-orient,1/watermark,text_55-l5pyr5qGI5L6L,size_20,rotate_45,fill_1,t_5,x_200,y_200/resize,m_mfit,w_880,h_609,limit_0)
![[Reship]Willibrord医疗保健院-60](https://image.linggan.znzmo.com/case/img/d5469897e3b61919e3308d5bde8165523fdf086d.jpg?x-oss-process=image/auto-orient,1/watermark,text_55-l5pyr5qGI5L6L,size_20,rotate_45,fill_1,t_5,x_200,y_200/resize,m_mfit,w_880,h_664,limit_0)
![[Reship]Willibrord医疗保健院-62](https://image.linggan.znzmo.com/case/img/b3c71cc5e3aea887cb47ea30efb131301fd251a4.jpg?x-oss-process=image/auto-orient,1/watermark,text_55-l5pyr5qGI5L6L,size_20,rotate_45,fill_1,t_5,x_200,y_200/resize,m_mfit,w_880,h_649,limit_0)
![[Reship]Willibrord医疗保健院-64](https://image.linggan.znzmo.com/case/img/ec14ed8c96fc30e5359d73e81b442c7610e9b5f2.jpg?x-oss-process=image/auto-orient,1/watermark,text_55-l5pyr5qGI5L6L,size_20,rotate_45,fill_1,t_5,x_200,y_200/resize,m_mfit,w_880,h_457,limit_0)
![[Reship]Willibrord医疗保健院-66](https://image.linggan.znzmo.com/case/img/3fe811208a9078ba0ee99191fd1200841f84754e.jpg?x-oss-process=image/auto-orient,1/watermark,text_55-l5pyr5qGI5L6L,size_20,rotate_45,fill_1,t_5,x_200,y_200/resize,m_mfit,w_880,h_453,limit_0)
![[Reship]Willibrord医疗保健院-68](https://image.linggan.znzmo.com/case/img/6ad2049bd71a369720680e455426ca882f7f03e4.jpg?x-oss-process=image/auto-orient,1/watermark,text_55-l5pyr5qGI5L6L,size_20,rotate_45,fill_1,t_5,x_200,y_200/resize,m_mfit,w_880,h_431,limit_0)
