查看完整案例

收藏

下载
项
目性质:私宅
项目建筑面积:
180
平方米
项目地址:杭州
空间及软装设计:杭州陌上设计事务所
空间摄影:设计师
设
计及完工时间:2016年7月-2019年4月
施工方:鸿杰装饰
屋主需求:
满足观影、游戏、喝茶的需求,足够多的收纳空间。希望原本较小的玄关在满足鞋柜的同时视觉上尽可能开阔,卫生间需要同时满足浴缸和单独淋浴(原空间的尺度无法实现),屋主小姐姐喜欢烘培所以对厨房电器上有比较大需求,同时操作台面也要尽可能多,需要更合理的安排厨房的电器和在操作上的便捷。
左右滑动
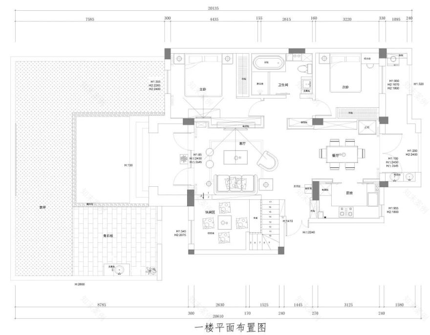
收纳空间的分析考虑:
在储物上的考虑设计师考虑分区储物的方式,满足每个功能区自身的收纳要求后增加公区部分的公共收纳对于生活中杂物以及使用频率不高的物品进行统一收纳。
借用客厅空间的尺度拆除客厅和主卧之间墙体,解决了客厅设备的放置的同时增加次卧的收纳空间。考虑到餐边柜厚度和旁边墙体的关系巧妙将过道部分空间做了一组公共的收纳柜。
把原本客厅后的小房间做了开放式的处理整体做了抬高内部可以作为公共收纳空间。对于日常大件杂物的收纳在地下室进户门的位置规划了储藏间。
空间结构的处理优化:
基于屋主提出的对原本户型结构不满意的地方,设计师结合需求和空间条件对玄关左右两侧非承重部分墙体和客厅旁的小房间部分墙体进行了拆除,借用玄关和厨房间非沉重墙体的厚度做了到顶的鞋柜,另一侧楼梯口则做了半高的鞋柜,对于榻榻米房间则利用原结构楼部分梯口的位置增加了小书桌,让屋主无论在楼上还是楼下都能坐下来喝茶或坐下来书写办公。
考虑楼梯安全和空间视觉的通透从楼梯侧面到屋顶用了原木木条做格珊。解决了原本玄关空间的局促感让光线可以一直到入户门。厨房墙体借用餐厅空间将墙体往外挪了12公分安排了一组电器柜其余空间则都留给了操作台面让其尽可能大。冰箱则安排在了餐厅边柜旁。厨房移门则采用了往两边移的方式,考虑屋主烘培时餐厅和厨房之间可以是完全开放的状态让操作更加方便。
主卧尺度在满足休息和收纳后把其余空间留给了卫生间实现了卫生间的浴缸和单独淋浴。地下室就是一个大开间的,喝茶区域和吧台处的分功能层次的抬高处理给空间增加了层次感和趣味性。
客厅
屋主对于整体的定位是台式+日式,考虑到两代人的居住空间在主要的公共空间需体现沉稳。整体以黑白灰的中性色配合原木色为主基调,适当加入黄、蓝作为空间的点缀色彩。我们更希望给以后生活中的色彩留出足够多的空间所以大部分私宅空间在色彩上不会做的太满。电视墙的木皮板一直延伸到主卧的房门形成统一性,弱化主卧空间的入口。
餐厅
餐厅没有做过多的处理,餐边柜旁的白色墙体以及悬挂的装饰画从结构和视觉上对餐厅玄关以及客厅做了划分。
地下室
地下室的空间小编看了第一感觉是一个既能享受一个人安静思考,又能约一群好友开part的绝妙地方。可以喝茶、观影、游戏、酌一壶小酒........让我想起了当年喝酒聊天吹牛逼的场景。
主卧
次卧
是小姐姐的房间没错了,以白色为主的空间搭配抱枕,整体空间表现出纯洁、淘气,见屋如见其人。
卫生间
卫生间延续了公共空间的黑白灰。
最后是屋主小姐姐对这次装修的总结:
杭州陌上设计事务所成立于2012年。专注酒店、样板房、售楼处、民宿等设计项目。目前项目遍及北京、深圳、上海、浙江、江苏、江西等地。多个作品受到国内外专业杂志约稿登刊。短短几年内设计作品在业内广受追捧,树立了良好的设计口碑。精益求精的设计意识也不断得到了设计委托方的高度评价。 设计理念:设计体现生活、设计服务于生活。源于生活的设计灵感赋予空间艺术气息。
事务所创始人及合伙人师从普利兹克奖得主RCR事务所,游学于欧洲、日本。
咨询热线:0571-87031776
办公地址:杭州市西湖区三墩街1号世创国际1106室
客服
消息
收藏
下载
最近































