查看完整案例

收藏

下载
轻奢风
不让人累赘但又追求一种低调的状态
不为走在前端 不为炫耀夸赞
但却要尽情享受这生活的美好
本案将玄关作为故事的起点,将空间作为画布,将色彩元素、结构和使用功能作为颜料添加上去,再调和不同内容,不同表达方式差异化的同时精准把握当地光影变化,将美学的基调融入现代生活方式的各个情景。
客厅的孔雀蓝背景唤醒了一天的气氛,
灵秀的孔雀蓝以强势的优雅姿态,牢牢锁住人们的视野。当与生俱来的高贵气质与骄傲的橙色,结合出华丽端庄的诱惑,盛放出醉人心扉的既视感,令人难以忘怀。亮眼的撞色搭配,营造出一种活泼轻快的氛围,和谐又有层次感,满足了轻奢族对于品质居住的向往。
餐厅的墙面以浅灰色为主,餐椅靠背的优雅蓝搭配,与客厅和谐统一,而与深灰色的结合,又营造出餐厅沉稳简练的独特基调,处处体现生活的品质感。
楼梯间简约而大气的吊环灯撒落下来,上下长短不一的组合垂吊则像月光沉入大海一样,泛起一个又一个晶莹细碎的泡沫,在形成不同光线格局的同时,也成为了一件艺术作品,用温暖的灯光充盈整个空间。
茶室
,不仅限于品茶,更是一个静心,放松的空间,这里既可以承担社交的功能,又可以一人独处,修养身心。
忙碌中因为有了茶室的存在,生活的脚步也会随之放缓,获得片刻的沉思与宁静。
主卧室的搭配风格淡雅素净,低调质感、优雅的基调,颜值有质感的深灰色衣柜,丰富了空间的层次和内涵,高级灰的背景点缀低饱和度的蓝绿色,一种浪漫诗意与空间设计共感,衬托出休憩空间的舒适氛围。
大多数男孩勇敢、坚强,有着一股不屈不饶的精神。
对于太空中有着什么奥秘,也是保持十足的好奇心。
设计师把对太空的无限幻想融入设计创意中,他在睡梦中会是乘着飞船的那个勇敢宇航员,让孩子怀揣着梦想快乐的健康成长。
每个小女孩心中都有一个美丽的童话屋,甜美的糖果粉色让整个女孩房充满童话的味道,纯真的色调给人天真浪漫的感觉,而细节处的金属元素为点缀又带来了优雅与精致。
影音室天花板以更自然、更幽深的星空作设计,令空间更显通透,带来强劲刺激的感官体验,营造良好的视听氛围。
有这样的一个私密空间,可以呼朋看电影,可以聚友KK歌,赋予了居家生活更多的情趣和创意,想想都让人感觉放松和身心愉悦。
项目名称 / 秦馀山庄
Project Address / Qin Yu Shang Zhuang
项目类型 / 私宅别墅
Project Type /
Private villas
项目面积 / 300㎡
P
roject Area / 300
㎡
设计总监 | 周岩
Artistic Director | Ada 周
设计时间 / 2019.05
Design Time
/
2019.05
软装竣工时间 /
2021.03
Soft outfit completed
Time
/
2021.03
拍摄时间 / 2021.05
Shooting Time /
2021.05
软装设计单位 / 7度空间别墅软装
Soft outfit design unit / 7 degrees of space villa soft decoration
▼
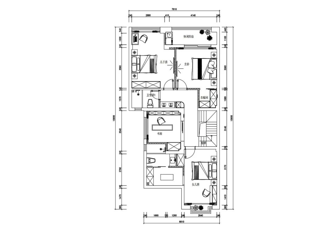
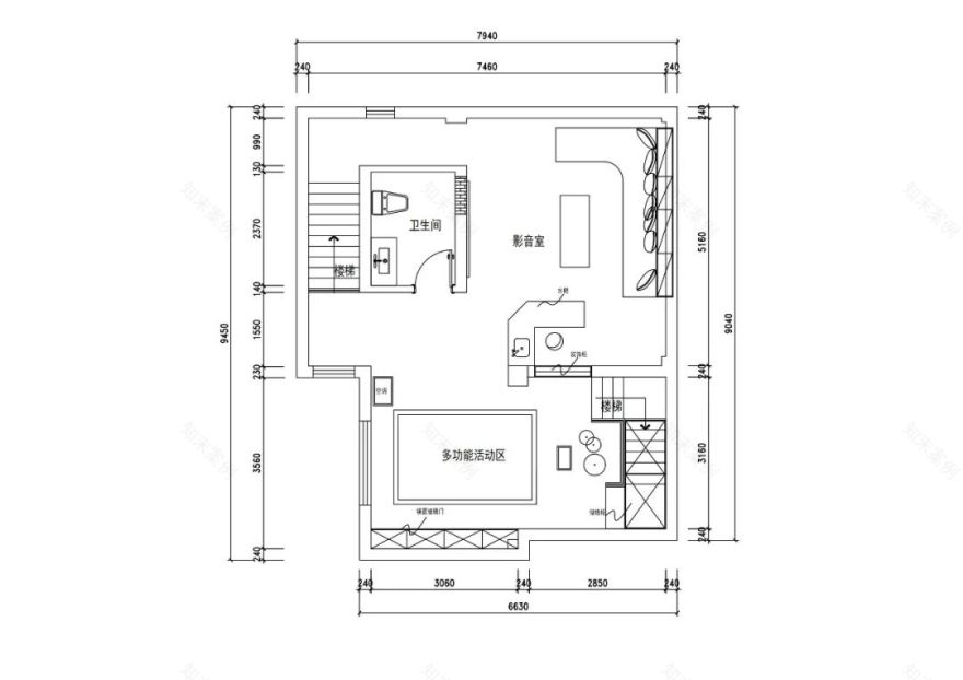
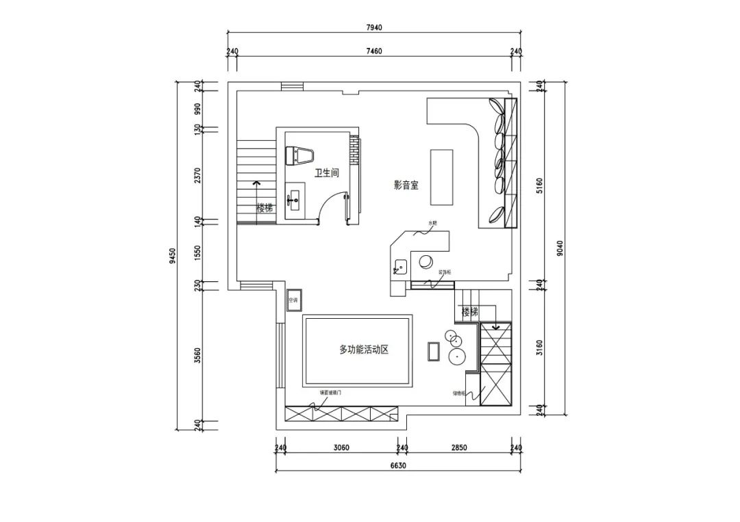
平面图
▲1 F
▲2 F
▲-1 F
客服
消息
收藏
下载
最近




























