查看完整案例

收藏

下载
美好雅致的居住空间
——
漾设计
本案业主是一对审美较高、讲究生活质感的90后小情侣,家里还有一只大金毛。这是两人第一次操持装修事宜,平时工作比较忙,为了尽量圆满实现对新家的憧憬,在交房前一年便开始寻心仪的设计公司,希望有足够的时间沟通设计细节,将琐碎的事情都前置化,待交房后只需按部就班即可。
考察过几家设计公司后,从专业性和体系化考虑,最终确定了和我们的合作~而我们也不负所托,与业主一同打造了这套理想家!
原户型很方正,结构也合理,不需要大拆大改去体现设计的价值。功能需求方面,业主希望卫生间大一些,要放浴缸;对家里整体感觉希望是干净整洁、好打理的,不需要太复杂的设计,但也不希望太极简而没有精致感。
设计师结合需求表和色彩测试,以雾霾蓝为主色调,将欧式线条元素的精致感,与现代元素的时尚感相结合,运用护墙板、硬包、岩板、金属等多种材质,营造了一个年轻时尚、高级有质感的空间,使业主身临其境的感受生活的美好与雅致。
天花、背景墙、家具……线条元素随处可见,或极简或硬挺,赋予空间更多层次的质感,令有限的空间延展出更大的尺寸感。
电视背景墙别具匠心,采用岩板、护墙板、不锈钢等材质结合,搭配小株琴叶榕,与自然光影和谐共存,散发着悠然静好的气息。
 ̄
客餐厅以背景墙进行功能区域的划分。
雾霾蓝自带复古滤镜,将周边一并卷入朦胧美感之中,文艺范儿十足,随意一拍就是大片即视感。
 ̄
雾霾蓝色护墙板搭配奶茶色皮质L型沙发、大理石+铁艺的组合茶几,每一处都透露着精致与时尚。不想辜负大好日光,暂时还未悬挂窗帘,但预留了窗帘盒位置,便于后期加设窗帘。
 ̄
透过大面积落地窗迎接自然光入住,光、影、材的相互映照,视觉上越发和谐,营造理性内敛的奢华感。
以高级灰为主基调,搭配纹理清晰的木饰面餐边柜,整体干净素雅、通透高级。
 ̄
餐厅收纳井然有序,靠墙两侧是到顶收纳柜+局部展示柜,封闭式与开放式的结合,满足了多种物品的收纳需求。木制品
极窄收边口展现了精湛的工艺,凸显业主极高的生活品味和细节追求。
 ̄
主卧延续雾霾蓝的主色调,以整面硬包+不锈钢作为床头背景墙,一派沉稳静谧之感。墙面不锈钢更是顺势延伸至天花顶面,巧妙成为装饰造型,令空间在视觉上更有延展性。
 ̄
梁位下以温柔的奶茶色木饰面为界,加设了女主人的梳妆台,丰富空间功能性。异形梳妆镜和小挂画相互呼应,使空间更具灵动性。
 ̄
书房也是临时的客房,以翻板床+书桌形式满足多重功能需求。靠窗定制一整排书桌,顺沿梁位定制一竖排书柜,既增加了收纳空间,也解决了书桌受力问题。在这里,采光好、景色好、视野开阔,就连办公都十分惬意。
 ̄
厨房素雅大气,浅灰色地砖搭配浅色纹理墙砖和白色橱柜,
纯净的配色勾勒出简约大气的烹饪空间。
 ̄
卫生间自然清爽之中又不乏创新,局部拼花墙砖格外吸睛,黑白灰中性色的使用令空间更显高级。白色的浴缸增加了沐浴的舒适感,让人十分惬意、放松。
 ̄
(原始结构图)
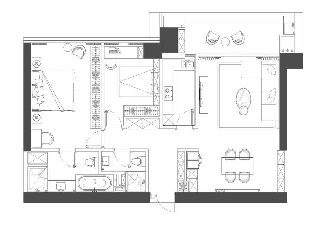
(平面布置图)
项目名称:蓝颜
项目设计:深圳漾空间设计有限公司
软装实施:深圳漾空间设计有限公司
项目地点:深圳华侨城新天鹅堡
项目面积:125平
装修风格:现代风格
关于 漾设计YoungDesign
漾设计Young Design 公司成立于深圳,是一家以精品家装为主、工装为辅的设计型公司。公司针对全国各类大、中户型进行精品家居设计,曾有多套成功的案例,并在国内外获得各类奖项殊荣。公司主要以年轻时尚为主要的 设计理念,采用家居全包模式,从材料、硬装、软装等几个方面同时着手,实现家居设计理念一体成型的最终效果。
延伸阅读
EXTENSION READ
▽
沙发背景墙设计 | 80款
极简风客厅设计 | 50款
最新沙发背景墙设计 | 100款
线上直播:设计到清单制作 再到产品落地
设计师创业训练营第六期 |长沙站
2021年12月20日-12月23日
设计师创业训练营
内容介绍
全案落地 设计管理 获客维护
---讲师:童昕---
辰佑设计·颜青软装联合创始人
品牌推广:风向分析、运营优势、价值与竞争力
管理流程:落地流程、管理结构、部门管理细则
客户维护:原始积累、客群定位、活动策划执行
---讲师:陈哲---
理居设计创始人
行业分析:行业背景、细分模式、客户数据
创业轨迹:使命价值、投资风控、客户获取
获客渠道:渠道分类、打造团队、高效转化
【学习对象】
设计总监 设计公司管理层
有创业计划或者已经在创业的设计师
行业相关创业人群
设计工作室创始人
训练营咨询(瑞苓老师)
客服
消息
收藏
下载
最近






























