查看完整案例

收藏

下载
▼
▼
万科翡翠国宾售楼处位于十三朝古城
西安
,一场美学盛宴,追求艺术美学与古韵经典。空间艺术不仅仅在于格局与安逸性,更重要的是透过格局观世界。
前台大厅
0
1
仿石雕塑,金碧闪耀,每一处棱角展现时代的厚重印记。置于大堂,尽显恢弘之气。时代更迭,不变的是美学的追求。
深褐色原木墙,线条延伸,流畅顺达。精致花艺,古铜色吊灯,每一束光都是深度的肃穆。
装饰无需繁琐,极简美感尽在心。在一片喧嚣中体会设计的独到之处,精雕细琢间优雅呈现,美学艺术,乾坤之内。
A洽谈区
0
2
A洽谈区,灰色为底,绿色做配。古朴中浸透中优雅,经典中彰显着自然,原始气息,天地本色。
布艺沙发专注于舒适性自主体验感。丝绸材质抱枕,纹理配色古香古色,万种风情。
青碧色桌面晶莹剔透,质感温润如玉,仿佛能看到另一个时空的印记。铜制花瓶承绿色小植,相得益彰,分外和谐。
米粒状灯饰不规则螺旋排列,造型精巧灯光柔美。原色实木地板,金属材质装饰,不同材质碰撞,镌刻时尚气息。
B洽谈区
0
3
软装搭配体现整体美感,一事一物都不能不格外用心。绿色自然元素穿插于洽谈区之中,软化了会谈的肃穆,增加了自然般的柔情。
墨绿石膏头像,磨砂水晶柱体,弘扬中世纪人文主义艺术美学,艺术品诉说那些历史中点点滴滴,生活与艺术,古典与现代,缠绵悱恻的艺术印记。
黑陶工艺品,斑马纹理边柜,色彩多重性思考,细节决定品味,个性特质凸显,时尚气息浓重。
灰色为主,黑色作配,沉稳有力,经典从未被超越。无需雕梁画栋,简洁即显格调。
高雅灰色木质墙面,几何艺术挂画,色彩穿插搭配,深邃迷人。玻璃推拉门作为隔断,保证私密会谈,贴心安全。
装饰色彩鲜明,不同材质采用,以艺术之名注入典雅生活,完美视觉感受,留住每一份美好。
VIP室
0
4
VIP室内设计,充满现代温馨气息,灰色调为主配色,不同的灰色,不同的情感呈现。
几何形艺术挂画,落地夜明珠灯饰,菱形图案沙发组,摆放亮色抱枕,不同颜色的碰撞,杂糅色彩的语言,浪漫惬意,美轮美奂。
沙盘区
0
5
入眼之处,天花板上精致华美的吊灯抓住你的心,水晶材质,晶莹剔透,每一颗都闪耀着迷人的光芒。数以万计的水晶石飘飘洒洒,宛如仙女落入凡间。
沙盘区域,整体设计稳重持稳,经典灰色为主色调,空间简洁有序,落落大方。
过道
0
6
过道空间展现艺术美感,对称式石膏人体雕像,洁白圣洁,光芒闪耀。
墙上的艺术挂画,黑色与白色的色彩交织,粗细不一的纹理镌刻,古典与抽象,庄重高雅,沉醉其中。
螺旋楼梯连接负一层,休闲娱乐区分布于此,全面式透明玻璃,内外完美连接,美景净收眼底,精致生活,休闲不容错过。
室内泳池设计独特,波浪式天花板造型奇特,皮质躺椅有序排列,舒适性极佳。池水清澈,在炎热的午后畅游片刻,释放压力,如此再美好不过了。
将美好化作现实,用艺术装点生活。创造性突破自我,个性美学,追求卓越。
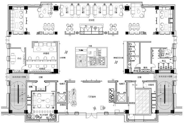
平面图
0
7
公司简介
广州欧镱装饰是一家承担设计、工程、销售、软装等服务于一体的现代化装饰公司,始终坚持“
客户至上,品质为先
”的经营理念。提倡“
绿色环保,家居梦想
”的绿色家装理念,提升工程品质,坚持信誉第一,私人订制的家装体验。
公司产品汇集国际、国内一线品牌家装产品,专注于品质化服务。欧镱多年来凭借着对于家装行业独到的领悟和创新,在激烈的市场洪流中独树一帜。
服务热线:13826269173
客服
消息
收藏
下载
最近




























