查看完整案例

收藏

下载
A
座大堂“赤木金鱼方案”
:方案以“赤木/金鱼”为设计主题。空间用“赤木”一气呵成,既与通州万达广场的船型外立面之曲面相呼应,又不失中国古典底蕴。整个大堂的室内空间分为11个开间,在赤木的主题下,借鉴在中国古典建筑中最为隆重的11开间“太和殿”,打造出层层叠落的富有变化及细节的空间特质。
TOWER A LOBBY
"
REDWOOD GOLDFISH"
:
the design concept of this scheme is "Redwood Goldfish". The space is made of "Redwood", which not only corresponds to the curved surface of the “Ship” concept of exterior facade of Tongzhou Wanda, but also has Chinese classical heritage. The interior space of the whole lobby is divided into 11 bays. Under the concept of Redwood, the most grand 11 bay "Taihe Hall" in Chinese classical architecture is used for reference to create a layer upon layer space characteristic with variety and details.
▲ 左滑查看更多
|
SWIPE LEFT FOR MORE
▲
▲A座大堂:赤木金鱼方案1
| TOWER A LOBBY: REDWOOD GOLDFISH 1
▲A座电梯厅:赤木金鱼方案1
| TOWER A ELEVATOR LOBBY: REDWOOD GOLDFISH 1
▲ 左滑查看更多
|
SWIPE LEFT FOR MORE
▲
▲A座大堂:赤木金鱼方案2
| TOWER A LOBBY: REDWOOD GOLDFISH 2
▲A座电梯厅:赤木金鱼方案2
| TOWER A ELEVATOR LOBBY: REDWOOD GOLDFISH 2
A
座大堂“金瀑布方案“
:方案以“金瀑布”为设计主题,采用典雅的罗马洞石搭配古铜色压花及拉丝金属板作为主材,创造出一个典雅庄重同时又时尚简约的办公公共空间。
TOWER A LOBBY
"
GOLD WATERFALL
"
:
the scheme takes "Gold Waterfall" as the design concept and uses elegant Roman travertine, copper embossing and brushed metal plate as the main material to create an elegant and simple office public space.
▲ 左滑查看更多
|
SWIPE LEFT FOR MORE
▲
▲A座大堂:
金瀑布方案 | TOWER A LOBBY: GOLD WATERFALL
▲ 左滑查看更多
|
SWIPE LEFT FOR MORE
▲
▲A座电梯厅:
金瀑布方案 | TOWER A ELEVATOR LOBBY: GOLD WATERFALL
▲
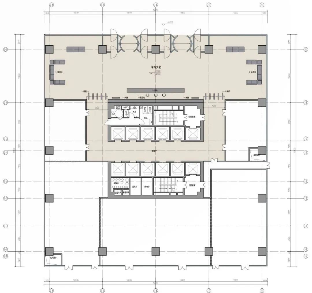
A座首层平面图
| TOWER A GROUND FLOOR PLAN
▲A座公区建成照片 | TOWER A INTERIOR PHOTOS
B&C
座大堂:
方案以“水波纹”为设计主题,采用先进的石材三维雕刻技术,将背景墙的石材按照设计师在电脑中制作的水波纹三维模型雕刻成型。主材延续了A座大堂的古铜色压花及拉丝金属板和典雅的罗马洞石,确保通州万达广场3座5A级写字楼的室内和谐而统一。
TOWER B&C LOBBY:
the scheme takes "Water Ripple" as the design concept, adopts advanced three-dimensional stone carving technology, and carves the stone of the featurewall according to the three-dimensional water ripple model made by the designer in the computer. The main material continues the copper embossed and brushedmetal plate and elegant Roman travertine of Tower A, ensuring the harmony and consistency of the interior of three 5A grade office buildings in Tongzhou Wanda Plaza.
▲B&C座大堂 | TOWER B&C LOBBY
▲B&C座首层电梯厅 | TOWER B&C ELEVATOR LOBBY
▲B&C座标准层电梯厅 | TOWER B&C ELEVATOR LOBBY TYPICA
L
▲电梯轿厢 | ELEVATOR CAB
▲B&C座大堂平面图 | TOWER B&C LOBBY PLAN
▲B&C座公区建成照片 | TOWER B&C INTERIOR PHOTO
项目业主:
北京万方置业有限公司
项目地址:
中国北京市通州区
设计面积:
写字楼公共区域室内设计 3320平方米
设计时间:
2013年5月-2014年10月
竣工时间:
2015年8月
CLIENT :
Beijing Wanfang Real Estate Company
LOCATION:
Tongzhou District, Beijing, China
DESIGN
AREA:
Office Tower Public Space Interior Design 3320 sq.m.
DESIGN PERIOD:
May, 2013 to
October,
2014
COMPLETION DAT:
August
, 2015
关注
WAY | 大道设计
客服
消息
收藏
下载
最近





































