查看完整案例

收藏

下载
设计师: 刘彬
作品类别:餐饮空间
主案设计师: 刘彬
摄影师:辛娜
设计机构:青岛桓茂装饰工程有限公司
作品类别:餐饮空间
项目地址:青岛市南区江西路
建筑面积:150平米
设计时间:2018年5月1日至5月17日
施工完成时间:2018年6月25日
主材:生态木 瓷砖 LED灯;
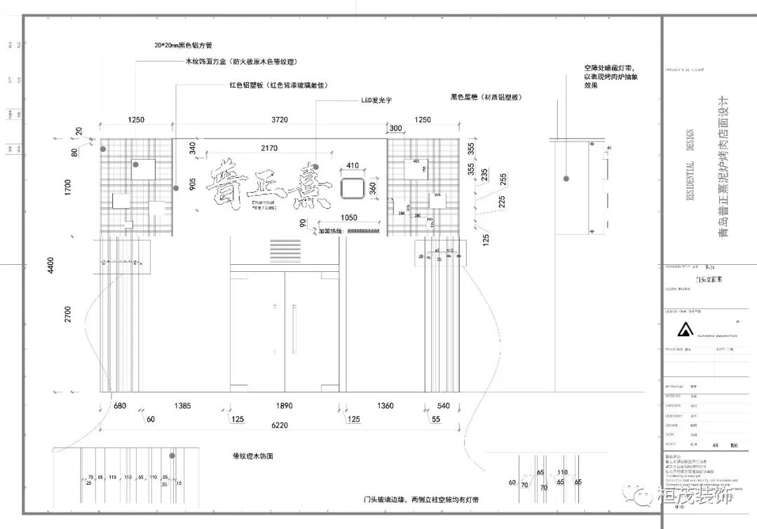
本次项目是一家烤肉店 经过与甲方沟通后 最终决定
采用现代简约为主
的设计风格
This project is a barbecue shop, after communicating with Party A,
finally decided to adopt a modern and simple design style
从烤肉炉中获取
灵感
,将泥炉烤网及烤肉进行变形化处理,
体现在门头的设计当中。
Take inspiration from the barbecue, and transform the clay oven barbecue net
and barbecue into shape, which is reflected in the design of the door.
随着都市人们开始追求
返璞归真
普正熹的泥炉烤肉一经推出便大受到追捧
As the city people began to pursue the
return to nature,
the clay oven barbecue of puzhengxi
was greatly sought after once it was launched
The stove with small fire and slow frying mud naturally gives different feelings
to the ingredients
既然是以返璞归真为主要特点
设计师在室内的装饰材料的考量上
自然花了不少心思
大量运用了生态木及以原木色为主的设计
光感除主照明外,LED光源更多考虑黄色倾向
(结合火焰的那一抹黄)
Since it is the main feature of returning to nature,
designers have naturally spent a lot of attention on the consideration of interior decorationmaterials
A large number of ecological wood and log color based design are used
In addition to the main lighting,
the LED light source takes more consideration of the Yellow trend
(yellow with the flame)
如同《围炉夜话》一样,作者虚拟了一个冬日拥着火炉,
至交好友畅谈文艺的
情境
。
店内以暖色调为主,意在为营造一种轻松的氛围
Just like the night talk in the furnace, the author fictitious a situation in which he held the fire in winter and talked about literature and art with his close friends.
The store is mainly in warm colors, intended to create a relaxed atmosphere
室内的生态木横竖排吊顶,以泥炉为原型,
打破天花整体色块
。
穿插吊线的创意将其从空间中打破,
以拟面的形态呈现,给人以在烹饪冷面的情景,
增进食客在消费中的互动
体验感
。
Indoor ecological wood horizontal and vertical ceiling, taking clay stove as the prototype,
breaks the whole color block of ceiling.
The idea of inserting suspension lines breaks it out of the space,
presents it in the form of imitating noodles,
and gives people the scene of cooking cold noodles.
客服
消息
收藏
下载
最近

















