查看完整案例

收藏

下载
和风小宅
从旅行所经景色,渐渐成为理想生活雏形,正是本案故事开端:雨滴沿着伞缘坠落,路面倒映了在雨中从容行走的人影,望向伞外的远方是迷人风光。本案台湾省
玳
爾空间设计,精致简约的日式风格显示出品味慢生活的闲情逸致。
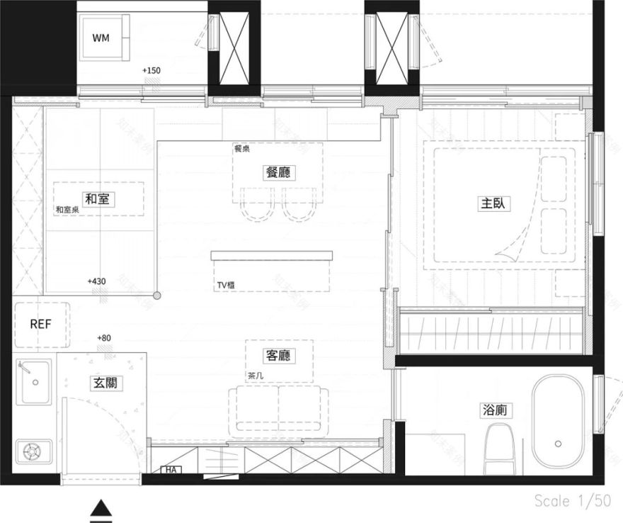
▲平面图
本案最大特点是弧形天花,划破日式纵横制式的线条设计,利用现代手法呈现新型态和风面貌,弧线天花象征撑起的伞面,此概念融合屋主在日本所见的记忆:
人们在雨中撑伞漫步,并运用台桧增加第五感嗅觉体验,旁侧竖起「精神柱」,并以「一轮插」插花手法点缀一株绿意,融入日本风情。
从玄关看向室内,和风的丝丝禅意瞬间印入脑海,木质地板微幅抬升,延展了家的画面,灰色石子交错铺贴下沉式落尘区,让鞋上尘土归落于此。
基于整体室内设计,主要以事先选购好的家具为出发,因此屋内选以木色、白色为基调,衬托色彩丰富的家具,局部点缀绿色坐垫、榻榻米,呼应户外苍翠绿景。
榻榻米空间是一隅阅读、放松归属,抑或招待亲友来访借宿,和室不受单一形式框架,同步隐藏上掀式置物机能,容纳多功能使用情况。
开放式格局使每个功能区紧密相连,客餐厅之间选择以矮墙区隔,形成流畅回字动线,让区域之间更能灵活调配,在不压缩任何面积的状况下,呈现全然开阔视觉,实现无拘束的空间感。
全室采用嵌入式光源做为主要照明,和室更特别改以投射型嵌灯,局部妆点壁灯、台灯及床头壁灯灯,在灯饰精妙布局下,光影朦胧穿梭,烘托幽玄禅意的微光质感。
双重窗的设计在国内较为少见,内侧窗
利用障子覆盖冰冷窗框取代了窗帘
,精致简洁的
日式风情完善每一处细节,迎来若隐若现的诗情境意。
卫生间的镜柜针对大尺度量体,以倾斜角度方便屋主使用,上方格栅衬映放射状光感,与光带烘托轻盈视觉,达成相辅相成效果。
木条错落的天花设计,利用采光优势,以舞动光影增添空间表情,描绘一场沉浸式沐浴时光。
新品推荐
2021高清实景案例大全
客服
消息
收藏
下载
最近

























