查看完整案例

收藏

下载
现代美宅
Shubochkini Architects 工作室认为,一个人的家不止是他们休息的地方,更应该是精神世界的净化厂,为每一位业主创造独一无二的家是他们始终不变的追求。
01.
摩登现代的养老住宅
本案是为一对即将退休的教师夫妇设计的养老宅,别看业主夫妇年纪不小,但他们对于设计时尚的理解非常现代,这个家也丝毫看不出保守与陈旧的气息。
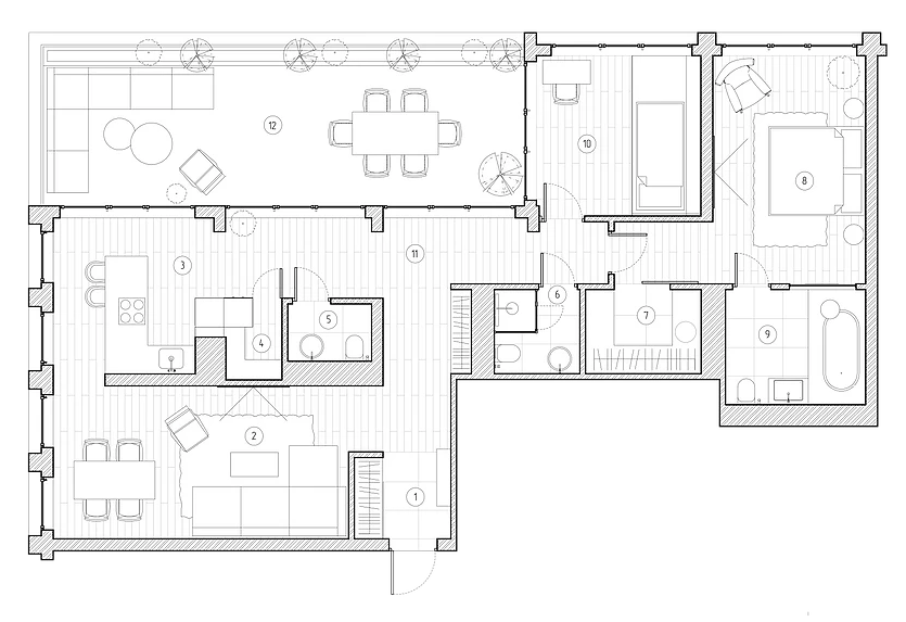
▲平面图
这原本是一间面积不小的两居室户型,由于以后居住人口只有夫妇两人,所以直接将一间卧室改为客厅,原本的布局中有三个卫生间,为了使用更方便,其中一间被改造为单独的洗衣房。
原本的卧室空间改为客厅,与原客厅之间以一面书架相隔,由于夫妇两人书籍收藏数量非常庞大,所以新增出来的储物空间,很大一部分用来收藏书籍。
进户的位置特地放置了换鞋凳,方便两位老人的生活。
整个空间的收纳非常多,衣帽间就有三个,每个衣帽间都没有做衣柜,而是用隔板加置物架代替,这样的设计更环保,也更实用。
原本的客厅空间被改为开放式厨房与餐厅,窗前还设计了超有情调的阅读区,退休后的老年生活也要极具仪式感。
原木质的橱柜整体性极强,免拉手的设计更加简约整洁,为了保证空间的整体美感,水槽与电器都被隐藏在柜门之后,烹饪时将柜门拉开即可。
土橘色是空间最亮眼的色调,绒布材质的餐椅为餐厨区画上最浓重的一笔,设计感极强,还不失温馨。
卧室空间内色调偏冷,橄榄绿色的皮质床体搭配灰色床品,尽显冷淡的现代风,床头的吊灯吸引了大部分目光,造型夸张的金属质感冷酷时尚。
窗前的休闲椅是棕色皮质,同一空间的绿色调与棕色调非但不冲突,还异常和谐,设计师对材质和色彩的把控相当醇熟。
主卧室用格栅围合成一间步入式衣帽间,格栅的使用通风和采光性都更强,对于不建墙还想拥有衣帽间的户型来说,是一个非常的好的材质选择。
带有大浴缸的卫生间离主卧更近一些,主要是供主卧使用,洗手台是Shubochkini Architects 一贯的设计手法,柜体与台盆的体块穿插,拥有极强的现代感。
由一间卫生间改造而成的洗衣房,一侧用于收纳,一侧内嵌了洗衣机与烘干机,镂空的储物格刚好放置洗衣的用品。
露台是两位老人侍弄花草的地方,有朋友来时还可以在此喝咖啡,聊聊天,面对着满满的绿色植物,心情也愉悦许多。
公卫的墙面使用白色大理石纹路瓷砖铺贴,自然流畅的纹理透露着空间的现代气息,墙面的壁龛内嵌灯带,氛围感十足。
无水槽式洗手池是设计的一大亮点,类似于卡戴珊家的无水槽设计,这样的格栅排水更适合家用。
02.
优雅复古的三口之家
本案业主是一家三口,年轻的夫妻带着一个可爱的小宝宝,买下这个户型是因为它的超大露台,城市公寓想要拥有一个亲近自然的空间非常难得,所以业主夫妇对这个户型一见钟情,并邀请到
Shubochkini Architects 工作室
来为他们的新家做设计。
▲平面图
客厅放置了深蓝色的布艺沙发,模块化的沙发组合自由舒适,墙面采用艺术漆做出独特的肌理造型,为空间增添艺术感。落地的大幅挂画是简约的黑白色块,角落里的红色落地灯搭配画龙点睛。
黑色的扶手椅纯原木材质,木纹理若隐若现强调着原木的自然感。
入户门处的柜体内凹一个黑色体块,随手放置物品设计非常贴心。
餐厅与大落地窗相邻,采光最好的空间非这里莫属,每一餐都有着不一样的仪式感。吊灯离桌面很近,夜晚开启时形成一种聚光的效果,将光源完整的照射到餐桌中心,菜肴也因此变得更加可口。
主卧室布局是完整的套间,包含衣帽间、卫生间的配置,由于有了衣帽间的收纳,卧室的空间就显得尤为简洁。背景墙的不对称木格栅搭配色彩鲜艳的落地画,为空间蒙上强烈的现代气息。
小件家具也包含了设计师的巧思,大理石矮凳既可以作为沙发凳,也可以作为边几,设计师将它放在床头,极具创意。
卫生间与卧室之间的墙面镶嵌一块透明玻璃,为卫生间内部引入光线。
主卧卫生间的墙面一部分使用水磨石铺贴,浴缸的一侧使用天然石皮,自然地现代气息呼之欲出,白色的立柱台盆设计流畅简约,与木质柜体穿插,设计感十足。
儿童房的设计更具趣味性,定制的床体随着墙面延伸,远远大于床垫的长度,除了休息睡觉,这里也可以满足小朋友的休闲玩乐。
落地窗前的学习桌是可移动的设计,随着小朋友的年轻增长,对于学习桌也有不同高度的需要,可以移动的家具更具灵活性。
位于客厅空间的公卫没有设置淋浴区,颇有侘寂气息的台盆与长椅形状的柜体设计简洁,墙面的条形砖纵向铺贴,为空间带来视觉上的延伸感。
位于休息区的小卫生间主要是满足儿童房的使用,岩板墙面铺贴现代感极强,干湿分区的设计简洁实用。
获取本案高清大图
方案思维与住宅全案训练营
第四期 广州站(临近广州设计周)
11月29日-12月2日(共4天)
方案思维与住宅全案训练营
介绍
四天三夜 系统讲解+强化训练 成为方案高手
方案思维以及住宅全案
---讲师:三哥(彭波)---
平面方案方法论:
从客户需求到大局动线到细节深化
平面方案高级攻略:
线性切割、住宅户代关系剖析
小户型空间深度挖掘与利用
别墅空间的功能品质
别墅规划对应的客观现场条件
大平层空间的组合关系
立面造型的传递与统一
住宅设计之人性化与精细化
---讲师:哲也(杨秋锋)--
哲也宅术:
一个户型多个可能性
功能细化 家具组合 动线优化
异型户型的设计与优化
方案的弹性对比与选择
空间设计创新性解析
【学习对象】
各种层次设计师
感觉到思维受限的设计师
户型优化设计能力薄弱的设计师
刚毕业的相关专业学生
训练营咨询(瑞苓老师)
客服
消息
收藏
下载
最近

























































