查看完整案例

收藏

下载
01.
原木质弧形空间
简净室内基调,也能透过弧线增进活泼度!俄罗斯设计工作室9003 studio提出的概念设计,以一字型布局展开33平方米空间的阔绰视野。
▲
平面图
并透过异材质穿插搭配,达到拓增景深与界分区域属性用途,正如从玄关、餐厨至阳台利用温润木质形成连贯性,客厅则柔合朴实灰阶成为清晰划分,经由自然元素烘托温和气息。
同步于转角挹注弧形元素,弭平锐角的制式僵硬感,串起流畅动线关系,甫入门即是舒心无压景象,连同卫浴也导入连续曲弧线条巧妙实现乾湿分离设计,佐上靛蓝石纹地砖,添入一丝趣味调性。
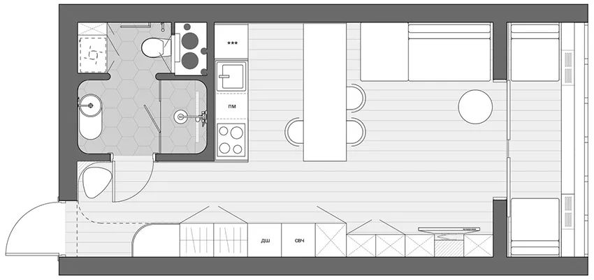
02.
现代风格的套盒空间
圣彼得堡29平方米的一室公寓,业主是一位年轻女孩,采用现代风格。该项目的任务是要求将厨房,客厅和卧室放置在公寓的一小部分中。同时,保留自由,宜人的生活空间的感觉。
▲
平面图
解决方案是存在一个衣柜,并使用单个家具元素。选择浅色作为主要颜色。天然木材制成的体积与此形成鲜明对比。
方案思维与住宅全案训练营
第四期 广州站(临近广州设计周)
11月29日-12月2日(共4天)
方案思维与住宅全案训练营
介绍
四天三夜 系统讲解+强化训练 成为方案高手
方案思维以及住宅全案
---讲师:三哥(彭波)---
平面方案方法论:
从客户需求到大局动线到细节深化
平面方案高级攻略:
线性切割、住宅户代关系剖析
小户型空间深度挖掘与利用
别墅空间的功能品质
别墅规划对应的客观现场条件
大平层空间的组合关系
立面造型的传递与统一
住宅设计之人性化与精细化
---讲师:哲也(杨秋锋)--
哲也宅术:
一个户型多个可能性
功能细化 家具组合 动线优化
异型户型的设计与优化
方案的弹性对比与选择
空间设计创新性解析
【学习对象】
各种层次设计师
感觉到思维受限的设计师
户型优化设计能力薄弱的设计师
刚毕业的相关专业学生
训练营咨询(瑞苓老师)
客服
消息
收藏
下载
最近





































