查看完整案例

收藏

下载
长沙,倚落于湘江。润物潇潇,聚以千载。
曾经“漫江碧透,百舸争流”的橘子洲头,今已燃起节日里的繁花烟火。西望岳麓山,天然为屏障。山不算高,清幽灵透。途径千年学府岳麓书院与枫林红染之爱晚亭,山上幽壑与山下热闹的市民生活形成对比,也成为长沙湖湘文化与书院气息,互相融合的实景写照。
古往今来的潇湘印象、古色古香的书院气韵,以及热情随性的城市精神,成为招商长沙.梅溪湖依云曦城营销中心的主韵调。从湘绣、漆器、漆雕中提取的湘元素,融于空间与陈设设计,形成独特且富于体验感“时光书影,芙蓉叠翠”。
江天、洞庭,傍水而居的长沙,远山含黛,水色朦胧。以“渔舟泛游”的路径,迴游揽胜,别有意趣。折叠浮墙,色调雅淡,映照光影,一层一层蒙上光色,感知时间与空间的交错、停顿与流转。
以“桥”为纽带,一面鳞次栉比的楼宇,绿荫环绕。层层叠叠的空间,曲桥人烟,生机盎然,充满了丰富的视觉体验。起伏之间,观而壮之,渡桥而去,见江心一幕,彻离烦嚣。
桥的另一面,连接阶梯,是起承转合,是九溪十八涧,山林最胜处。简约的吊灯,以卷轴式样,高低层叠垂落,如纷飞墨卷,渲染着书香院落“仁以为己任”的儒学典范。行进中,光随影动,沉稳或清亮,总是动人。
麓山茂林,散发着自然古朴的气息。木结构的书院,滋养着由内而发的生机与超越“自我”的萌动。
以“木”为单位堆叠、层积、秩序,营造外露的墙体与原木方天花,使搭积木的简单原理在现代工艺中得了到妙用,掩映着木色朴拙之态。
视之所及,若达至境,心生物我两忘之境。
整体的素雅色调,糅合了质感与工艺,使其雅致、清朗、简约的风格,相得益彰。
从马王堆出土的雕漆“君幸酒.云纹漆耳杯”中提取“缇色”,成为空间点睛之彩,“湘绣”中织绣手法与古代服饰中的纹饰,在装饰中若隐若现,彰显东方雅致。
格物为乐,致知为悟。
空间列漆器、雕刻、文卷等雅玩,为长沙喜好古玩之风铺陈,又传承于造物精神。“长沙独秀”、“洞庭水月”、“岳麓风华”
等艺术堆头,以长沙历史与人文为题材,巧妙地融于洽谈空间,创造了新的互动体验与交流方式。
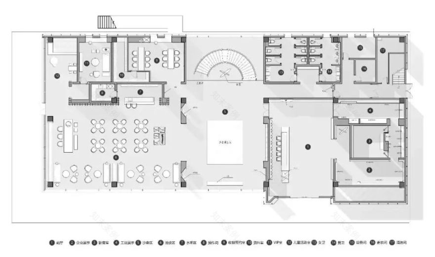
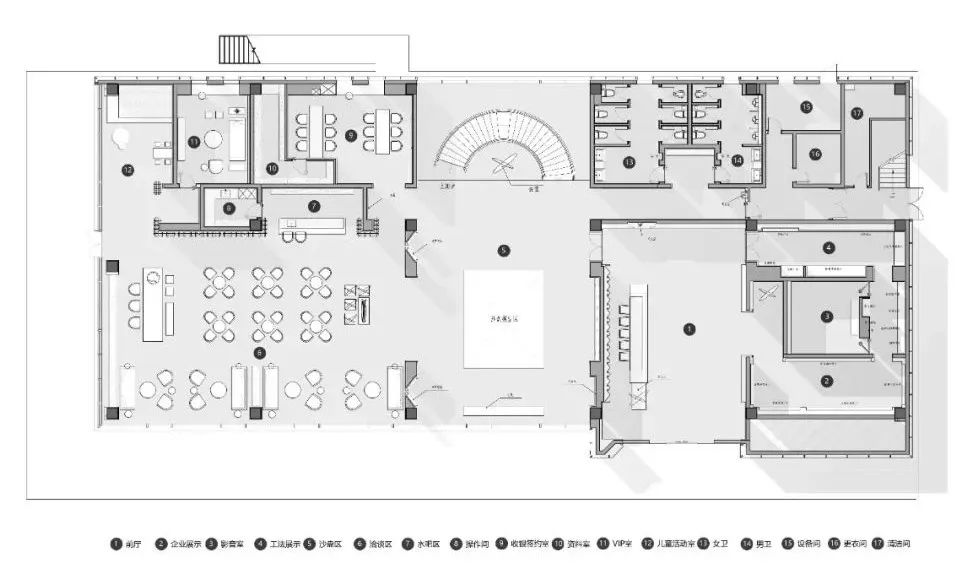
▲平面图
项目信息
项目名称丨招商蛇口·依云曦城
项目地址丨湖南省 长沙市
项目面积丨1100㎡
室内设计丨深圳市里约环境艺术设计有限公司
软装陈设丨深圳市里约环境艺术设计有限公司
项目负责丨伍聃
室内设计丨李冰峰 . 陈武玉
软装设计丨王红娜 . 杨爱东
主要材料丨人造石.卡地亚灰大理石.原木方
摄 影 师
丨
康辉
里仁之所 , 俭约之风
深圳市里约环境艺术设计有限公司 (LIA) 成立于2007年,专业从事室内设计、软装配饰设计与灯光照明设计。
为招商蛇口、融创地产、华夏幸福、保利地产、复地地产、深业集团、香港建设、中集集团等大型地产公司提供设计服务。
设计项目类型涵盖别墅、会所、营销中心、样板房、联合办公综合体。
小编插话
如您喜欢
里约设计
作品 想委托他们设计
我们帮您对接该设计机构!
软装灯光训练营第六期 |成都站
2020年8月2日-8月5日
软装全案灯光训练营
内容介绍
软装 方案 搭配
落地
---讲师:卢静(北京境空间设计创始人)---
系统掌握软装设计全案流程,
从客户需求到软装方案设计再到落地交付
专业软装设计:制作,设计执行,洽谈
材质选择,软硬装设计衔接
软装设计团队搭建以及管理技巧
软装方案优势以及软装谈单技巧
实操环节:方案实战,老师辅导说点评
灯光设计法则与光环境营造
---讲师:郑志伟(知名灯光设计师)--
提升室内设计师灯光设计认知与专业度
灯光在基本要素,包括灯光参数,
灯光选择,各种空间灯光在运用
光环境营造,以及通过灯光烘托主题
不同空间的灯光设计流程及方案,
室内设计师如何运用灯光设计专业知识提升签单率
灯光部分课程形式:理论学习/小组作业/点评辅导
【学习对象】
各种层次设计师 特别是硬装设计师
特别适合软装
灯光
小白设计师 还适合开店者
以及家装设计师,设计总监,软装设计师等
训练营咨询(瑞苓老师)
客服
消息
收藏
下载
最近





























