查看完整案例

收藏

下载
这是以盒子结构组合构筑的家,有着北欧设计的干净、简约。整个空间,秉承现代设计“大众应能享受美好且有用之物”的理念,运用建筑感的结构与舒适功能相结合。低饱和度的木色搭配黑、白及灰色,营造出温暖自然的空间氛围。使整个空间和谐统一的同时又富有变化,不同材质搭配其中,色彩与机理形成对比,空间层次丰富。
--------
项目名称:保利南沙榄核中间别墅
软装陈设单位:广州新设致尚设计事务所
硬装设计单位:间筑设计
--------
▲
负一层平面图
屋中有院,院中有树,
树上有天,天上有月......
林语堂诗句中的意境在这里得到了诠释。
---------------
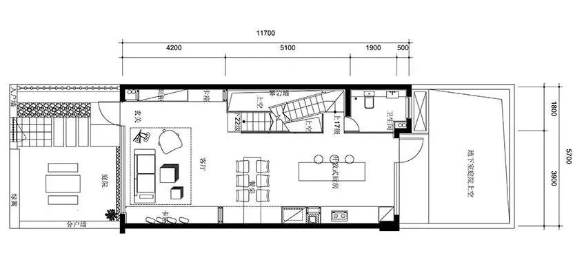
▲
一层平面图
▲
客、餐厅:作为整个居室的主入口,这个空间运用了大量的几何元素。简洁的黑白色块
、个性切割几何形面餐椅及茶几、与几何形挂画相呼应。
▲
开放式的厨房布局,搭配了吧凳,可以更好的增加下厨者与家人之间的交流。
▲
将户外攀岩运动延续到室内,木质墙面打底搭配灰色的攀岩点以及黑色线条状楼梯,有着一种独特的点线面构成感。
-------------
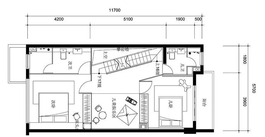
▲ 二
层平面图
▲
淡淡的黑白色调次卧,延续整个空间的基调,静享那睡前的宁静悠然。
▲
卫生间的基调干净且明亮。
▲
儿童区:色彩活跃,动物主题的儿童区,给童真的孩子的陪伴。
----------------
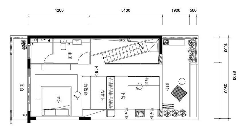
▲
三层平面图
▲
主卧
▲
更衣室
▲
顶层阳光书房:顶层天窗的设计是书房的亮点。在知识中沐浴着阳光,用心享受时间的流转,惬意且悠然。
▲
工作累了,出来休闲一下,整面的植物墙在顶层,带来自然与活力。
------------------
广州新设致尚设计事务所
ARTID DESIGN CO., LTD.
网站
:
地址: 广州市海珠区信裕路78号
Add: 78,Xinyu Road,HaizhuDistrict,Guangzhou
客服
消息
收藏
下载
最近



























