查看完整案例

收藏

下载
在联合办公涌现的大潮下,共享工位不仅仅是低成本,现在更是一种选择优质办公环境的代名词。
市场竞争下,大家对场所也有了更多的要求,满足了基本的办公、休闲、娱乐功能后,不同客户群体还对空间有了不同的欲望。
向来说起童话世界,我们都会想到那是让孩子留恋的专属领地,但当把大人的办公室设计成浪漫的童话王国,会不会合适?
深圳小元里联合办公项目就是这样一个有着无数天马行空创意的童话城堡。
小元里联合办公在一个四层楼的空间,内部是一个连通一到四层的内中庭。建筑“外”立面不在外面而在室内,格栅幽默回应传统写字楼的格子间。
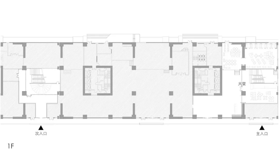
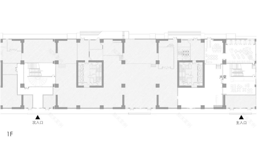
一层作为大堂接待,设置了两个入口,南侧的主大堂空间,作为办公层的入口,主要承担接待问询的功能,大堂大面积留白,扶梯的上升过程中能感受一到四层不同的空间美感。在大堂,设计师引用了水流的概念,黑白条地面水波纹的起伏,流动,象征着企业的承载和不断的前进。
北侧的次入口,主要是餐饮层的入口,一个大型的热气球装置成为视觉的焦点。整体白色的空间,为未来的企业宣传展示和小型展览留下无限可能。
二层的餐饮层作为办公层的服务空间,大部分的空间留给了商户。把设计重点放在了走廊的端头墙面,利用彩色的背景墙面和一些餐饮相关的趣味家具和装置在视觉上吸引人们的眼球,同时起到和人们互动的作用。这些家具除了视觉上的吸引,同时也是餐饮层的共享桌椅和休息空间。
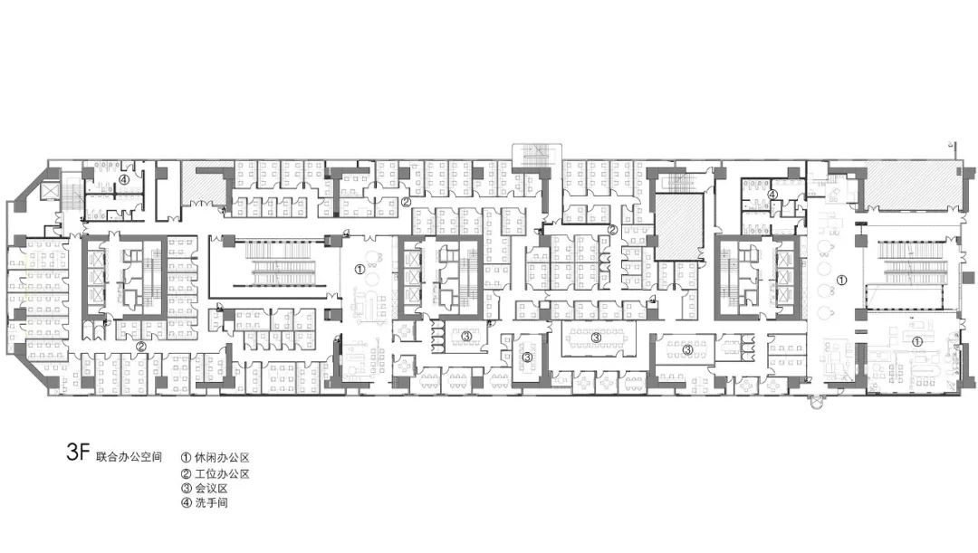
在三层整体的布局上,设计师分别把经过两个扶梯上来的空间作为公共客厅区域,并且把两个公共客厅用共享会议区、休息区串联起来,把需要比较私密安静的办公空间放在客厅之外。动静分离的布置,一方面让视觉点更集中,一方面也便于后期的运营管理。
经过扶梯上到三层办公空间,首先看到的是work hard 的欢迎橱窗,然后转身会看到一个特别怪诞、艺术的公共客厅。
这里引用了健身器械的元素进来,传达健康工作的理念:单杠吊环意化成巨大的香槟金画框,当你穿梭其中就像置身于一幅幅画作当中。
根据使用的行为模式,设计出多种座椅形式:宽敞的大沙发,一个人安静独享的座椅,休闲的吊椅,学习的吧椅长桌。当你在这里休憩工作时,也可以在旁边的单杠吊环拉伸一下。
为了让客厅更舒适,设计师把地毯和墙面的画作结合在一起,让装饰成为空间不可或缺的一部分。
客厅的边上是开放式的水吧空间、海洋球池。
透过水吧区可以看到两幅怪诞的画作,梵高自画像的头部和蒙娜丽莎的手分别代表男女卫生间的标志。
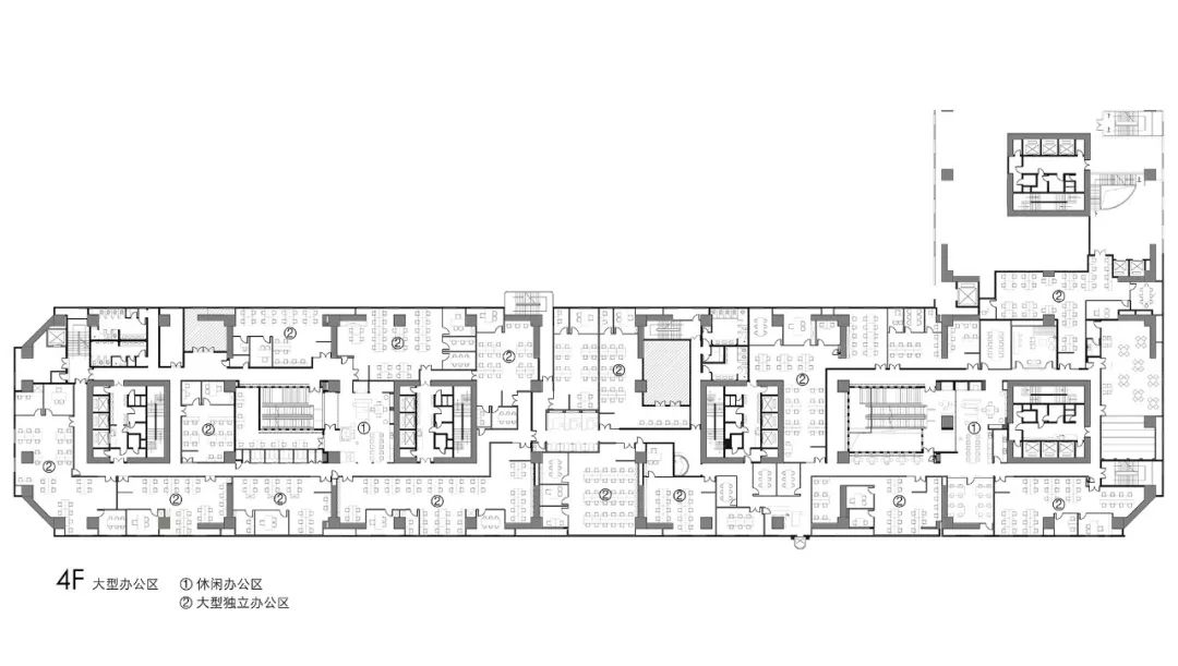
四层作为大型办公空间,整体的布局上,同三层一样,分别在两个扶梯上来的空间作为公共客厅区域,大型的办公室环绕在客厅周围,让每一间公司都能快速地到达。
客厅区域依然采用多种的座位形式满足不同的需求,公共的水吧空间也融合在这里,同时设置相应的私密休息空间。因为针对的客群的不同,在调性上偏成熟稳重,在空间里运用比较多的木饰面和灰粽色的混凝土饰面。家具也不同于三楼的怪诞色彩,更偏简练沉稳。
卡座和坐凳都引用了按摩椅、瑜伽球的概念,提醒人们在工作之余也能关注一下自己的身体。
- 更多图纸 -
客服
消息
收藏
下载
最近



















































