查看完整案例


收藏

下载

翻译
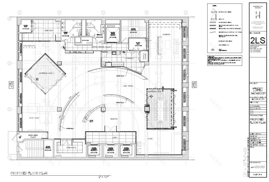
Showrooom design for leading textiles manufacturer Loftex-USA from conceptual proposals to full build-out of 6,000 square foot space with views of Bryant Park. Curved sculptural walls reflect influences of Richard Serra, while jewel-box glass conference rooms reference Phillip Johnson's Glass House while integrating with a fully developed floorplan. Custom designed display system integrates client's needs for modular flexibility and impactful presentations.
客服
消息
收藏
下载
最近














