查看完整案例

收藏

下载
序
青山隐隐
苍苍密林
林中待日落
当快节奏的城市化生活成为现代人的日常,人们不再与自然亲密无间。但是两者间拉长的距离反而激发了人们越发想要亲近自然的心。尤其在近两年频繁的居家隔离生活后, 灵魂愈发躁动, 再也无法抑制想要接近自然的本能。人们尝试一切方法不断接近自然,即使不能走进自然,也要将自然元素引入生活中,从桌上的绿植到大地色系的装饰,都是有意无意间 “亲生物” 本能的流露。
那,如何在现代生活中亲近自然?
有这样的一处居所,
当你穿过密林绕过河湾,来到这撒满阳光的居所,窗外青山隐隐,鸟语花香。
本案坐落于杭州银湖,依山傍水,位于进出云水湾的交通节点处。隐逸而择境, 为小镇融入了当代的雅致与清幽,现代主义美学凝成一个具象化的符号。
由于乡村建设对于占地面积和高度的严格要求,村庄房屋大小都差不多,在尺度上高度也基本统一。
院落式布局算是我们在乡村空地上设计住宅的某种直觉,然而在“占地面积不得超过120m²”的限制下围合出室外庭院十分困难,于是在尝试L形、U形平面均不理想后,最后在反复推敲后决定用对外半开放式的天井院落的方式
得以重生。
将自然带到空中,将室内功能融入自然中,呈现出的立体院落情境,让墅质空间
的亲地性、独立性、私密性与多层空间的开放性、交互感,都能在其中找到答案。
建造施工
成像分析
基于对在地性与功能性兼具的思考, 采光天井引入自然,寄情于木、山、水这些原本不经心的自然设计,与之对应的是尽可能完善的休憩活动空间,在细节处进行了更贴近生活与环境的思考。
望境
湖山相望,身处何处,放眼皆山色。春风浩然,水中沐浴,迎风而舞,高歌还家。
我们的思考不应局限于如何改造、 升级当地的环境设施,格局打开,场域文化、当地原有的生态环境,都是对自然最原汁原味的态度。
依托于自然而来,建筑景观取"势",室内则取"质",弱化室内外的边界,用连贯的灰空间去思考东方建筑的当代性,让叙事脱离空间,呈现出时间维度上的完整脉络。
当要赋予某件事物形象的时候,必须参询自然这就是设计的开始。
回归自然的场所精神
深色哑光的金属,锻面黄铜的茶几,当代的单椅,贾克梅蒂的雕塑,将现代自然生活再次场景化。
《易经》说:“无往不复,天地际也。”这是东方空间意识的博大体现。步入室内,近处松叶,远景山峦、绿松引入室内,通过一整面玻璃墙框景成画, 挥洒出蓬勃无尽的自然气韵。
离自然近
距离的地下一层,设计思想更是光的演绎和献礼。 对阳光下各种体量的精炼的处理,这些体量所表现的形象是明确的、可触摸的,而不是含糊的。 近观落地窗外的绿松山石几乎触手可及,嵌入自然中去,倾听风声,建筑和室内的关系、局部和整体之间、人与自然交融无间,遥应星际宇宙的广博,
怡然自得。
沿楼梯步至二层,
次主卧拼合书桌及床至空间的中央,作为功能物件的同时,也成为空间中的装置构建, 环绕式的空间体验将度假情绪调动而出,尽享此刻桃源人间。
主
卧采用双出入的环形动线, 流动的空间气场贯穿其中。卧室的中轴线与建筑主空间保持一致,注重东方韵律和秩序感的营造。整面的木质元素唤起东方秩序中的自然气质,精神便接管此处的空间意识。
环绕的露台将室内和山峦松林拉近,成为温暖气质和宏大精神的连接点。层层错落的露台之间遥遥相望,户外露台作为室外与远山的过度空间,庭院般流动的空间呼应大自然的场所精神。在毫无遮拦的亦内亦外悬挑户外,夕阳下的层林尽染,在松风中感受物我两忘
生活就会涌现无尽的美好
围炉煮酒 牛羊成群
阳光 清风 你我
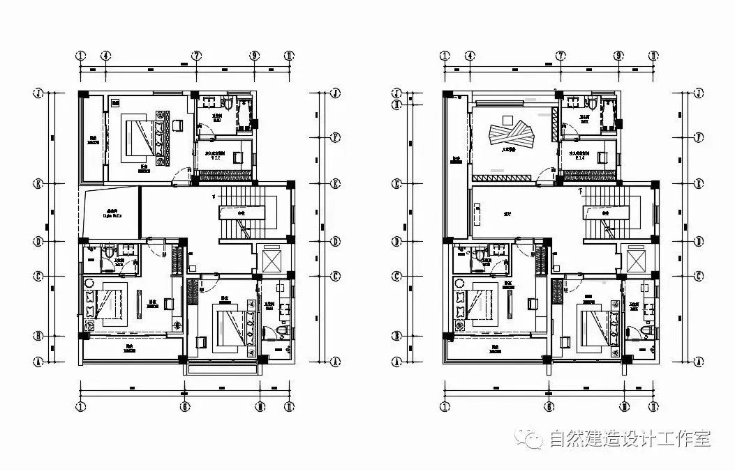
项目图纸
--------- ------------
下一篇:
方远 -- 天曜誉府生活样板间
方远 · 天曜誉府生活样板间 | NCD自然建造
自然建造设计 | NATURAL CONSTR
客服
消息
收藏
下载
最近

































