查看完整案例

收藏

下载
麦格老师关于
[ 设计思维展示 ]
设计思维不只能让你一个户型做出多个方案.
也能让你把方案细化出更多打动业主的细节.
更多的设计细节也成了你跟业主沟通的谈资.
业主更愿选择一个能提升生活品质的设计师.
[实例展示]
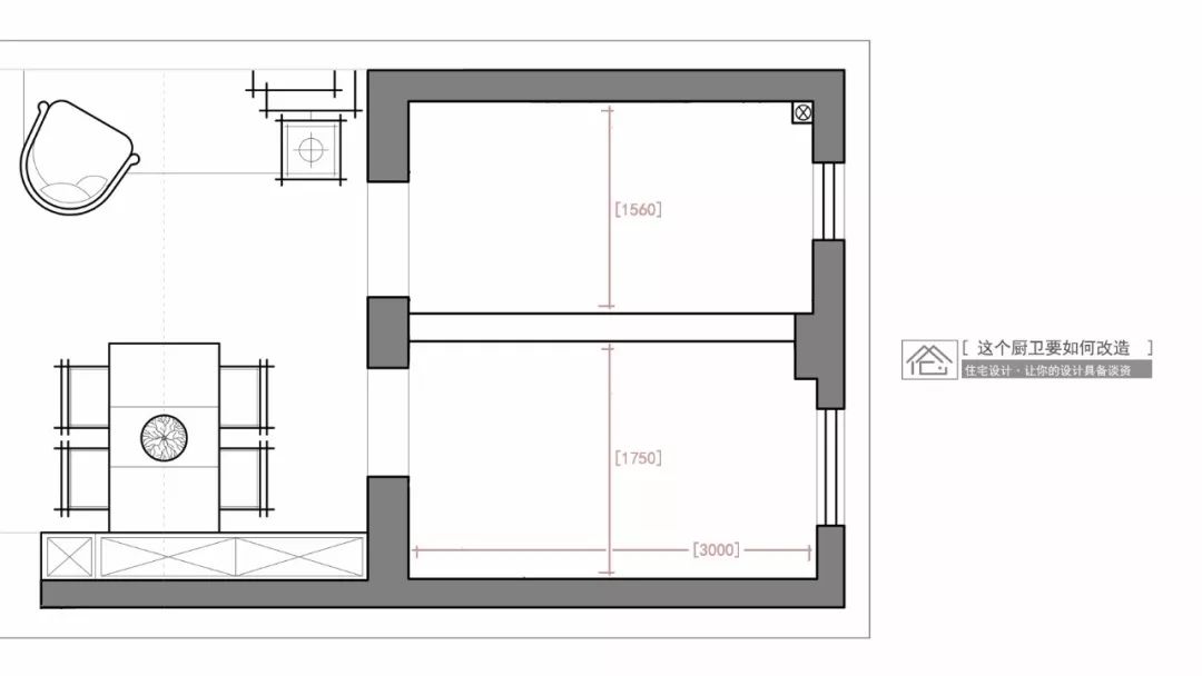
这个厨卫部分是一个(两房1厨1卫)二手房的局部.
业主是一对新婚夫妇.即将有小孩子.
那么这样的一个区域你会怎么去设计呢?
大部分设计师可能会拿出这样的一个方案.
但是这样的平面并没有让空间达到最佳利用.
甚至对于 洗手间/厨房 功能是否完善好用都是未知.
[如果是我们会出现以下方案]
单纯看平面貌似没有很出其不意的地方.
确实.因为我们的优势凸显在对于空间细节.
以及对于空间带来更好的交互体验.
[结下来看看我们的细节]
这是房屋原空间的现状.功能少的可怜.
当我们了解了业主的家庭成员后.
我们确定业主需要一个更大的冰箱.
同时业主需要很多的电器
[如下]
图上的电器都是业主生活中需要用到的.
那么我们就需要对这些电器的
储存/操作
创造条件.
如这么多电器散放在台面上不但使用不便也不美观.
[所以我们对这个空间设计了电器柜(如下)]
通过空间手稿我们会发现电器柜的出现.
很大程度解决了电器的
收纳/操作
等问题
当然我们还需要对应解决
照明/排气
问题
[电器柜与电器的关系(如下图)]
同时我们改善了原厨房的动线.
将厨房与餐厅直接的洞口作为了吧台.
由此提升增加空间中成员的交互.
当妈妈在厨房做饭的时候宝宝在吧台等待
这种交互不仅建立在妈妈跟宝宝(还有更多)
接下来是对于卫生间的优化
卫生间要解决的是这个家庭对卫生间的需求
要让这些东西
美观/好用
缺一不可
首先我们对用具选择进行改善
将庞大障碍的宝宝浴盆换成可折叠
有利于对浴盆的收纳以及卫生
将容易绊脚的矮凳换成可折叠
有利于平时的收纳与减少污渍
卫生间通过与厨房直接的交错
设计出
完整的收纳系统
可将各类瓶罐与物品理想的收纳
从而使得卫生间干净简洁
[ 思维展示 完 ]
当前市场能提升生活质量的设计师
才能被有追求的业主所信任
你想具备这样的设计思维吗?
[
那么洗手间应该怎么设计?
]
麦格主讲:卫生间十八种组合形
视频回放
紧急通知
平面方案与住宅全案训练营|广州站
6月8日-6月13日(共六天)
开课倒计时:3天
主讲:三哥 麦格
(每人三天 晚上强化训练)
方案思维以及住宅全案
---讲师:三哥(彭波)---
线性切割、住宅户代关系剖析
墙体变化之开放空间+封闭空间
别墅空间的功能品质
别墅规划对应的客观现场条件
大平层空间的组合关系
立面造型的传递与统一
住宅设计之人性化与精细化
---讲师:麦格(吴鸿彬)--
关注人在住宅中的各种场景/群居篇
关注人在住宅中的各种场景/独处篇
方案由数据构成
掌握功能的拆分与重组
紧凑户型的多维度利用
空间的视觉与心理
训练营咨询(瑞苓老师)
客服
消息
收藏
下载
最近













