查看完整案例

收藏

下载
东方既白
太阳未升
晨雾如流绕原野
远近山水草木都成了宋明山水中的浓淡墨点
朦胧而湿润
舒展清和
九月已过
秋/
意渐浓
......
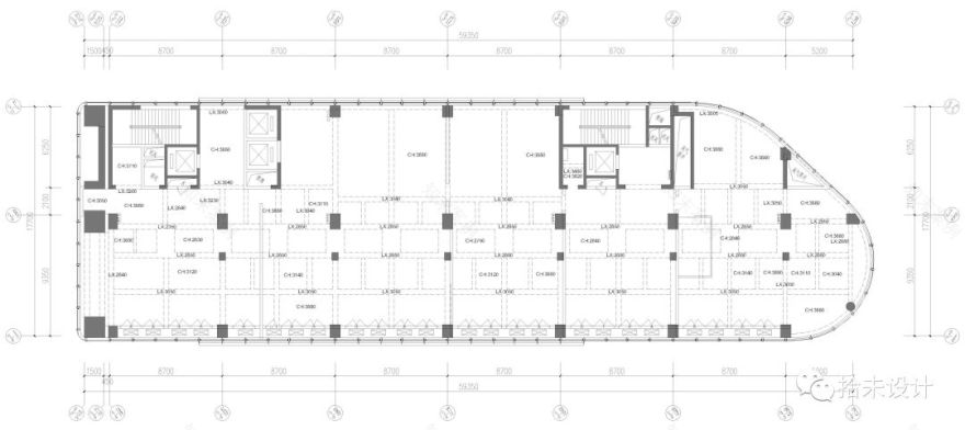
❶
一 层 原 始 结 构 图
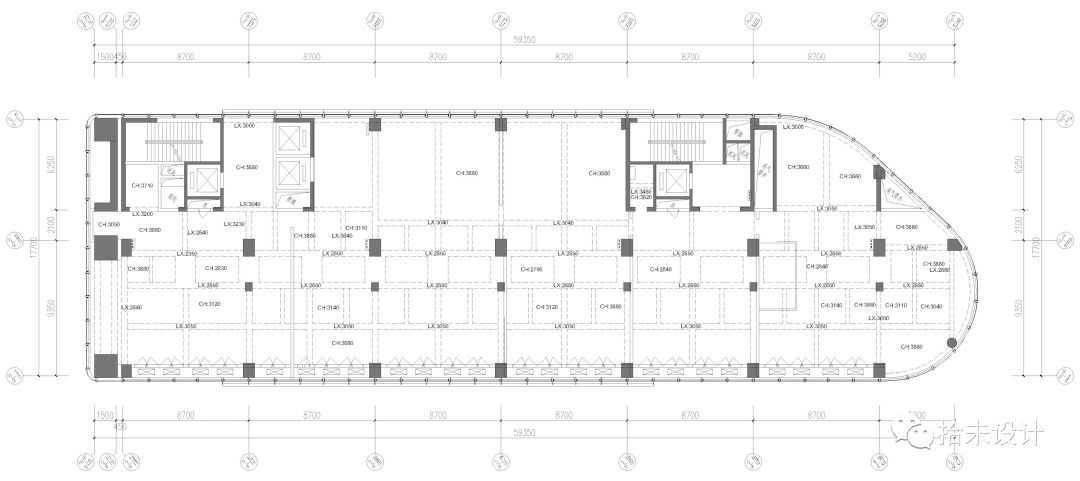
❶
一 层 平 面 布 置 图
❷
二 层 原 始 结 构 图
❷
二 层 平 面 布 置 图
❏ ❏ ❏
接 待 厅
Reception Hall
楼 梯 厅 Staircase Halll
大 堂 Lobbyl
大 堂 茶 吧 Lobbyl Tea Bar
过 道 Aisle
SPA 间 Spa Room
五 人 包 厢
Five Person Box
Project Name / 浙江·杭州
Project Nature
/
足浴SPA
Project Area
/
1000+㎡
Design Unit
/
拾未设计
Design Creative
/
金坚能
Design Performance
/ 阿西本工作室
Project Main Materia
/ 大理石
硬包 文化石 艺术涂料 墙布 实木家具
—— 拾未设计 ——
ADD:浙江省杭州市西湖区三墩镇古墩路欧亚达家居4楼043B
THANKS
客服
消息
收藏
下载
最近


























