查看完整案例

收藏

下载
“水乡小巷多,人家尽枕河。”
水滋润了江南,荡漾出昆山水袖。
∆
外立面
在素有“银张浦金不换”美誉之地,将戏曲凝练出的独特的生活丽致。为在俗世间粉墨登场的人们,精酿出历久弥坚的欣悦之所。
1.
朝飞暮卷
∆ 接待处
设计饮诗歌入室,将朝阳流动的轨迹转换为豁然开朗的空间序曲。天井飘然而下如灵光乍现,慢慢空间如画卷般展开,同构了天花与墙体。
∆ 接待处
时间在天井下方的接待处,留下闪亮的金光,明亮的空间气氛,内外一体同呼吸。呈现出层迭变化的光影,凸显出一种自然的时序节奏,并赋予观者一种在吐纳间,涵盖物外的心境。
∆ 接待处
公共空间通过半悬空的中间隔断分割,实现不同维度上的切割,保留水平向度的空间流动,在若隐非隐的墙体间,让人们保有宛若犹抱琵琶半遮面的好奇,并为大厅增添了含蓄的氛围,也多了一份江南的礼数。
∆ 接待处
2.
云锦天章
∆ 沙盘区
经过了曲形飞幕,进入到偌大的挑空处,大面积的实木天花和木纹石墙,造型简洁以合理的工艺构成,配以素雅的灰色瓷砖地面,共同勾勒出空间基础底色。
∆ 沙盘区
上部弧形的木板如有意识般,透过弯曲与延展出生命中的韧性,悬浮的楼梯一层层往上,穿过柔和的木表皮,人们找到一处居高临下的风景。
∆ 艺术品展示区近景
∆ 艺术品展示区
行走间借着不同上下视角的转换,使观者依附角度的转换,塑造多重空间体验感,形成不同思想的交互。
∆ 沙盘区
此处融入时间而产生相遇的美好,净空空间而包含诗意的境界,最后目光停留在上空。
∆ 沙盘区
∆ 品牌展示区
3.
金风玉露
∆ 果汁吧台
预期将来此处作为社区公共使用,建立起连接过去的自然记忆。人们以水果为链结,作为情感沟通的赠礼。
∆ 果汁吧台近景
以蔬果待友更是中国人的待客之道,吃着鲜果谈着生活中大小事,期待成为社区一种集体记忆。用果饮打造男女老少的健康生活,希望以设计创造一处开启对话的场域。
∆ 公共洽谈区
∆ 公共洽谈区近景
洽谈区以玫瑰金雾面书架,金色方块的源果汁吧台,用一抹亮色,围塑出同黄金屋般的迷人气息,提供便于人们阅读,休憩与交流。
∆ VIP室
阔
合在设计上延续整体空间明亮与开阔的属性,并安排不同区域,兼具多功能的运用可能。
整个展厅动态的光影时序,伴随自然在流动,呈现出似是有意、又仿佛是无序的动态美,宽阔而又宁静的氛围,记录着时间与空间的交织和互动,人们徜徉其间,忘情于处
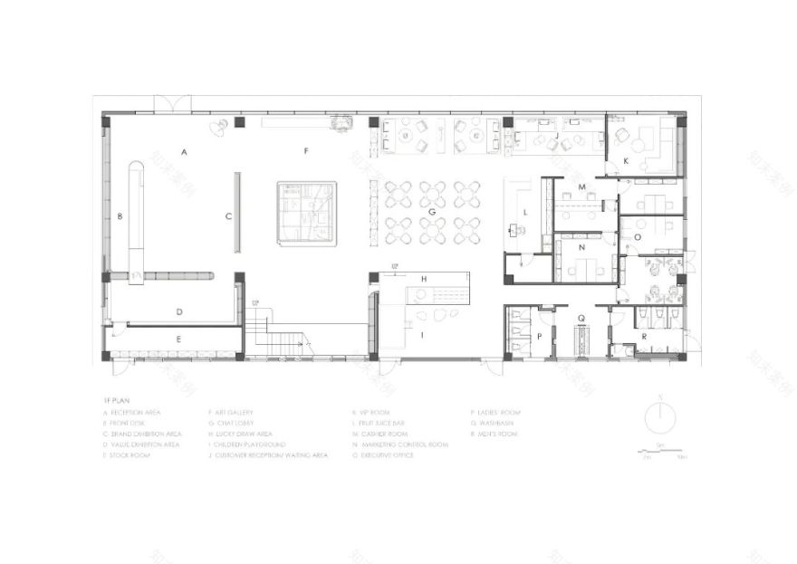
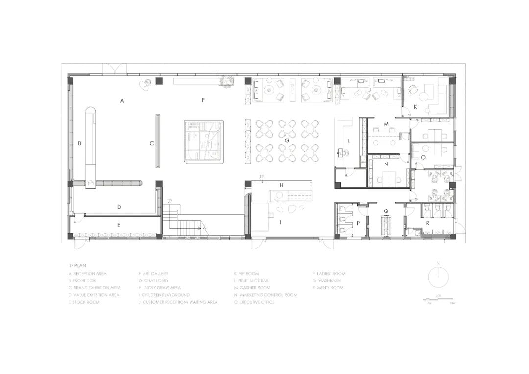
项目名称:昆山祥源·悦江南
空间设计:CROX阔合
室内设计团队: 林琮然、李本涛、段美晨、黄培耿、朱飔晗
软装设计:深圳市意巢文化艺术有限公司
完成时间:2021年6月
项目地点:昆山
项目客户:昆山祥瀚房地产开发有限公司
特别支持:张远帆、钱孝淼、袁斌、温涵栋、张仲昊
项目摄影:彦铭、胡文杰
林琮然
CROX阔合由建筑师林琮然创立于2007年,秉承“前卫自然”的設計理念,不断的实践了想象中的无形和有机,将空间的艺术性和功能性完美结合,为生活创新。CROX寓意cross over(跨界设计),作品跨足城市规划、建筑、室内 、家具,策展和艺术创作。
2021 GOLDEN-CREATIYITY DESIGN AWARD丨第九届金创意国际空间设计大奖全球启动!
2021 ITALY IIDA AWARD|意大利IIDA AWARD 国际设计大奖全球启动!
2020 FRANCE GPDP AWARD | 法国双面神 GPDP AWARD 国际设计大奖国际评审在巴黎圆满结束!
客服
消息
收藏
下载
最近





























