查看完整案例

收藏

下载
和朋友一起改造出一间loft
在这样的空间里工作和生活是一种享受
更重要的是,和好朋友一起创造的美好生活
这是一个容纳友谊、事业、爱情的空间
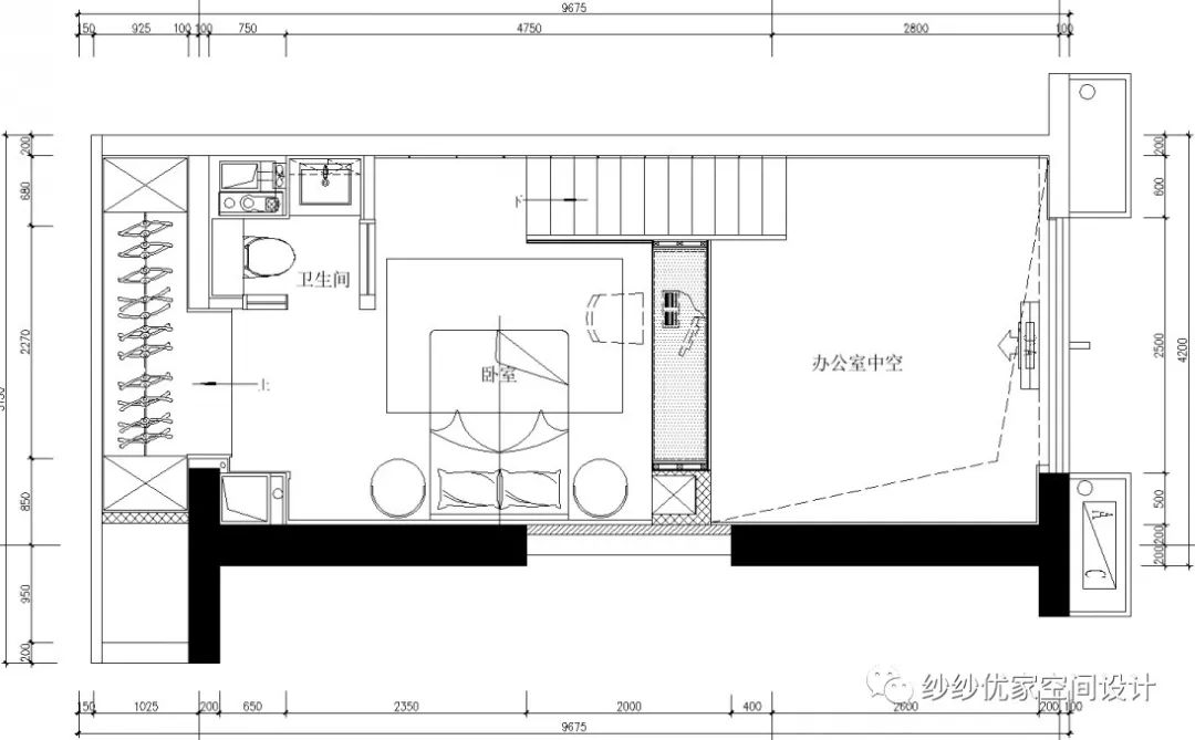
▲户型方案图
项目名称丨藏珑·湖上公馆样板间
业主机构丨双瑞房地产开发有限公司
项目面积丨40㎡loft
软装设计丨湖南纱纱优家空间设计有限公司
项目主创丨陈志铎/丁丽/李巧莉/杨旦
摄影团队丨Nantu®南图摄影
最理想的环
境大概就是可以和自己喜欢的人一起做喜欢的事情。
▲充满梦想与活力的城市
业主信息丨
热情洋溢的文生与理智沉着的阿几
文生像夏天,热情洋溢,阿几像冬天,
理智沉着
,但两位少年都热爱美学、摄影、旅行、生活。在拖沓乏味的工作生活里,他们会憧憬下自己想要的生活,给平淡无奇的日子添加烂漫的色彩:一起去一个城市,找个采光好的的屋子,用自己的想法装饰空间、添置家具,文生继续发展摄影事业,阿几用心做西点。这些愿景最后成为支撑他们走下去的动力。
没想到,最后他们的愿望实现了。
工作区
文生想要获取充满趣味性的空间体验,保持对世界的好奇心,尝试了一些独特的表达方式。通过简单几何体块形与色的穿插交接,使空间互相独立,却又在细微之处相互分离敞开,不绝对的封闭构成一个令人遐想并且有趣的多层空间。
黑白色相间彼此循环,加入些许棕与绿,构成相生共存的涵构程序,空间随着光影传递形象与轮廓,在层次、律动、通透之间,不断变化,成为忙碌工作的生活画
面,具有人文温度且适得其所。
休息区
阿几喜欢舒适的睡眠与休息,所以选择低饱和度的灰为主基调色系,以暖灰色
的地面
装点休息空间
,隐隐散发出温和的气息。整体空间在石材与木色中寻求一种暖性的色彩平衡,同一色系的不同色阶过渡中,既富有色彩明度的变化,又将色调完美协调,观感柔和,并通过精心安置的照明与隐约可见的细节,营造出安然于心的舒适场域。
小场景
这样的空间几乎是我想象中最舒适简约的办公环境,即可居家,又可办公。文生和阿几,对这个又是家又是工作室的花了十足的心力来装修和布置。
他们身上有新时代青年的精神,不想过着庸碌的生活,努力去创造美的东西、美的生活,这也是他们为何成立摄影工作室的初衷,记录他人的美。
松尾芭蕉先生曾说过:把生命浪费在美好事物上,寻常生活也可以过的怡然自得。
▲纱纱优家设计
团队
关于纱纱优家空间设计
湖南纱纱优家空间设计有限公司建立了一支技术全面以及技术丰富的团队,向客户提供包括平面规划、概念开发、施工图纸、艺术陈设及监督现场施工等全方位服务。
我们秉承着
“塑造空间之美,臻品之魅”的设计理念,“专业高端设计,品质服务;专注用户体验,精益求精”的服务宗旨。为广大需求客户享有设计与服务的极致体验为奋斗目标。
客服
消息
收藏
下载
最近



















